1.1 Product description
AInox-Radial heat exchanger made from stainless steel – for high
operational reliability and a long service life. Large heating output
in the smallest of spaces
BModulating MatriX cylinder burner for extremely clean combustion
and quiet operation
CVariable speed combustion fan for quiet and economical opera-
tion
DGas and water connections
EDigital boiler control unit
Vitodens 200-W wall mounted condensing boilers up to 105 kW are
especially suitable for installation in apartment buildings and commer-
cial or public buildings. For these, the Vitodens 200-W offers an afford-
able, space saving solution – either as a single unit up to 105 kW or
as a cascade with up to eight boilers and a heating output up to 840
kW.
The Inox-Radial heat exchanger made from stainless steel offers high
output in the tightest of spaces. This enables particularly efficient oper-
ation with standard seasonal efficiency [to DIN] up to 98 % (Hs) [gross
cv]/109 % (Hi) [net cv].
The Vitotronic 300-K cascade control unit regulates up to four Vitodens
200-W as a single heating centre. In this way, the boiler output is auto-
matically matched to the heat demand. This means that, subject to the
prevailing heat demand, either one boiler modulates or all four boilers
operate concurrently.
For creating cascade systems, we offer perfectly matching system
components, e.g. control units with up to four appliances, fully insula-
ted hydraulic cascades and flue gas headers.
Recommended applications
High heating output from a compact, user friendly wall mounted boiler,
suitable for the following applications:
■ Systems with few, large-demand consumers, e.g. fan heaters in
supermarkets/markets, workshops and industrial premises, nurser-
ies, garages and DHW heating systems
■ Systems with several heating circuits for underfloor and/or static
radiators in apartment buildings, central heating plants for terraced
houses, office buildings and administration premises – particularly
suitable for attic heating centres
■ Heating of public buildings, such as sports centres and multi purpose
halls, schools, kindergartens
■ Suitable for installation in basement boiler rooms, on single floors or
in the attic
Benefits at a glance
■ Option of cascade control with up to eight boilers with a rated heating
output from 45 kW to 840 kW
■ Standard seasonal efficiency [to DIN] up to
98 % (Hs) [gross cv]/109 % (Hi) [net cv]
■ Durable and efficient through the Inox-Radial heat exchanger
■ Modulating MatriX cylinder burner with a long service life thanks to
stainless steel MatriX mesh – resistant to high temperature loads
■ Easy-to-operate Vitotronic control unit with plain text and graphic
display
■ The programming unit part of the control unit can also be fitted on a
wall mounting base (accessory)
■ Lambda Pro Control combustion controller for all gas types – saving
costs by extending the inspection intervals up to 3 years [in Ger-
many]
■ Quiet operation through low fan speed
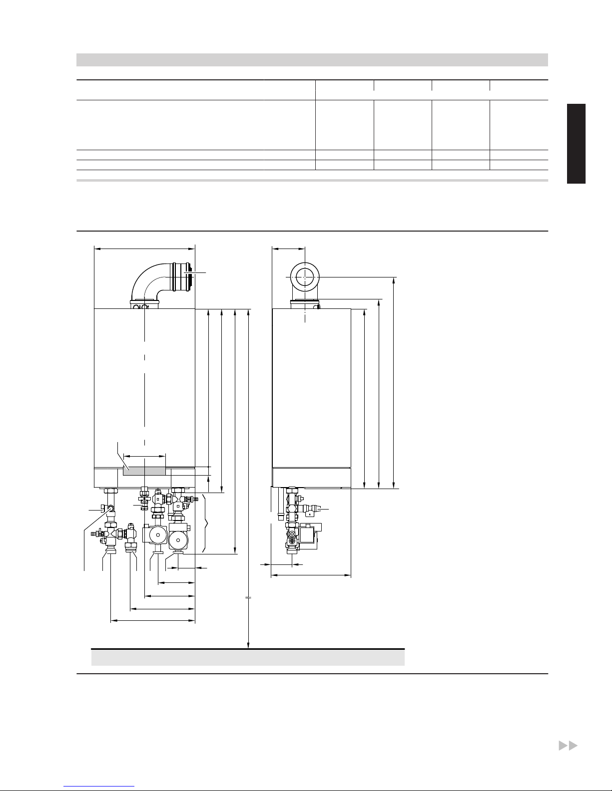
Delivered condition
Wall mounted gas condensing boiler with Inox-Radial heat exchanger,
modulating MatriX cylinder burner for natural gas and LPG to DVGW
Code of Practice G260 [Germany], plus wall mounting bracket.
Fully plumbed and wired. White epoxy-coated casing.
Packed separately:
Vitotronic 100 for constant temperature mode
or
Vitotronic 200 for weather-compensated operation.
Preset for operation with natural gas. A conversion within gas groups
E/LL is not required. The conversion to LPG is made at the gas valve
(a conversion kit is not required).
Multi boiler systems
Multi boiler systems for open flue operation with 2, 3 or 4 boilers.
Vitodens 200-W
4VIESMANN VITODENS 200-W
1
5822 432 GB