5
L'installazione deve intendersi fissa e dovrà
essere effettuata esclusivamente da ditte
specializzate e ualificate, secondo uanto
prescritto dalla Legge 46/90 e DPR n°
447/91.
L’installazione deve inoltre essere conforme
alle prescizioni delle norme UNI-CIG, CEI,
DPR 412/93 e come modificato dal DPR
551/99, e nell’osservanza delle norme
locali, comunali ed enti preposti alla salute
pubblica.
2.1 INSTALLAZIONE SINGOLA
Le vers. “25 OF” possono essere installate
in ambienti domestici nel caso di mera sosti-
tuzione o in un locale tecnico adeguato in
conformità al DPR 412/93 e come modifica-
to dal DPR 551/99, e alle Norme UNI-CIG
7131/72 e 7129/92. È indispensabile che
nei locali in cui sono installati degli apparec-
chi a gas a camera aperta possa affluire al-
meno tanta aria uanta ne viene richiesta
dalla regolare combustione del gas consu-
mato dai vari apparecchi. È uindi necessa-
rio, per l'afflusso dell'aria nei locali, praticare
nelle pareti esterne delle aperture che ri-
spondano ai re uisiti seguenti:
– avere una sezione libera totale di almeno
6 cm2per ogni kW di portata termica
installato, e comun ue mai inferiore a
100 cm2;
– essere situate il più vicino possibile all’al-
tezza del pavimento, non ostruibili e pro-
tette da una griglia che non riduca la
sezione utile del passaggio dell’aria.
Le vers. “25 BF - 3 BF”, la cui camera di
combustione e circuito alimentazione d’aria
sono a tenuta stagna rispetto all’ambiente,
si possono installare in ualun ue ambien-
te domestico.
2.2 INSTALLAZIONE DI PIÙ CALDAIE
Due o più apparecchi adibiti allo stesso uso
nel medesimo locale o in locali direttamente
comunicanti, per una portata termica com-
plessiva superiore ai 35 kW, sono conside-
rati come facenti parte di un unico impianto,
pertanto il locale caldaia dovrà avere carat-
teristiche dimensionali e re uisiti in confor-
mità al D.M. n. 74/96 “Approvazione della
regola tecnica di prevenzione incendi per la
progettazione, la costruzione e l’esercizio
degli impianti termici alimentati da combu-
stibili gassosi”. Sarà inoltre necessario, per
l'afflusso dell'aria al locale, realizzare sulle
pareti esterne delle aperture di aerazione la
cui superficie, calcolata secondo uanto
richiesto nel punto 4.1.2 dello stesso D.M.,
non deve essere in ogni caso inferiore a
3.000 cm
2
e nel caso di gas di densità mag-
giore di 0,8 a 5.000 cm
2
.
2.3 PLACCA INSTALLAZIONE
La placca installazione optional cod.
8075416 viene fornita corredata di foglio
istruzioni per il montaggio.
2.3.1 Kit curvette e rubinetti gas/san.
Per il montaggio dei componenti forniti nel
kit optional cod. 8075418, attenersi alle
istruzioni riportate in fig. 4.
2.3.2 Kit rubinetti di collegamento
Per il montaggio dei componenti forniti nel
kit optional cod. 8091806, attenersi alle
istruzioni riportate in fig. 4/a.
2.3.3 Kit sostituzione murali di
altre marche
Per il montaggio del kit optional cod.
8093900 vedere il foglio istruzioni fornito a
corredo.
2.4 ALLACCIAMENTO IMPIANTO
Prima di effettuare gli allacciamenti della
caldaia tutte le tubazioni dell’impianto devo-
no essere accuratamente lavate per elimi-
nare eventuali residui che potrebbero com-
promettere la buona funzionalità dell'appa-
recchio. Il tubo di scarico della valvola di
sicurezza dovrà essere collegato ad un
imbuto di raccolta per convogliare l'even-
tuale spurgo in caso di intervento.
L'allacciamento gas deve essere realizzato
in conformità alle norme UNI 7129/92 e
UNI 7131/99. Nel dimensionamento delle
tubazioni gas, da contatore a caldaia, si do-
vrà tenere conto sia delle portate in volumi
(consumi) in m3/h che della relativa densi-
tà del gas preso in esame. Le sezioni delle
tubazioni costituenti l’impianto devono esse-
re tali da garantire una fornitura di gas suf-
ficiente a coprire la massima richiesta, limi-
tando la perdita di pressione tra contatore
e ualsiasi apparecchio di utilizzazione non
maggiore di:
– 1,0 mbar per i gas della seconda famiglia
(gas naturale);
– 2,0 mbar per i gas della terza famiglia
(butano o propano).
All’interno del mantello è applicata una tar-
ghetta adesiva sulla uale sono riportati i
dati tecnici di identificazione e il tipo di gas
per il uale la caldaia è predisposta.
2.4.1 Filtro sulla tubazione gas
La valvola gas monta di serie un filtro all’in-
gresso che non è comun ue in grado di trat-
tenere tutte le impurità contenute nel gas e
nelle tubazioni di rete. Per evitare il cattivo
funzionamento della valvola, o in certi casi
addirittura l’esclusione della sicurezza di cui
la stessa è dotata, si consiglia di montare
sulla tubazione gas un adeguato filtro.
2.5 CARATTERISTICHE ACQUA
DI ALIMENTAZIONE
L’ac ua di alimentazione del circuito sanita-
rio e riscaldamento deve essere trattata in
conformità alla Norma UNI-CTI 8065.
È ASSOLUTAMENTE INDISPENSABILE IL
TRATTAMENTO DELL'ACQUA UTILIZZATA
PER L'IMPIANTO DI RISCALDAMENTO NEI
SEGUENTI CASI:
– impianti molto estesi (con elevati conte-
nuti d'ac ua);
– fre uenti immissioni d'ac ua di reintegro
nell'impianto;
– nel caso si rendesse necessario lo svuo-
tamento parziale o totale dell'impianto.
2 INSTALLAZIONE
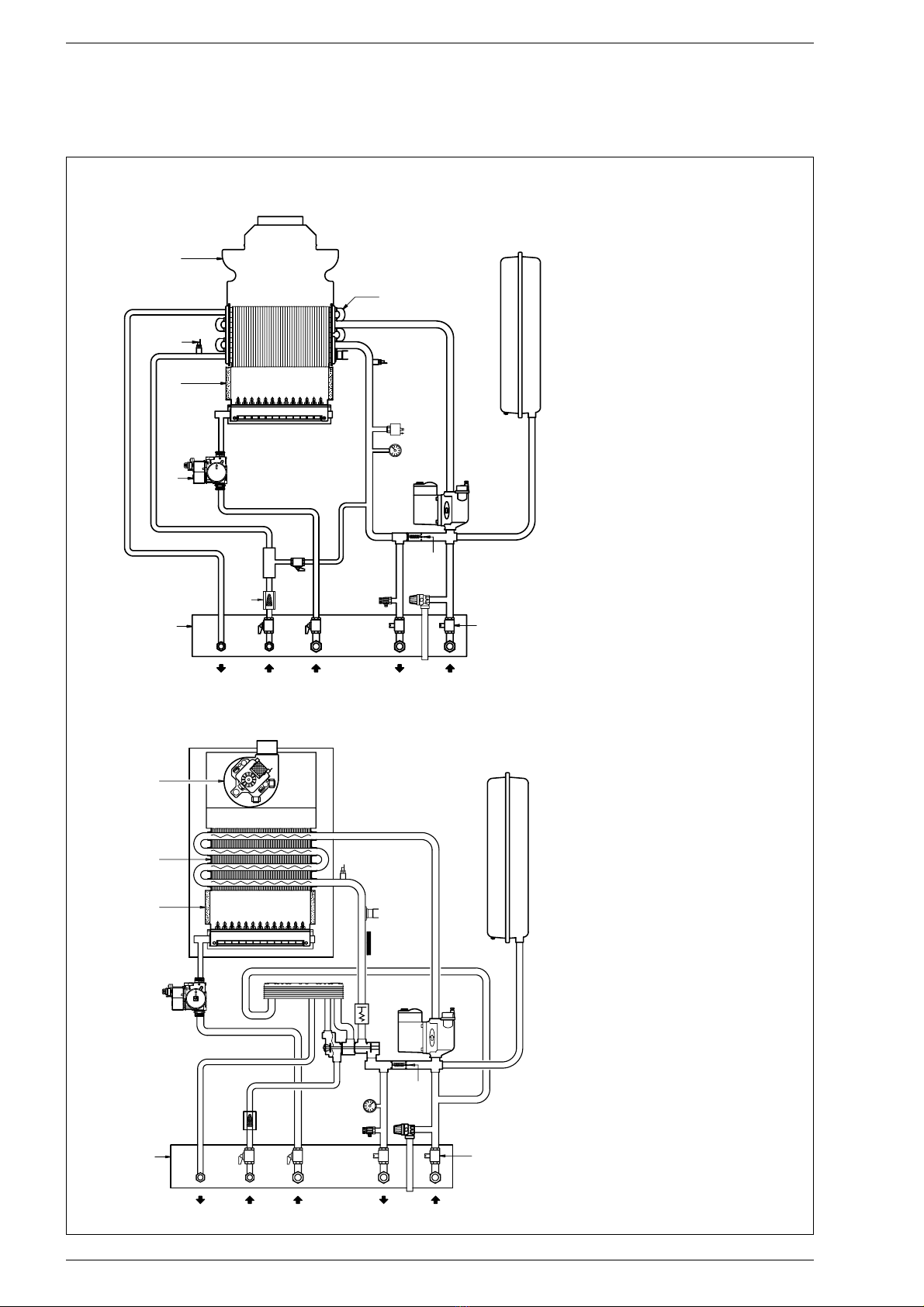
LEGENDA
1 Piastra raccordi
2 Curvetta 1/2”x14
3 Guarnizione ø 18,5/11,5
4 Curvetta 3/4” x 18
5 Guarnizione ø 24/17
6 Tronchetto 3/4”x18
7 Rubinetto gas 3/4” MF
8 Tronchetto rubinetto sanitario
9 Rubinetto entrata sanit. 1/2” MF Fig. 4
LEGENDA
1 Piastra raccordi
2 Raccordo diritto 1/2”x14
3 Guarnizione ø 18,5/11,5
4 Curvetta 1/2”x14
5 Tronchetto 1/2”x14
6 Rubinetto entrata sanitaria 1/2” MF
7 Rubinetto mandata-ritorno
impianto 3/4” MF
8 Guarnizione ø 24/17
9 Rubinetto gas 3/4” MF
10 Raccordo diritto 3/4”x18
11 Tronchetto 3/4”x18
12 Raccordo diritto 3/4”x1 con ogiva Fig. 4/a