
Principschema
FÖRKLARING
PoolsystemCL11
AXC-modulAA25
Temperaturgivare, poolBT51
Värmeväxlare, poolEP5
Cirkulationspump, poolGP9
SmutsfilterHQ4
Växelventil, poolQN19
ReglerventilRN10
TrimventilRN42
Extern tillsatsEB1
Expansionskärl, slutetCM5
Extern eltillsatsEB1
Säkerhetsventil, värmebärarsidaFL10
Hjälprelä/KontaktorKA1
Avstängningsventil, värmebärarsidaQM42 - QM43
TrimventilRN11
VärmepumpsystemEB100 - EB101
Temperaturgivare, utomhusBT1
Temperaturgivare, värmebärare returBT3
Temperaturgivare, varmvattenBT6
Temperaturgivare, kondensorBT12
Temperaturgivare, extern framledningBT25
Temperaturgivare, extern returledningBT71
VärmepumpEB100
Kylmodul AEP14
Kylmodul BEP15
Säkerhetsventil, köldbärarsidaFL10 - FL11
Säkerhetsventil, värmebärarsidaFL12 - FL13
LaddpumpGP12
SmutsfilterHQ1
HQ12 - HQ15
Avtappningsventil, värmebärarsidaQM1
Avstängningsventil, värmebärare framQM31
Avstängningsventil, värmebärare returQM32
Avstängningsventil, köldbärarsidaQM50 - QM53
Avstängningsventil, värmebärarsidaQM43
QM54 - QM57
Växelventil, värme/varmvattenQN10
Filterkulventil (smutsfilter)QZ2-QZ5
BackventilRM10 - RM13
Styrmodul SMO 40AA25
Temperaturgivare, utomhusBT1
Temperaturgivare, varmvattenladdningBT6
Temperaturgivare, varmvatten toppBT7
Temperaturgivare, extern framledningBT25
RumsgivareBT50
Temperaturgivare, extern returledningBT71
Cirkulationspump, värmebärare externGP10
Växelventil, värme/varmvattenQN10
Klimatsystem 2 (ECS 40/ECS 41)EP21
AXC-modulAA25
Framledningsgivare, extra klimatsystemBT2
Returledningsgivare, extra klimatsystemBT3
Cirkulationspump, extra klimatsystemGP20
ShuntventilQN25
Övrigt
Manometer, köldbärarsidaBP6
Temperaturgivare, varmvatten framBT7
Expansionskärl, värmebärarsidaCM1
NivåkärlCM2
Expansionskärl, köldbärarsidaCM3
Utjämningskärl (UKV)CP5
Ackumulatortank med solslingaCP10
Bergvärme/JordkollektorEP12
Säkerhetsventil, värmebärareFL2
Säkerhetsventil, köldbärareFL3
Cirkulationspump, värmebärare externGP10
Påfyllningsventil, köldbärareQM12
Avluftningsventil, köldbärarsidaQM21
Avstängningsventil, värmebärare framQM31
Avstängningsventil, värmebärare returQM32
Avstängningsventil, köldbärare framQM33
Avstängningsventil, köldbärare returQM34
AvstängningsventilQM42
BackventilRM2, RM21
ReglerventilRN10
Påfyllnadsventilsats, köldbärareXL15
Anslutning, påfyllning köldbärareXL27 - XL28
Beteckningar i komponentplacering enligt standard IEC
81346-1 och 81346-2.
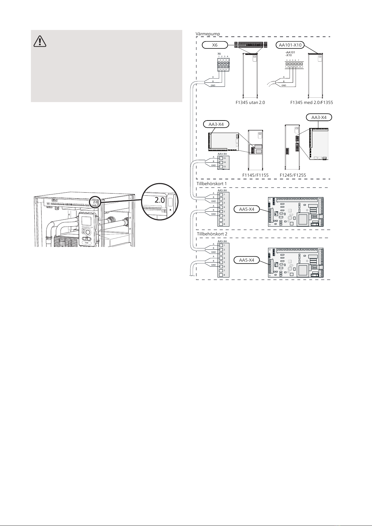
TÄNK PÅ!
Följande bilder är principscheman. Verklig an-
läggning ska projekteras enligt gällande normer.
Besök nibe.se/dockning för fler dockningsalter-
nativ.
5POOL 40 | SE