Nibe POOL 310 Guide de l'utilisateur

LEK
LEK
POOL 310
Installatörshandbok Dockningssats pool
SE
Installer manual Docking kit pool
GB
Installateurhandbuch Anschlusssatz Pool
DE
Asentajan käsikirja Liitäntäsarja allas
FI
Installatørhåndbog Sammenkoblingssæt pool
DK
IHB 1412-4
231308


Allmänt
POOL 310 är ett tillbehör för att möjliggöra poolupp-
värmning med VVM 310/VVM 320. Inomhusmodulen
styr växelventilen (QN19) samt cirkulationspumpen
(GP9) och laddpumpen (GP12).
Innehåll
Laddpump1st
Buntband2st
Ställdon växelventil1st
Växelventil1st
Apparatlåda1st
Värmeledningspasta1st
Aluminiumtejp1st
Isoleringstejp1st
Temperaturgivare1st
Komponentplacering
LEK
AA5-X4
AA5-S2
AA5-X2 AA5-X9 X1
FA1
AA5-F1AA5
Elkomponenter
Automatsäkring, 10AFA1
Anslutningsplint, spänningsmatningX1
TillbehörskortAA5
Anslutningsplint, givare och extern blocke-
ring
AA5-X2
Anslutningsplint, kommunikationAA5-X4
Anslutningsplint, cirkulationspump, shunt
och hjälprelä
AA5-X9
DIP-switchAA5-S2
Finsäkring, T4AH250VAA5-F1
Beteckningar i komponentplacering enligt standard
IEC 81346-1 och 81346-2.
3
Svenska, Installatörshandbok - POOL 310
SE

Röranslutning
Allmänt
När VVM 310/VVM 320 är dockad mot pool måste
laddkretsen förses med en yttre laddpump (GP12) då
det inte är möjligt att använda den interna laddpum-
pen (GP12) i VVM310 och (GP6) i VVM320. Den interna
cirkulationspumpen (GP1) i VVM 310/VVM 320 upp-
rätthåller flödet i klimatsystemet under poolladdning.
Röranslutningar
1. Om VVM 310/VVM 320 redan är installerad och
vattenfylld så ska klimatsystemet och VVM
310/VVM 320 tömmas på vatten, se installatörs-
handboken för VVM 310/VVM 320 för ytterligare
instruktioner.
2. Rör till och från poolen kopplas in mellan värme-
pumpen och VVM 310/VVM 320.
TIPS!
För att undvika onödiga värmeförluster bör
rören isoleras.
Växelventil
Montera växelventilen (QN19) med port AB som inkom-
mande framledning från värmepumpen, port A mot
poolen och port B mot värmesystemet. Montera den
så att port AB är öppen mot port B när motorn är i vilo-
läge. Vid signal öppnar port AB mot port A.
%
$
$%
Temperaturgivare
Temperaturgivaren för pool (BT51) placeras på retur-
ledningen från poolen.
K
Temperaturgivaren monteras med buntband tillsam-
mans med värmeledningspasta och aluminiumtejp.
Därefter ska den isoleras med medföljande isolertejp.
OBS!
Givar- och kommunikationskablar får ej förläg-
gas i närheten av starkströmsledning.
4
SE

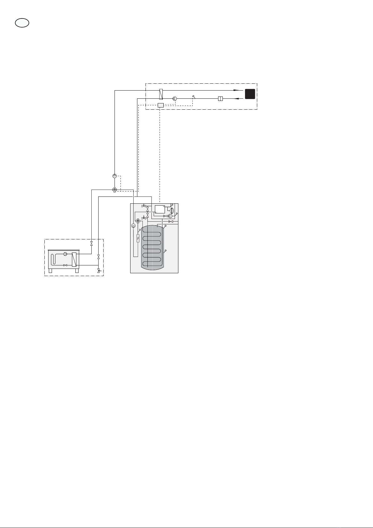
Systemprincip
Förklaring
VVM 310/VVM 320EB15PoolsystemCL11
F2026/F2030/F2040EB101ApparatlådaAA25
ÖvrigtTemperaturgivare, poolBT51
ExpansionskärlCM1Värmeväxlare, poolEP5
Säkerhetsventil, klimatsystemFL2Cirkulationspump, poolGP9
Laddpump, poolGP12
SmutsfilterHQ4
Beteckningar enligt standard IEC 61346-2.Växelventil, poolQN19
Dockning till pool
Uppvärmning av poolen prioriteras enligt valda inställningar i inomhusmodulen. Om poolgivaren (BT51) inte är
ansluten tillåts poolladdningen inte att starta.
Principschema VVM 310 och POOL 310
-FL2
-CM1
-EB15
-RN10
-EB101
XL2
XL1 -HQ1
-QM1
-QM41
-FL10
-QM40
-EB101
-GP9 -BT51 -HQ4
-EP5
-AA25
-CL11
-CL11-QN19
-CL11
-GP12
OBS! Detta är ett principschema. Verklig anläggning skall projekteras enligt gällande normer.
5
SE

Principschema VVM 320 och POOL 310
-EB15
-EB101
-FL10
-QM41
-QM40
POOL
-CL11-QN19
-CL11-GP12
-GP9 -BT51 -HQ4
-EP5
-AA25
-CL11
-XL8
-XL9
OBS! Detta är ett principschema. Verklig anläggning skall projekteras enligt gällande normer.
6
SE

Elinkoppling
OBS!
All elektrisk inkoppling skall ske av behörig
elektriker.
Elektrisk installation och ledningsdragning
skall utföras enligt gällande bestämmelser.
Inomhusmodulen ska vara spänningslös vid
installation av POOL 310.
Elschema finns i slutet av denna installatörshandbok.
Anslutning av kommunikation
Luft/vattenvärmepumpar
Innemoduler
Detta tillbehör innehåller ett tillbehörskort (AA5) som
ska anslutas direkt till inomhusmodulen på ingångskor-
tet (plint AA3-X4).
Om flera tillbehör ska anslutas eller redan finns instal-
lerade måste nedanstående instruktion följas.
Det första tillbehörskortet ska anslutas direkt till inom-
husmodulens plint AA3-X4. De efterföljande korten
ansluts i serie med föregående kort.
Använd kabeltyp LiYY, EKKX eller likvärdig.
1
2
3
4
5
6
7
8
AA5-X4
15
A
B
GND
A
B
GND
A
B
GND
A
B
GND
A
B
GND
14
13
AA3-X4
1
2
3
4
5
6
7
8
AA5-X4
990
7LOOEHK¸UVNRUW
7LOOEHK¸UVNRUW
ON
12345678
-X9
-X2
24 20212223 1516171819 1011121314 567891
1
N
L
PE
PE
1
2
3
4
5
6
7
8
2
3
4
5
6
7
8
9
234
-X8
-X4
-X10
-X1
$$;
ON
12345678
-X9
-X2
24 20212223 1516171819 1011121314 567891
1
N
L
PE
PE
1
2
3
4
5
6
7
8
2
3
4
5
6
7
8
9
234
-X8
-X4
-X10
-X1
$$;
(%
Wilo
Wilo
VVM310
$$;
[
1
2
3
4
5
6
7
8
AA5-X4
15
A
B
GND
A
B
GND
A
B
GND
A
B
GND
A
B
GND
14
13
AA3-X4
1
2
3
4
5
6
7
8
AA5-X4
VVM320
VVM 320
Tillbehörskort 1
Tillbehörskort 2
ON
12345678
-X9
-X2
24 20212223 1516171819 1011121314 567891
1
N
L
PE
PE
1
2
3
4
5
6
7
8
2
3
4
5
6
7
8
9
234
-X8
-X4
-X10
-X1
AA5-X4
ON
12345678
-X9
-X2
24 20212223 1516171819 1011121314 567891
1
N
L
PE
PE
1
2
3
4
5
6
7
8
2
3
4
5
6
7
8
9
234
-X8
-X4
-X10
-X1
AA5-X4
EB15
AA3-X4
Anslutning av matning
Anslut spänningsmatningen till plint X1 enligt bild.
3
2
1N
230V 50Hz-X1
L
PE
$SSDUDWO§GD ([WHUQW
7
SE

ON
12345678
-X9
-X2
24 20212223 1516171819 1011121314 567891
1
N
L
PE
PE
1
2
3
4
5
6
7
8
2
3
4
5
6
7
8
9
234
-X8
-X4
-X10
-X1
$$; $$;
$$;
$$6
Anslutning av givare och extern blockering
Använd kabeltyp LiYY, EKKX eller likvärdig.
Poolgivare (BT51)
Anslut poolgivaren till AA5-X2:23-24.
Extern blockering (valfritt)
En kontakt kan anslutas till AA5-X2:21-22 för att kunna
blockera pooluppvärmningen. När kontakten sluts
blockeras pooluppvärmningen.
Extern blockering
AA5-X2
24 20212223 16171819
BT51
TÄNK PÅ!
Reläutgångarna på tillbehörskortet får max
belastas med 2 A (230 V) totalt.
Anslutning av cirkulationspump (GP9)
Anslut cirkulationspumpen (GP9) till AA5-X9:8 (230 V),
AA5-X9:7 (N) och X1:3 (PE).
1
2
3
4
5
6
7
8
9
3
2
1
AA25 Externt
GP9
AA5-X9
X1
Anslutning av växelventilsmotor (QN19) och
laddpump, pool (GP12)
Anslut växelventilens motor (QN19) och laddpumpen
(GP12) till en extern kopplingsbox.
Anslut svart ledare från växelventilen samt brun ledare
från laddpumpen tillsammans i kopplingsboxen.
Anslut blå ledare från växelventilen samt blå ledare
från laddpumpen tillsammans i kopplingsboxen.
Anslut styrande kabel från kopplingsboxen till AA5-
X9:6 (signal), AA5-X9:5 (N), AA5-X10:2 (230 V) och
X1:3(PE). Anslut laddpumpens styrsignal till AA5-X2:5-6.
2
1
1
2
3
4
5
6
7
8
9
345612
3
2
1
6YDUW
%O§
%UXQ
$$ ([WHUQW
$$; 41
$$; *3
;
$$;
.RSSOLQJV
ER[
%O§
%UXQ
%O§
%UXQ
*XOJU¸Q
8
SE

DIP-switch
DIP-switchen på tillbehörskortet ska ställas in enligt
nedan.
ON
12345678
AA5-S2
Aktivering av POOL 310
Programinställningen av POOL 310 kan göras via
startguiden eller direkt i menysystemet.
Startguiden
Startguiden visas vid första uppstart efter värmepumps-
installationen, men finns även i meny 5.7.
Menysystemet
Om du inte gör alla inställningar via startguiden eller
behöver ändra någon inställning kan du göra detta i
menysystemet.
Meny 5.2 - systeminställningar
Aktivering/avaktivering av tillbehör.
Meny 4.1.1 - pool
Aktivering av pooluppvärmning samt inställning av
start- och stopptemperatur.
Meny 5.1.11 - värmebärarpumpshastighet
Inställning av värmebärarpumpens hastighet.
TÄNK PÅ!
Se även Installatörshandboken för
VVM 310/VVM 320.
9
SE

General
POOL 310 is an accessory that enables pool heating
with VVM 310/VVM 320. The indoor module controls
the reversing valve (QN19), the circulation pump (GP9
and the charge pump (GP12).
Contents
Charge pump1x
Cable ties2x
Actuator reversing valve1x
Shuttle valve1x
Unit box1x
Heating pipe paste1x
Aluminium tape1x
Insulation tape1x
Temperature sensor1x
Component positions
LEK
AA5-X4
AA5-S2
AA5-X2 AA5-X9 X1
FA1
AA5-F1AA5
Electrical components
Miniature circuit-breaker. 10AFA1
Terminal block, power supplyX1
Accessory cardAA5
Terminal block, sensors and external
blocking
AA5-X2
Terminal block, communicationAA5-X4
Terminal block, circulation pump, mixing
valve and auxiliary relay
AA5-X9
DIP switchAA5-S2
Fine wire fuse, T4AH250VAA5-F1
Designations in component locations according to
standard IEC 81346-1 and 81346-2.
10
English, Installer manual - POOL 310
GB
Autres manuels pour POOL 310
4
Table des matières
Langues :
Autres manuels Nibe Chauffe-piscine
Manuels Chauffe-piscine populaires d'autres marques

Jandy
Jandy LJ Manuel utilisateur

Pentair Pool Products
Pentair Pool Products MiniMax NT Series Manuel utilisateur

Raypak
Raypak P-R185A to P-R405A, C-R185A to Manuel utilisateur

Hayward Pool Products
Hayward Pool Products HP40A Manuel de service

Laars
Laars Lite 2 LC Manuel utilisateur

SUPREME
SUPREME Heatseeker Solar Pool Heating Manuel utilisateur

















