NOTICE - This service data sheet is intended for use by persons having electrical
and mechanical training and a level of knowledge of these subjects generally
considered acceptable in the appliance repair trade. The manufacturer cannot be
responsible, nor assume any liability for injury or damage of any kind arising from
the use of this data sheet.
Safe servicing practices
To avoid the possibility of personal injury and/or property damage, it is important that safe
servicing practices be observed. The following are examples, but without limitation, of
such practices.
1. Before servicing or moving an appliance remove power cord from electrical outlet,
trip circuit breaker to OFF, or remove fuse.
2. Never interfere with the proper installation of any safety device.
3. GROUNDING: The standard color coding for safety ground wires is GREEN or
GREEN WITH YELLOW STRIPES. Ground leads are not to be used as current
carrying conductors. It is extremely important that the service technician
reestablish all safety grounds prior to completion of service. Failure to do so
will create a potential safety hazard.
4. Prior to returning the product to service, ensure that:
• All electric connections are correct and secure.
• All electrical leads are properly dressed and secured away from sharp edges, high-
temperature components, and moving parts.
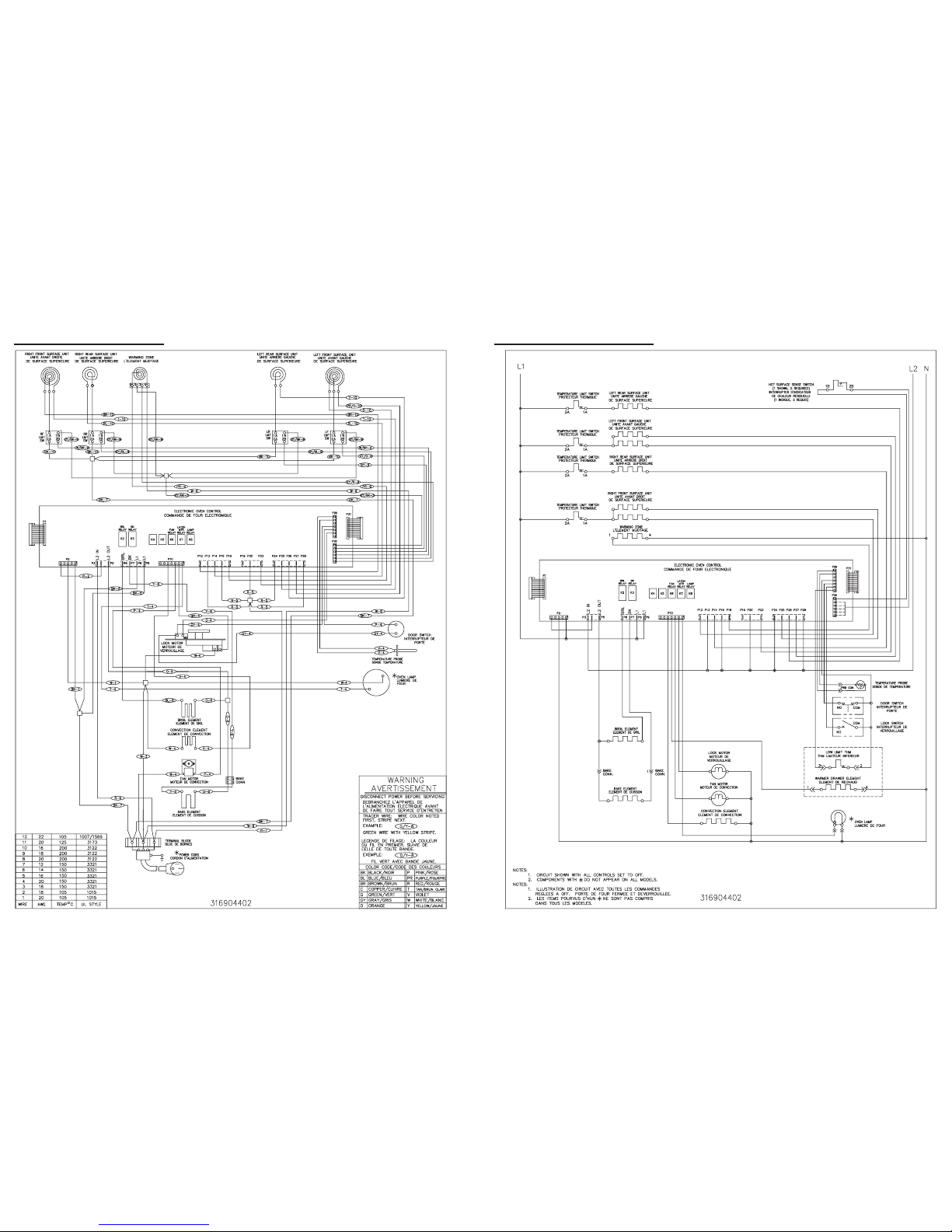
SERVICE DATA SHEET - Electric Range with ES 1000 Electronic Oven Control
p/n 316904402en (0905)
Electronic oven control (EOC) & jumper connection locations
• All uninsulated electrical terminals, connectors, heaters, etc. are adequately
spaced away from all metal parts and panels.
• All safety grounds (both internal and external) are correctly and securely
reassembled.
Oven Calibration
Set the electronic oven control for normal baking at 350°F. Obtain an average oven
temperature after a minimum of 5 cycles. Press cancel keypad to end Bake mode.
Temperature Adjustment
1. While in a non-cooking mode, press and hold the bake key pad for 6 seconds.
2. The current calibration offset (temperature adjustment) should appear in the
temperature display.
3. Use the number key pads (0-9) to enter the desired amount of adjustment (up to
35°F).
4. Press the self clean key pad to change the sign of the adjustment to a (-) if
necessary. A positive adjustment will not display a sign.
5. Once the desired adjustment (-35° to 35° F) has been entered, press the start
key pad to accept the change or the cancel key pad to reject the change.
NOTE: Changing calibration affects all Baking modes. The adjustments made will not
change the self-cleaning temperature.
IMPORTANT
DO NOT REMOVE THIS BAG
OR DESTROY THE CONTENTS
WIRING DIAGRAMS AND SERVICE
INFORMATION ENCLOSED
REPLACE CONTENTS IN BAG
Keypad Test Matrix
EOC jumper connections
Electronic Oven Control Fault Code Descriptions
Fault
Code
Runaway temperature.
Oven heats when no cook
cycle is programmed.
Likely failure
condition/cause Suggested Corrective Action
Shorted keypad or selector
switch.
F11 1. Reset power supply to range - Disconnect power, wait 30 seconds and reapply power.
2. Check/reseat ribbon harness connections between touch panel and EOC.
3. Test keyboard circuits using test matrix. Replace touch panel if defective.
4. If keyboard ciruits check good replace the EOC.
EOC Internal software error
or failure.
F12
F13
Disconnect power, wait 30 seconds and reapply power. If fault returns upon power-up, replace EOC.
Keyboard tail failure.
F14 1. Check/reseat ribbon harness connections between keyboard touch panel and EOC..
2. Test keyboard circuits using test matrix (below). Replace touch panel if defective.
3. If keyboard circits check good replace EOC.
EOC Internal hardware error
of failure.
F15
F19
Disconnect power, wait 30 seconds and reapply power. If fault returns upon power-up, replace EOC.
Open oven sensor probe
circuit.
Shorted oven sensor probe
circuit.
F30 1. (F30) Check resistance at room temperature & compare to RTD Sensor resistance chart. If resistance is correct replace the EOC. If
resistance does not match the RTD chart replace RTD Sensor Probe. Check Sensor wiring harness between EOC & Sensor Probe
connector.
2. (F31) Check resistance at room temperature, if less than 500 ohms, replace RTD Sensor Probe. Check for shorted Sensor Probe
harness between EOC & Probe connector. If resistance is correct replace the EOC.
F31
F64
F62
F90
F91
F92
F93
F94
F95
If lock motor runs:
1. Test continuity of wiring between EOC and lock switch on lock motor assy. Repair if needed.
2. Advance motor until cam depresses the plunger on lock motor switch. Test continuity of switch contacts. If switch is open replace
lock motor assemblyy.
3. If motor runs and switch contacts and wiring harness test good, replace the EOC.
If lock motor does not run:
1. Test continuity of lock motor windings. Replace lock motor assembly if windings are open.
2. Test lock motor operation by using a test cord to apply voltage. If motor does not operate replace lock motor assy.
3. If motor runs with test cord check continuity of wire harness to lock motor terminals. If harness is good replace the EOC.
Door lock motor or latch
circuit failure.
If Oven is cold:
1. If fault code is present with cold oven test oven temperature sensor probe circuit resistance. Use RTD scale found in the tech sheet.
2. Replace probe or repair wiring connections if defective.
3. If temperature sensor probe circuit is good but fault code remains when oven is cold replace the EOC.
If Oven is overheating:
1. If oven is severely overheating/heating when no cook cycle is programmed test oven temperature sensor probe circuit resistance using
the RED scale found in the service tech sheet. Also verify that the temperature sensor probe in properly installed in the oven cavity.
2. Disconnect power from the range, wait 30 seconds and reapply power. If oven continues to heat when the power is reapplied, replace
the EOC. NOTE: Severe overheating may require the entire oven to be replaced should damage be extensive.
F10
F42 EOC internal software
configuration error.
Usually this failure code would only appear if the EOC has been replaced with an incorrect version. Verify that the correct replacement
part number is being used.
1. Verify proper assembly of backguard panel. Check for damaged or loose panels, brackets, endcaps, etc.
2. Check for blocked ventilation slots in control panel rear cover.
3. Inspect oven vent for proper assembly and air flow.
4. Verify operation of cooling fan (if present).
EOC oven temperature.
Higher than normal
temperature detected on the
EOC board.
F60
Internal signal voltage error. Disconnect power, wait 30 seconds and reapply power. If fault returns upon power-up, replace EOC.
F63 Display communication error.
Confirm that range is connected to proper power source (50Hz or 60Hz). Generators or other portable power supplies and solar grids, etc.
may not provide proper power supply. If power source is correct replace the EOC.
Time Base failure - The EOC
cannot determine if
connected to 50 or 60Hz
power supply.
F65 Keyboard short circuit or
internal EOC failure.
1. Test keyboard circuits using test matrix. Replace touch panel if defective.
2. If keyboard circuits check good replace the EOC
F66 Disconnect power, wait 30 seconds and reapply power. If fault returns upon power-up, replace EOC.EOC internal power supply
failure.
Tech Sheet Abbreviations and Terminology
EOC = Electronic Oven Control
VSC = Variable Speed Control
PS = Power Supply board (PS1 , PS2, etc.)
RTD = Resistance Temperature Device. (Temp Probe or
Temp Sensor)
TCO = Thermal Cut Out also “Thermo Disc” or “Thermal Limiter”
F68
F69
High voltage condition. L1 or
L2 may be crossed with
Neutral on incoming PS.
1. Verify proper incoming line voltage and polarity of L1, L2 and Neutral power supply connections at range terminal block.
2. If power supply voltage and polarity are correct replace EOC.
To test keypad function check for continuity between indicated pin locations while pressing keypad. Example: To test the Bake keypad
use pin #2 & pin #10 on connector P31. To test cooktop keypad use pin 1 on connector P1 & pin 9 on connector P31.
View: control membrane overlay from front
Left side Right side