THM86/87 Industrial Multifunction Dew Point Transmitter Operation manual
Version:01
PAGE:4 OF 27 Date:2017.12.20
Please read this Specification carefully, prior to use of this, and keep the manual properly, for
timely reference.
This product can not be used for explosion-proof area.
Do not use this product in a situation where human life may be affected.
EYC-TECH will not bear any responsibility for the results produced by the operators.
●Installation and wring must be performed by qualified personnel in accordance with all applicable
safety standards.
●This product must be operated under the operating conditions specified in manual to prevent
equipment damages.
●This product must be operated under the operating condition specified in this manual to prevent
equipment damages.
●This product must be operated under the normally atmospheric condition to prevent equipment
damages.
● To prevent products damage, always disconnect the power supply from the product before
performing any wiring and installation.
● All wiring must comply with local codes of indoor wiring and electric installation rules.
● Please use crimp type terminal.
● To prevent personal injury, do not touch the moving part of product in operation.
● It may cause high humidity atmosphere during the product was breakdown. Please take safety
strategy.
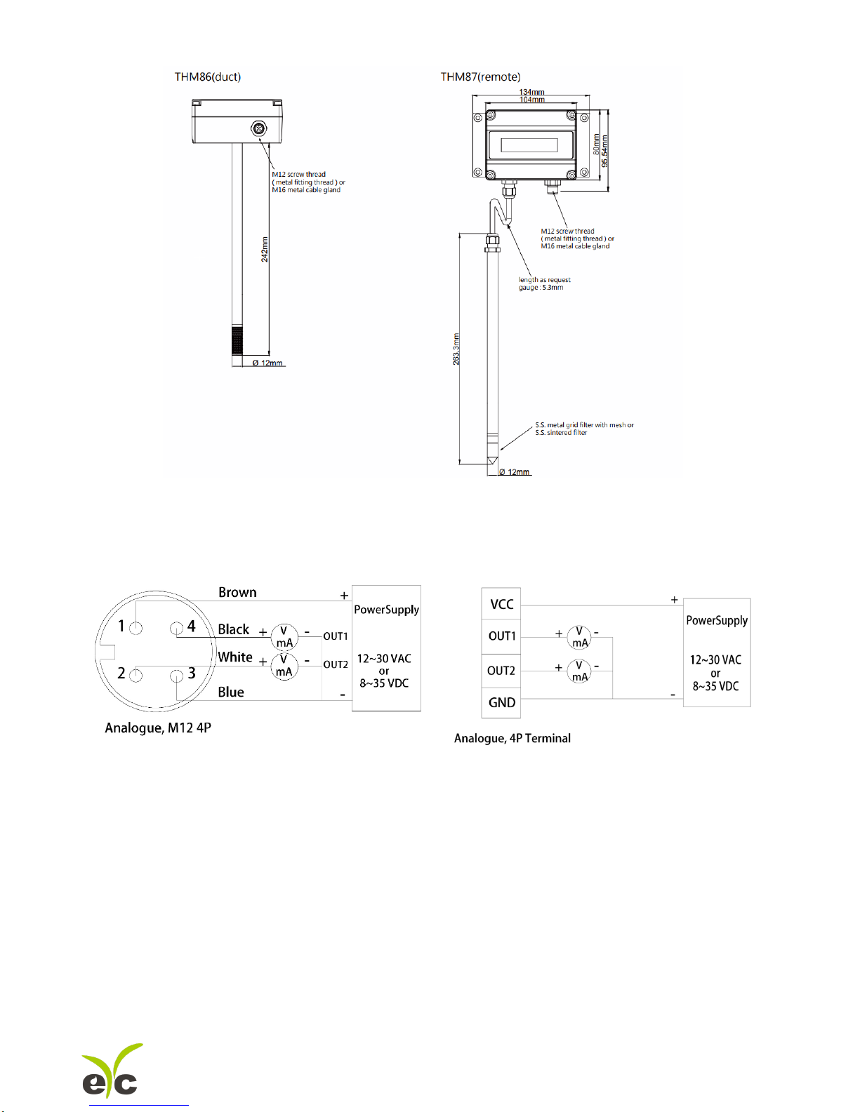
3. Dimension