
- 2 - Trove1HC1 / THC1 / Trove2HC2 / THC2
Overview:
Trove1HC1 and Trove2HC2 accommodate various combinations of Hartmann Controls modules with or without Altronix power supplies
and accessories for access control systems.
Specifications:
• 16 Gauge backplane and enclosure with ample knockouts for convenient access.
Agency Listings:
• UL 294 - 6th edition: Line Security I, Destructive Attack I, Endurance IV, Stand-by Power II*.
*Stand-by Power Level I if no battery is supplied.
• This Class B digital apparatus complies with Canadian ICES-003.
Cet appareil numérique de la classe B est conforme á la norme NMB-003 du Canada.
• CE European Conformity.
Installation Instructions for Trove1 and Trove2:
1. Remove backplane from enclosure prior to mounting (do not discard hardware).
2. Trove1HC1 (Pg. 7):
Mark and predrill holes on the wall to line up with the top two keyholes in the enclosure. Install two upper fasteners and
screws in the wall with the screw heads protruding. Place the enclosure’s upper keyholes over the two upper screws;
level and secure. Mark the position of the lower two holes. Remove the enclosure. Drill the lower holes and install the
two fasteners. Place the enclosure’s upper keyholes over the two upper screws.
Install the two lower screws and make sure to tighten all screws.
Trove2HC2 (Pg. 8):
Mark and predrill holes on the wall to line up with the top three keyholes in the enclosure. Install three upper fasteners and screws in
the wall with the screw heads protruding. Place the enclosure’s upper keyholes over the three upper screws; level and secure.
Mark the position of the lower three holes. Remove the enclosure. Drill the lower holes and install the three fasteners. Place the
enclosure’s upper keyholes over the three upper screws. Install the three lower screws and make sure to tighten all screws.
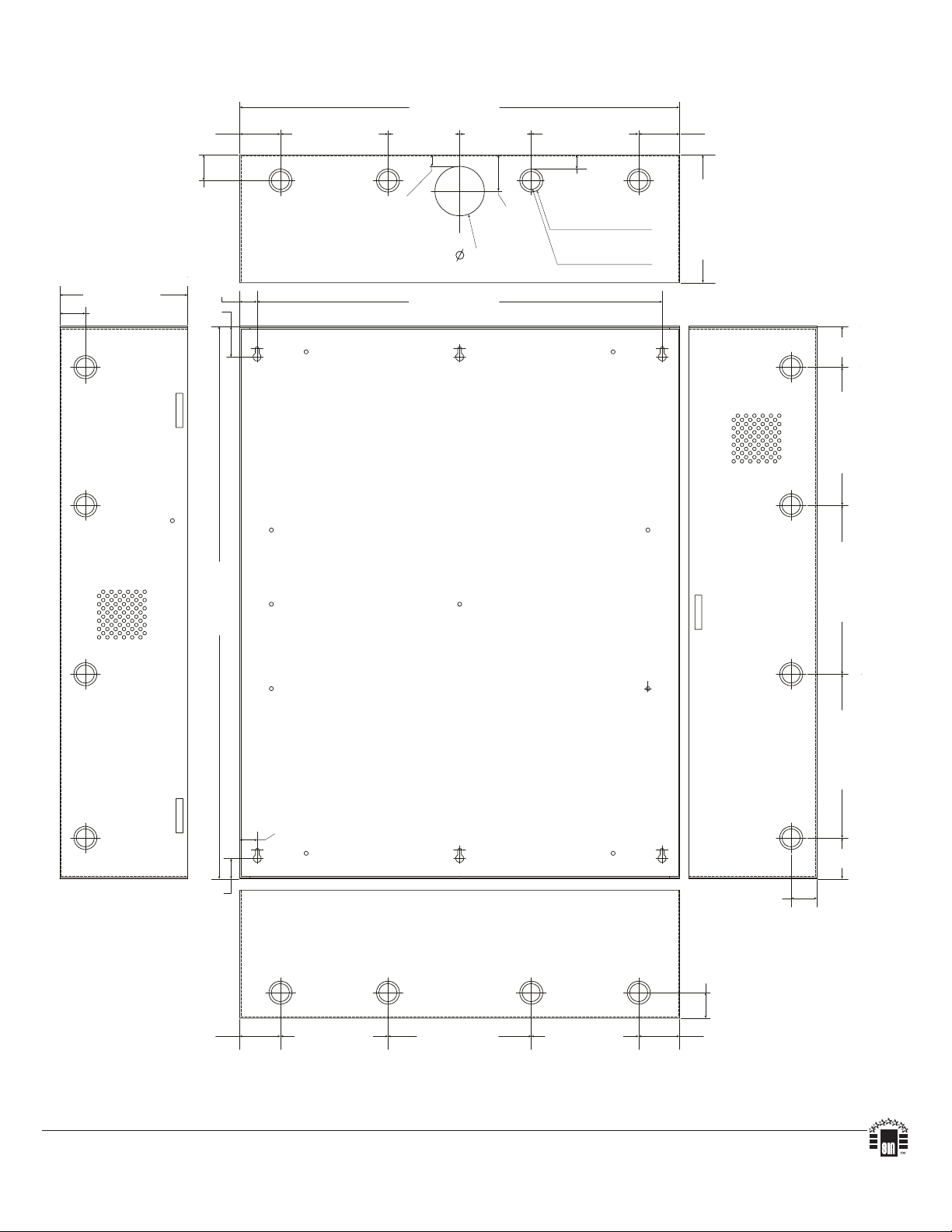
3. Mount included UL Listed tamper switch (Altronix Model TS112 or equivalent)
in desired location, opposite hinge. Slide the tamper switch bracket onto the edge of
the enclosure approximately 2” from the right side (Fig. 1, pg. 2).
Connect tamper switch wiring to the Access Control Panel input or the appropriate
UL Listed reporting device. To activate alarm signal open the door of the enclosure.
4. Mount Altronix/Hartmann Controls modules to THC1 or THC2 backplane, refer to pages 3, 4.
Trove1HC1
Trove1 enclosure with THC1 Altronix/Hartmann Controls backplane
• Includes: tamper switch, cam lock, lock nuts,
and mounting hardware.
Enclosure Dimensions (H x W x D):
18” x 14.5” x 4.625” (457mm x 368mm x 118mm).
THC1
Altronix/Hartmann Controls backplane only
• Includes mounting hardware.
Dimensions (H x W x D):
16.625” x 12.5” x 0.3125” (422.3mm x 317.5mm x 7.9mm).
THC1 accommodates a combination of the following:
Altronix Modules:
• One (1) AL400ULXB2, AL600ULXB, AL1012ULXB,
AL1024ULXB2,
eFlow4NB, eFlow6NB, eFlow102NB or eFlow104NB.
• One (1) ACM4(CB), MOM5, PD4UL(CB), PD8UL(CB),
PDS8(CB), VR6.
Hartmann Controls Modules:
• One (1) PRS_Master module.
• Up to four (4) PRS_TDM or PRS_IO8 modules.
Trove2HC2
Trove2 enclosure with THC2 Altronix/Hartmann Controls backplane
• Includes: tamper switch, cam lock, lock nuts,
and mounting hardware.
Enclosure Dimensions (H x W x D):
27.25” x 21.75” x 6.5” (692.2mm x 552.5mm x 165.1mm).
THC2
Altronix/Hartmann Controls backplane only
• Includes mounting hardware.
Dimensions (H x W x D):
25.375” x 19.375” x 0.325” (644.5mm x 482.6mm x 8.3mm)
THC2 accommodates a combination of the following:
Altronix Modules:
• Two (2) AL400ULXB2, AL600ULXB, AL1012ULXB,
AL1024ULXB2,
eFlow4NB, eFlow6NB, eFlow102NB or eFlow104NB.
• Two (2) ACM8(CB), MOM5, PD4UL(CB),
PD8UL(CB), PDS8(CB), VR6.
Hartmann Controls Modules:
• Up to two (2) PRS_Master modules.
• Up to eight (8) PRS_TDM or PRS_IO8 modules.
Fig. 1
Tamper Switch
(provided)
To Access Control Panel or
UL Listed Reporting Device
Edge of
Enclosure
Enclosure