
Access & Power Integration
Rev. TMK051217
Installing Company: _____________________ Service Rep. Name: __________________________________________
Address: ________________________________________________________ Phone #: _________________________
All registered trademarks are property of their respective owners. More than just power.™
Installation Guide
T2MK3F4
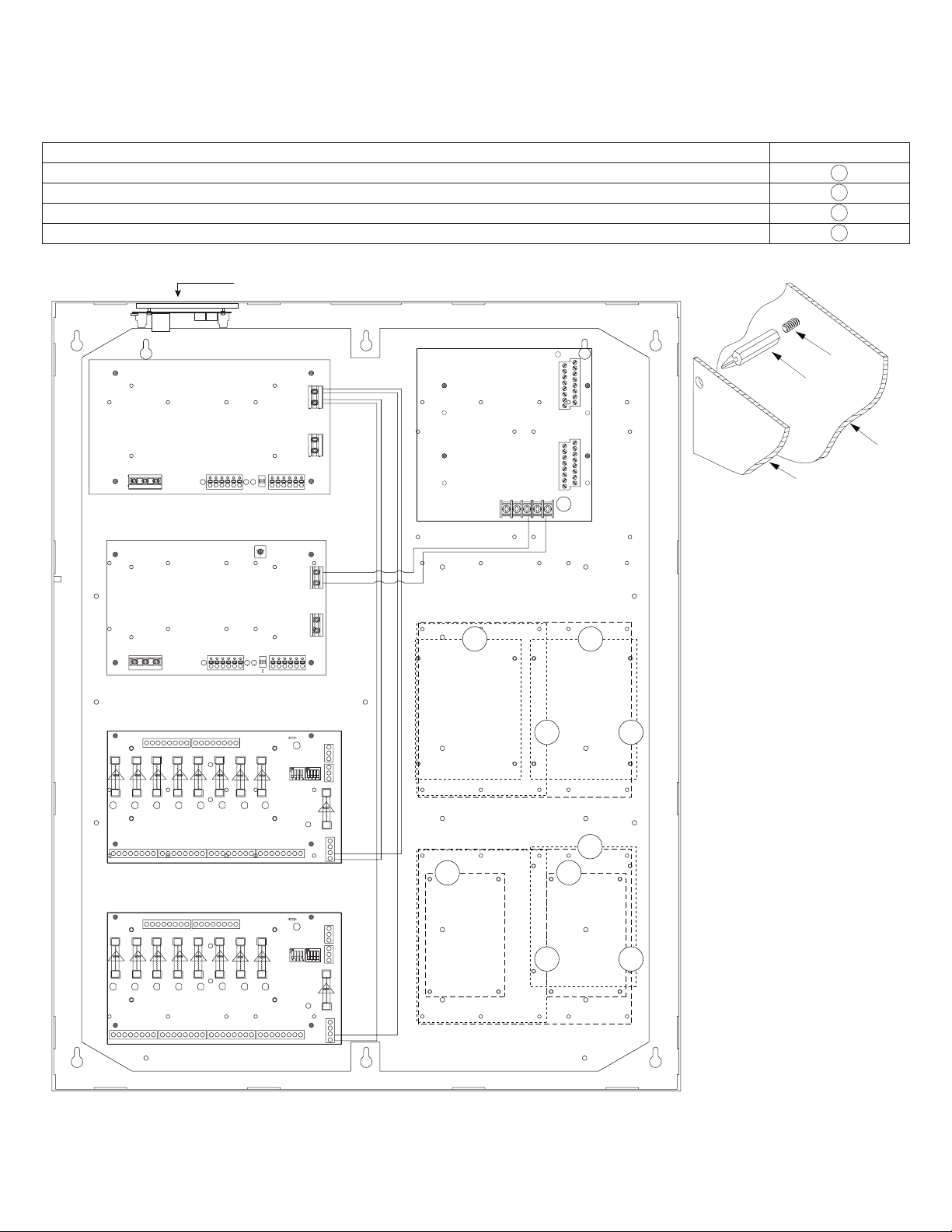
Fully assembled kit includes:
- Trove2 enclosure with TM2 Altronix/Mercury backplane
- (1) eFlow6NB - Power Supply/Charger
- (1) ACM4 - Fused Access Power Controller
- (1) VR6 - Voltage Regulator
- (1) PDS8 - Dual Input Power Distribution Module
T2MK3F4Q
Fully assembled kit includes:
- Trove2 enclosure with TM2 Altronix/Mercury backplane
- (1) eFlow6NB - Power Supply/Charger
- (1) LINQ2 - Network Communications Module
- (1) ACM4 - Fused Access Power Controller
- (1) VR6 - Voltage Regulator
- (1) PDS8 - Dual Input Power Distribution Module
T2MK3F8
Fully assembled kit includes:
- Trove2 enclosure with TM2 Altronix/Mercury backplane
- (1) eFlow6NB - Power Supply/Charger
- (1) ACM8 - Fused Access Power Controller
- (1) VR6 - Voltage Regulator
- (1) PDS8 - Dual Input Power Distribution Module
T2MK3F8Q
Fully assembled kit includes:
- Trove2 enclosure with TM2 Altronix/Mercury backplane
- (1) eFlow6NB - Power Supply/Charger
- (1) LINQ2 - Network Communications Module
- (1) ACM8 - Fused Access Power Controller
- (1) VR6 - Voltage Regulator
- (1) PDS8 - Dual Input Power Distribution Module
T2MK7F8
Fully assembled kit includes:
- Trove2 enclosure with TM2 Altronix/Mercury backplane
- (1) eFlow104NB - Power Supply/Charger
- (1) ACM8 - Fused Access Power Controller
- (1) VR6 - Voltage Regulator
- (1) PDS8 - Dual Input Power Distribution Module
T2MK7F8Q
Fully assembled kit includes:
- Trove2 enclosure with TM2 Altronix/Mercury backplane
- (1) eFlow104NB - Power Supply/Charger
- (1) LINQ2 - Network Communications Module
- (1) ACM8 - Fused Access Power Controller
- (1) VR6 - Voltage Regulator
- (1) PDS8 - Dual Input Power Distribution Module
T2MK75F16
Fully assembled kit includes:
- Trove2 enclosure with TM2 Altronix/Mercury backplane and TMV2 door backplane
- (1) eFlow104NB and (1) eFlow102NB - Power Supply/Chargers
- (2) ACM8 - Fused Access Power Controllers
- (1) PD16W - Power Distribution Module
T2MK75F16Q
Fully assembled kit includes:
- Trove2 enclosure with TM2 Altronix/Mercury backplane and TMV2 door backplane
- (1) eFlow104NB and (1) eFlow102NB - Power Supply/Chargers
- (1) LINQ2 - Network Communications Module
- (2) ACM8 - Fused Access Power Controllers
- (1) PD16W - Power Distribution Module
T2MK77F16
Fully assembled kit includes:
- Trove2 enclosure with TM2 Altronix/Mercury backplane and TMV2 door backplane
- (2) eFlow104NB - Power Supply/Chargers
- (2) ACM8 - Fused Access Power Controllers
- (1) VR6 - Voltage Regulator
- (1) PDS8 - Dual Input Power Distribution Module
T2MK77F16Q
Fully assembled kit includes:
- Trove2 enclosure with TM2 Altronix/Mercury backplane and TMV2 door backplane
- (2) eFlow104NB - Power Supply/Chargers
- (1) LINQ2 - Network Communications Module
- (2) ACM8 - Fused Access Power Controllers
- (1) VR6 - Voltage Regulator
- (1) PDS8 - Dual Input Power Distribution Module
4 Door Kits with Fused Outputs:
8 Door Kits with Fused Outputs:
16 Door Kits with Fused Outputs:
All components of these Trove kits are UL Listed sub-assemblies.
Please refer to the included corresponding Sub-Assembly Installation Guides for further information.