
2
Prima di usare i prodotto eggere attentamente
e istruzioni contenute ne presente ibretto.
Vortice non potrà essere ritenuta responsabi e
per eventua i danni a persone o cose causati
da mancato rispetto de e indicazioni di seguito
e encate, a cui osservanza assicurerà invece a
durata e ’affidabi ità, e ettrica e meccanica,
de ’apparecchio.
Conservare sempre questo ibretto istruzioni.
Indice IT
Sicurezza . . . . . . . . . . . . . . . . . . . . . . . . . . . . . . . . . . . 3
Utilizzo . . . . . . . . . . . . . . . . . . . . . . . . . . . . . . . . . . . . . 4
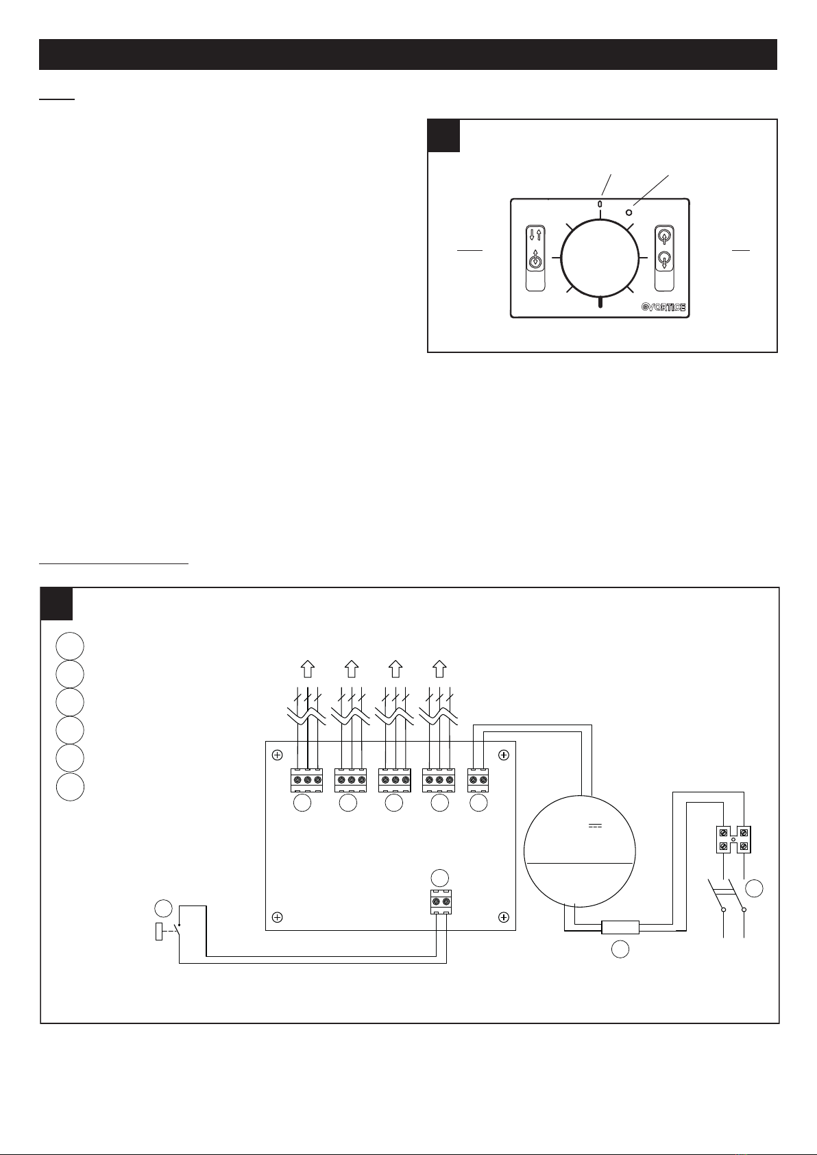
Schemi di collegamento . . . . . . . . . . . . . . . . . . . . . . . 4
Informazione importante per lo
smaltimento ambientalmente compatibile. . . . . . . . . . 5
Read the instructions contained in this book et
carefu y before using the app iance.
Vortice cannot assume any responsibi ity for damage to
property or persona injury resu ting from fai ure to abide
by the instructions given in this book et.
Fo owing these instructions wi ensure a ong service ife
and overa e ectrica and mechanica re iabi ity.
Keep this instruction book et in a safe p ace.
Index EN
Safety. . . . . . . . . . . . . . . . . . . . . . . . . . . . . . . . . . . . . . 6
Use. . . . . . . . . . . . . . . . . . . . . . . . . . . . . . . . . . . . . . . . 7
Wiring diagrams. . . . . . . . . . . . . . . . . . . . . . . . . . . . . . 7
Important information regarding
eco-compatible disposal . . . . . . . . . . . . . . . . . . . . . . . 8
Avant d'uti iser e produit, ire attentivement es
instructions contenues dans cette notice.
La société Vortice ne pourra être tenue pour
responsab e des dommages éventue s causés aux
personnes ou aux choses par suite du non-respect
desinstructions ci-dessous.
Le respect de toutes es indications reportées dans ce
ivret garantira une ongue durée de vie ainsi que a
fiabi ité é ectrique et mécanique de 'apparei .
Conserver toujours ce ivret d'instructions.
Index FR
Sécurité . . . . . . . . . . . . . . . . . . . . . . . . . . . . . . . . . . . . 9
Mode d’emploi. . . . . . . . . . . . . . . . . . . . . . . . . . . . . . 10
Schemas des branchements . . . . . . . . . . . . . . . . . . . 10
Information importante pour éliminer
l’appareil en respectant l’environnement. . . . . . . . . . 11
Vor Insta ation und Ansch uss dieses Produkts
müssen die vor iegenden An eitungen
aufmerksam durchge esen werden.
Vortice kann nicht für Personen- oder Sachschäden zur
Verantwortung gezogen werden, die auf eine
Nichtbeachtung der Hinweise in dieser Betriebsan eitung
zurückzuführen sind. Befo gen Sie a e Anweisungen, um
eine ange Lebensdauer sowie die e ektrische und
mechanische Zuver ässigkeit des Geräts zu
gewähr eisten.
Diese Betriebsan eitung ist gut aufzubewahren.
Betriebsanleitung DE
Sicherheit. . . . . . . . . . . . . . . . . . . . . . . . . . . . . . . . . . 12
Gebrauch . . . . . . . . . . . . . . . . . . . . . . . . . . . . . . . . . . 13
Anschlusspläne . . . . . . . . . . . . . . . . . . . . . . . . . . . . . 13
Wichtige Information für eine
umweltgerechte Entsorgung . . . . . . . . . . . . . . . . . . . 14
目录 ZH
安全 . . . . . . . . . . . . . . . . . . . . . . . . . . . . . . . . . . . . . . 18
使用方法. . . . . . . . . . . . . . . . . . . . . . . . . . . . . . . . . . . 19
接线图 . . . . . . . . . . . . . . . . . . . . . . . . . . . . . . . . . . . . 19
使用产品前,请先仔细阅读这些说明。
Vortice对于不遵守本手册中的注意事项和警告
而造成的人员伤害或物质损失概不负责。
请遵守手册中的所有指示执行,以保证
设备电器及机械部件的寿命和可靠性。
请妥善保存本说明手册
。
Antes de usar e producto, eer atentamente
as instrucciones de este manua .
Vortice no es responsab e de os eventua es daños
ocasionados a personas o cosas
como resu tado de incump imiento de as indica-
ciones de este manua , as cua es garantizan
a durabi idad y fiabi idad e éctrica y mecánica
de aparato.
Guardar siempre este manua de instrucciones
Índice ES
Seguridad . . . . . . . . . . . . . . . . . . . . . . . . . . . . . . . . . 15
Uso. . . . . . . . . . . . . . . . . . . . . . . . . . . . . . . . . . . . . . . 16
Esquemas de conexión . . . . . . . . . . . . . . . . . . . . . . . 16
Información importante sobre
eliminación compatible con el medio ambiente . . . . 17
A termék haszná ata e
ő
tt gondosan o vassa e a
kézikönyvben tarta mazott utasításokat. A Vortice
nem vonható fe e
ő
sségre o yan eset eges szemé yi
sérü ésekért vagy anyagi károkért, ame yeket az
a ábbiakban fe soro t utasítások be nem tartása
okozott. Betartása viszont garantá ja a berendezés
é ettartamát va amint az e ektromos és mechanikus
megbízhatóságát.
Ő
rizze meg a haszná ati utasítást.
Tartalomjegyzék HU
Biztonság . . . . . . . . . . . . . . . . . . . . . . . . . . . . . . . . . . 21
Használat . . . . . . . . . . . . . . . . . . . . . . . . . . . . . . . . . . 22
apcsolási rajzok. . . . . . . . . . . . . . . . . . . . . . . . . . . . 22
Fontos információ a kompatibilis környezetvédelmi
ártalmatlanításhoz.. . . . . . . . . . . . . . . . . . . . . . . . . . . 23