
4Installation Instructions for Control Center VR 65
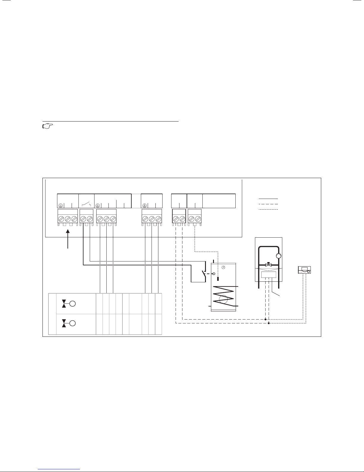
The following components can be connected
- 230 V 3-port mid-position valve
- 230 V cylinder thermostat
or alternatively
- 2 x 230 V 2-port zone valves
- 230 V cylinder thermostat
When Vaillant uniSTOR cylinder is installed, the NTC sen-
sor VR 10 supplied with the VR 65 can be used instead
of the 230 V cylinder thermostat.
This will then allow the cylinder temperature to be set at
the Vaillant ecoTEC boiler or at the Vaillant VRT 360 or
VRC 400 control.
The cylinder temperature can also be set remotely via
vrnetDIALOG.
2.1 Data badge
The data badge is on the inside of the VR 65 Control
Centre housing cover.
2.2 CE label/conformity
The CE label documents that the Control Center VR 65,
in connection with Vaillant condensation boilers, fulfils
the basic requirements of the following guidelines:
- Electromagnetic compatibility directive (Guideline 89/
336/EEC of the council)
- Low voltage directive (73/23/EEC)
2.3 Intended use
The Control Center VR 65 is a state-of-the-art appliance
which has been designed in accordance with recognised
safety regulations. Nevertheless, dangers to the life and
limb of the user or third parties can still occur or the
appliance or other material assets may be impaired in
the event of improper use or use for which the applianc-
es are not intended.
The Control Center VR 65 is an eBUS system compo-
nent.
It is responsible for the communication between the
DHW cylinder, the boiler and external 230 V 2- or 3-port
valves.
Any other use or extended use is considered to be
improper use. The manufacturer/supplier is not liable for
any resulting damage. The user alone bears any risk.
Intended use includes the observance of the installation
manual.
Note!
The VR 65 is designed to control one 3-port
valve or two 2-port valves. Systems requiring
more zone valves or a combination of 3-port
and 2-port valves are not possible.
Note!
The VR 65 requires a 230 V supply. The
ecoTEC boiler also requires a 230 V supply. The
eBUS wiring between the two will not provide
230 V from one device to the other!
3 Safety instructions and regulations
The Control Center must be installed by a suitably quali-
fied heating engineer, who is responsible for observing
all relevant standards and regulations.
We accept no liability for damage caused by non-obser-
vation of these instructions.
3.1 Safety instructions
Danger!
Risk of death from electric shock through con-
tact with live connections!
Isolate the mains power supply before working
on the unit, and ensure that the power cannot
be accidentally restarted.
Using the mains switch on the VR 65 or on the
heating appliance is not sufficient to isolate all
terminals of the system.
3.2 Regulations
All wiring must be in accordance with Building
Regulations Part P, current IEE regulations, and must be
carried out by a competent person.
Standard wires must be used for wiring.
Minimum cross-section of wires:
- Power supply 230 V (connection cable
to pumps or Control Center) 1.5 mm2
- Extra-low voltage supply
(sensor or bus wires) 0.75 mm2
Do not exceed following maximum wire lengths:
- Sensor connection 50 m
- Bus wire 300 m
Where sensor and ‘eBUS’ cables run in parallel with
230 V cables over a length of 10 m, they must be sepa-
rated by at least 25 mm.
230 V connection leads must be 1.5 mm2and secured
using the cable clamps supplied.
Do not use free terminals on the devices as support ter-
minals for other wiring.
The unit must be installed in a dry room.
2 Description of the appliance
3 Safety instructions and regulations