
OPERATING INSTRUCTIONS
MODEL PRS-09i FLG
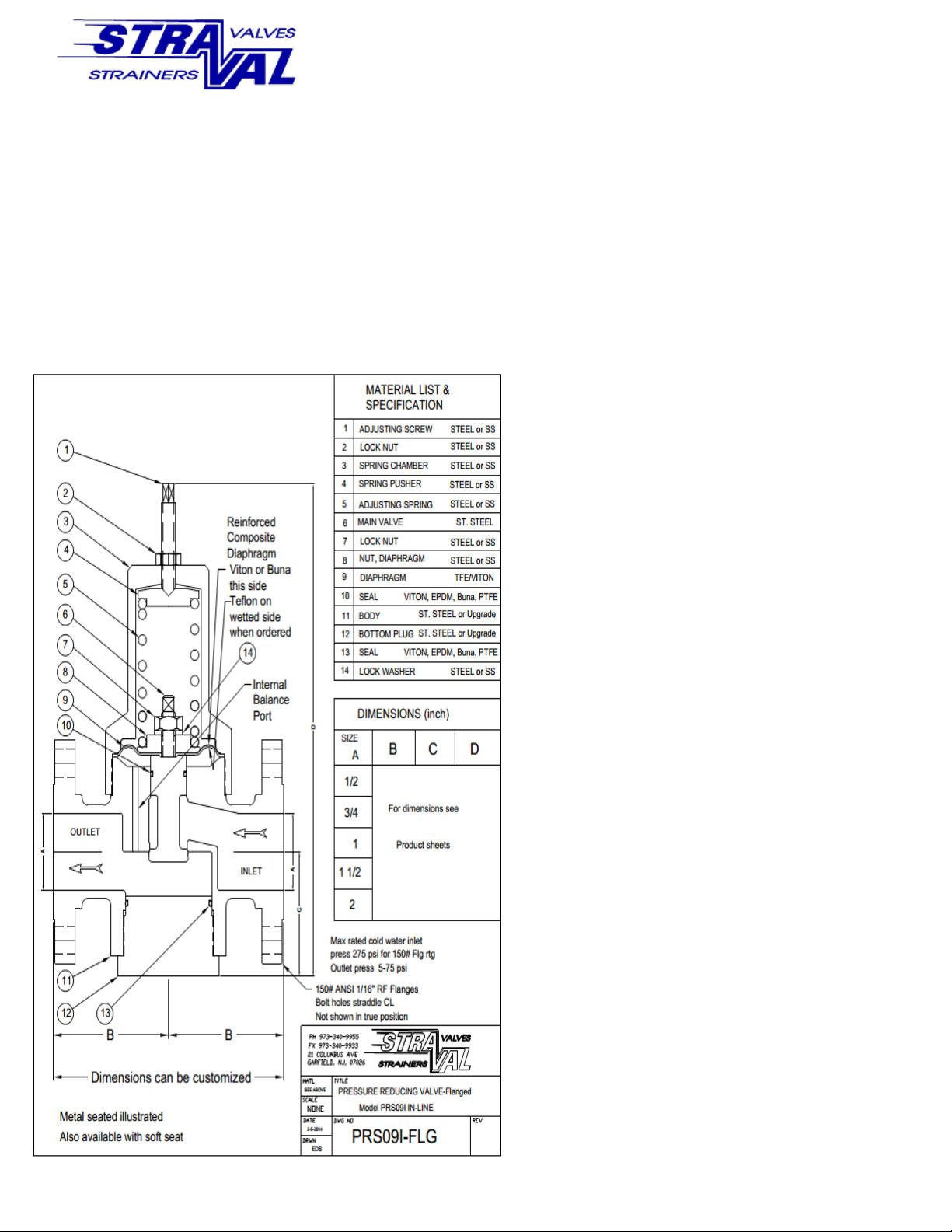
PRESSURE REDUCING VALVE
DISASSEMBLY/ASSEMBLY INSTRUCTIONS:
this condion appears frequently a strainer installed at the inlet
side of the valve is recommended. If disassembly is required,
make sure the valve piping is not under pressure and suciently
cooled o for operang personnel to handle. To disassemble
the valve, it is not necessary to remove the valve from the pip-
ing, although it may be more convenient to work on the valve at
a bench with a vise. Unscrew the spring chamber (3) with a
wrench.
If uid is leaking from the adjusng screw, the diaphragm is sus-
pect. Inspect the diaphragm (9), replace if torn, abraded, or de-
laminated or otherwise damaged or cut. Sealing area of the
diaphragm should be free from tears or cuts, otherwise external
leakage will occur. Examine to see if there are signs the dia-
phragm pulled away from the outer clamped seang area. If so,
realign diaphragm and make sure the spring chamber is ght-
ened properly, and checked again for ghtening aer full tem-
perature is reached aer installaon. Also, check to make sure
the locknut (6) is ght which holds the diaphragm metal plates
together (8) & (10). A spare diaphragm should always be kept
on hand to keep down me to a minimum.
Examine the main valve (12) and seat area for excessive wear
parcularly in the valve seat area. If excessive, replace with
new parts. Otherwise, parts may be restored by remachining
and re-lapping with a ne lapping compound, such as 600 or
800 grit. Replace external valve spring (5) if corroded or dam-
aged.
Reassemble valve in the same sequence as disassembled mak-
ing sure the diaphragm lock nut (6) and spring chamber (3) are
ght so that no leakage can take place in these areas. Apply
approximately 45 -lbs of torque to ghten the diaphragm lock
nut (6) and approximately 500 -lbs to the spring chamber (3).
Also examine the O-ring seal for the boom plug to make sure it
is not damaged or shows signs of deterioraon. Replace if nec-
essary. It is oen easier to assemble the spring chamber assem-
bly upside down by dropping the spring and spring hardware
into the spring chamber. Then the body (13) subassembly with
the main valve (12) and diaphragm (9) can be posioned over
the spring chamber (3) and threading the assembly together
unl hand ght. Then the nal ghtening with a wrench can be
done with the valve right side up.
PRINCIPLE OF OPERATION:
Steam or other fluid passing through the valve enters through
the inlet port, through the valve seat formed by main valve
and seat, and finally through the outlet port. Outlet pressure
is sensed by the underside of the diaphragm through a verti-
cal port, which connects with the outlet port. Pressure regu-
lation is achieved when a force balance is maintained be-
tween the pressure acting on the underside of the diaphragm
and the spring force, which is adjusted to hold a particular
outlet pressure. If the outlet pressure is below the set point
as preset by the adjusting spring, the spring force overcomes
the pressure force acting on the underside of the diaphragm.
This causes the main valve to open, thereby admitting higher
inlet pressure fluid to raise the outlet pressure until the force
balance is restored. As soon as the outlet pressure is re-
stored, the main valve begins to close and to limit the
amount of higher inlet pressure fluid passing through the
valve.
Do not apply the valve on shut-off or dead ended ser-
vice, as the valve is not designed for this purpose. Always
install a relief valve on the outlet side of the valve.
OPERATING INSTRUCTIONS
If the valve has not been ordered preset to a specic outlet pressure,
simply adjust the spring (5) compression by loosening the lock nut (2)
and turn the adjusng screw (1) clockwise to increase the spring
compression. This will increase the outlet pressure. Similarly, turning
the screw counterclockwise will reduce the spring compression and
correspondingly reduce the outlet pressure.
Phone: 973-340-9955 Fax: 973-340-9933
http://www.straval.com Email: sales@straval.com
If the regulator fails to maintain the proper outlet pressure,
there could be a number of probable causes as follows: Internal
clogging of foreign objects or material, sediment, rust, etc. in
the valve seat area, sensing port, diaphragm cavity and valve
spring cavity which houses the spring.