
Inhaltsverzeichnis
2200128 / 8006603300
2012-06-05·BA00·III·de·01
Last- und Motorschalter
8006/4
1 Inhaltsverzeichnis
1 Inhaltsverzeichnis ..................................................................................................2
2 Allgemeine Angaben .............................................................................................2
3 Sicherheitshinweise ...............................................................................................3
4 Normenkonformität ................................................................................................3
5 Funktion .................................................................................................................3
6 Technische Daten .................................................................................................4
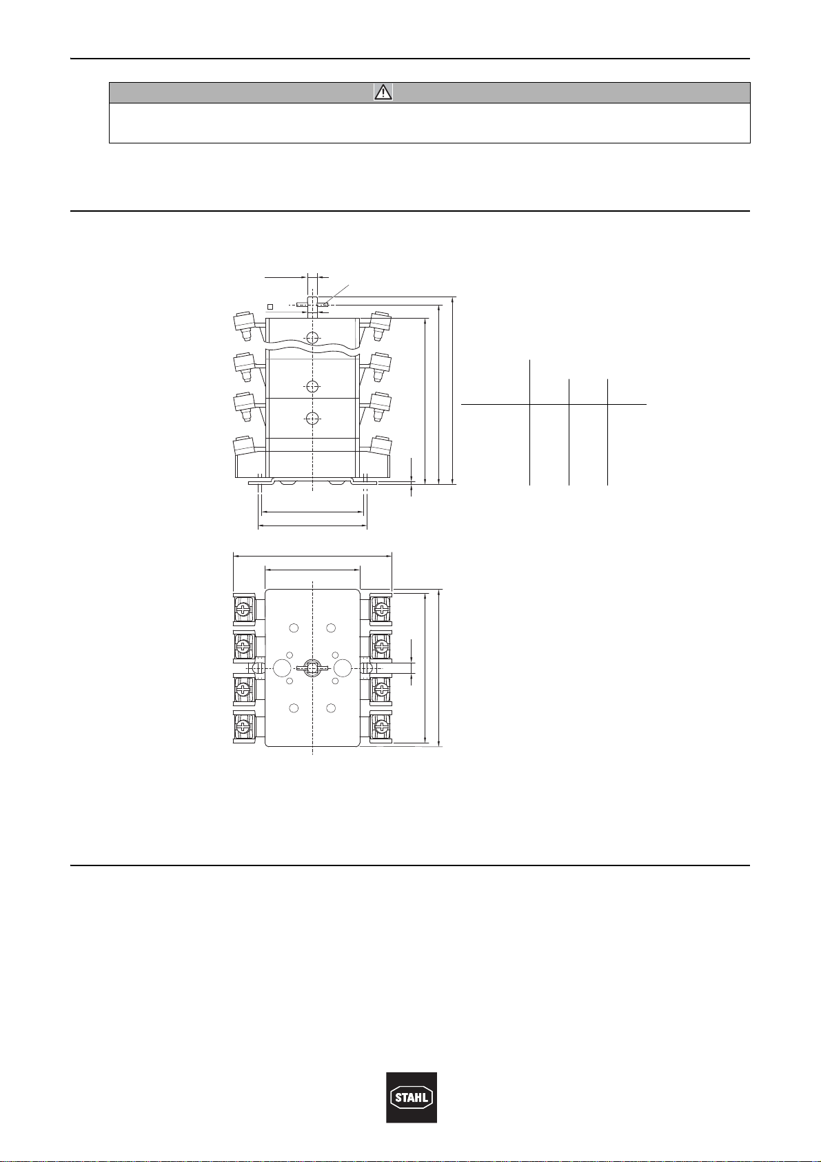
7 Maßangaben .........................................................................................................5
8 Transport und Lagerung ........................................................................................5
9 Installation .............................................................................................................6
10 Inbetriebnahme .....................................................................................................7
11 Wartung .................................................................................................................7
12 Zubehör und Ersatzteile ........................................................................................7
13 Entsorgung ............................................................................................................7
14 EG-Konformitätserklärung .....................................................................................8
2 Allgemeine Angaben
2.1 Hersteller
R. STAHL Schaltgeräte GmbH
Am Bahnhof 30
74638 Waldenburg
Germany
Telefon: +49 7942 943-0
Telefax: +49 7942 943-4333
Internet: www.stahl-ex.com
2.2 Angaben zur Betriebsanleitung
ID-NR.: 200128 / 8006603300
Publikationsnummer: 2012-06-05·BA00·III·de·01
Technische Änderungen vorbehalten.
2.3 Zweck dieser Anleitung
Bei Arbeiten in explosionsgefährdeten Bereichen hängt die Sicherheit von Personen und
Anlagen von der Einhaltung aller relevanten Sicherheitsvorschriften ab.
Das Montage- und Wartungspersonal, welches in solchen Anlagen arbeitet, trägt
deshalb eine besondere Verantwortung. Die Voraussetzung dafür ist die genaue
Kenntnis der geltenden Vorschriften und Bestimmungen.
Diese Anleitung fasst kurz die wichtigsten Sicherheitsmaßnahmen zusammen.
Sie ergänzt die entsprechenden Vorschriften, zu deren Studium das verantwortliche
Personal verpflichtet ist.