
VP10SUB NC
VP10SUB NC ENCLOSURE
VP10SUB NC AMPLIFIER
NC = New CONSTRUCTION
VP12SUB NC
VP12SUB NC ENCLOSURE
VP12SUB NC AMPLIFIER
Product Family Overview
From the company that invented the category, comes the
BEST SOUNDING, best looking and most complete range of
in-wall and in-ceiling speakers ever. Visual Performance®Series
comes in various shapes and sizes to compliment down lights and
décor and a complete range that allows you to enjoy a consistent
aesthetic for any application in any room.
Features and Benefits
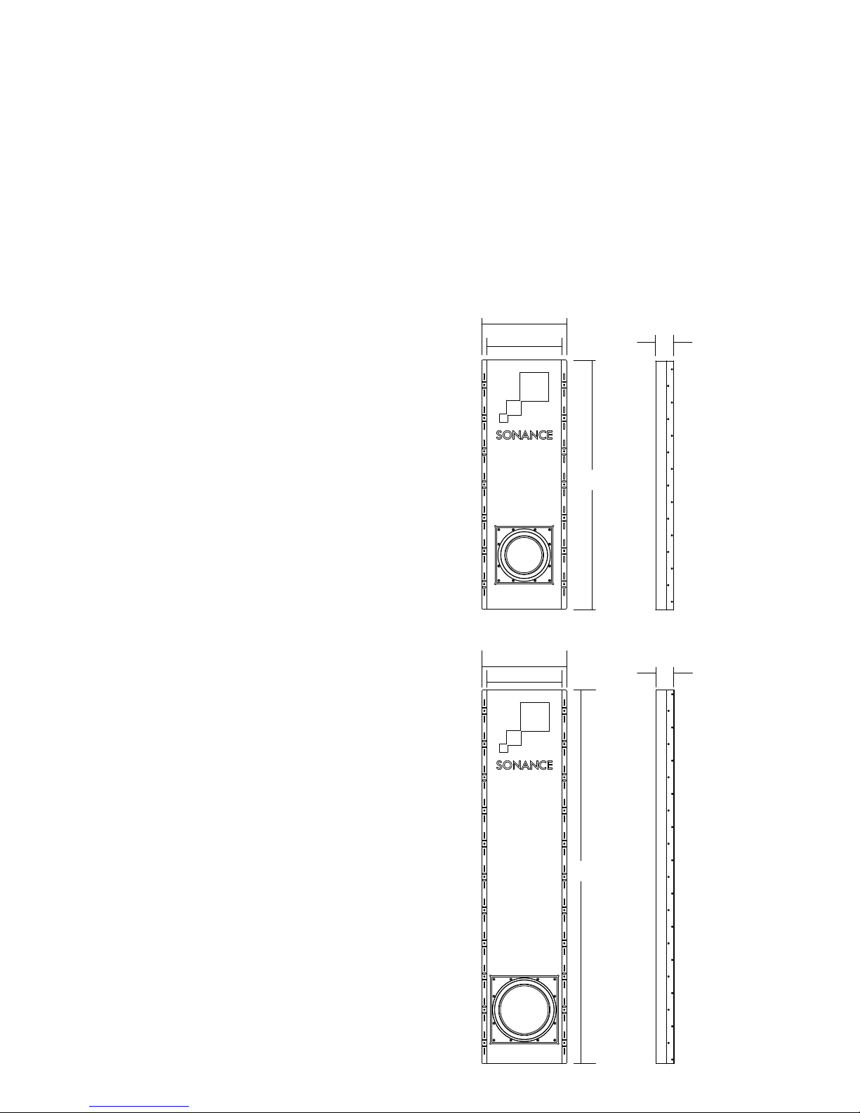
VP10SUB NC and VP12SUB NC In-Wall subwoofers combines
elegant, modern visual design with uncompromised bass
performance for home theaters and multi media solutions.
The VP Series Subwoofers feature an innovative low profile driver
with an ultra low distortion motor and 4” diameter voice coil. The
VP12SUB NC In-Wall subwoofer incorporates a 12” woofer, while
the VP10SUB NC utilizes a 10” woofer. Dual central mount spiders
are used in both models to maximize the movement of the laminated
carbon fiber honeycomb woofer cone.
VP Series Subwoofer enclosures are constructed from a combination
of 1/2” and 1” MDF for superior isolation of bass and extruded
aluminum bracing for minimal obstruction of airflow inside the
enclosure. Mass damping of front and back walls of each enclosure
and long strand fiberglass internal damping for standing wave
dissipation is also incorporated. In addition, a floating enclosure
design minimizes vibration transfer to adjoining rooms. Both
enclosures fit in a standard 2 x 4 stud bay and a blank pre-
construction plate is included for easy installation.
VP Series Subwoofer amplifiers feature Class D output stage, line,
and speaker level high pass filtering and are designed specifically
to the VP10SUB NC and VP12SUB NC drivers and enclosures. Each
amplifier is capable of driving up to two woofers. The VP10SUB
NC extends down to 30Hz and using the matching VP10SUB NC
amplifier, is capable of producing 108dB of output at 1 meter.
The VP12SUB NC extends down to 25Hz and using its matching
VP12SUB NC amplifier, will produce 114dB of output at 1 meter.
Keeping in mind the different installation stages needed by the
CEDIA professional, the Visual Performance Subwoofer systems are
sold separately in three pieces; a woofer driver with grille, an in-wall
enclosure, and the outboard amplifier or as a system that includes
two woofer drivers with grilles, two enclosures, and the amplifier.
VP10SUB NC VP10SUB NC ENCloSUrE VP10SUB NC AMPlIFIEr
VP12SUB NC VP12SUB NC ENCloSUrE VP12SUB NC AMPlIFIEr
VISUAL PERFORMANCE®SERIES