
Page4 of 22 Date: 12.08.2020
SKIPPER SB (Single Bottom) Sea Valve 100 mm
The SKIPPER SB Sea Valve 100 mm is used for installation of: SKIPPER speed log sensors and echo
sounder transducers tted with adaptors for XB-100-XX
1. Echo Sounder transducer type (50, 200 and 50/200 kHz).
2. Speed log sensors: DL2, DL21, DL1, DL850(270kHz), EML224.
Caution!
Be aware that the Sea Valve contains high precision parts and therefore proper
handling when mounting is essential for the nal result.
When handling the Sea Valve, all lifting devices must be attached on the outside of the
valve. It is very important to not insert any chains, wire, rope or any other device into
the valve chamber. This to avoid damaging and any kind of pollution of the Sea Valve.
The SKIPPER SB Sea Valve 100 mm is delivered partly assembled for transport. The parts necessary for
nal assembly will be found packed in a box delivered with the Sea Valve. First of all, it must be decided
where the Sea Valve should be installed. Normally, this will be in the fore part of the ship, in the centerline,
or as close to the centerline as possible. Optimal system operation is achieved by tting the transducer/
sensor as deep as possible on the hull.
• The active surface of the sensor must be installed with front face a maximum of +/-1 degree to the ships
horizontal plane. (2 axis Speed Logs).
• The active surface of the transducer must be installed with front face a maximum of +/-7 degree to the
ships horizontal plane. (Echo Sounder).
Do not mount transducers close to the bow thruster propeller outlets, or aft of other hull installations (outlets,
vents or other protruding details) who may create aeration or turbulence.
It is necessary to select a part of the hull that is submerged and free from turbulence and aeration under all
load and speed conditions, and to avoid positions where air is trapped in heavy weather.
If a at, horizontal section is not available for transducer tting, the shipyard must construct a suitable bed.
Welding seams in this area should be smoothed and rounded o, in order not to create turbulence or aeration
at speed.
Protect the active element of the transducer/sensors during transport and installation, and
do not paint the surface.
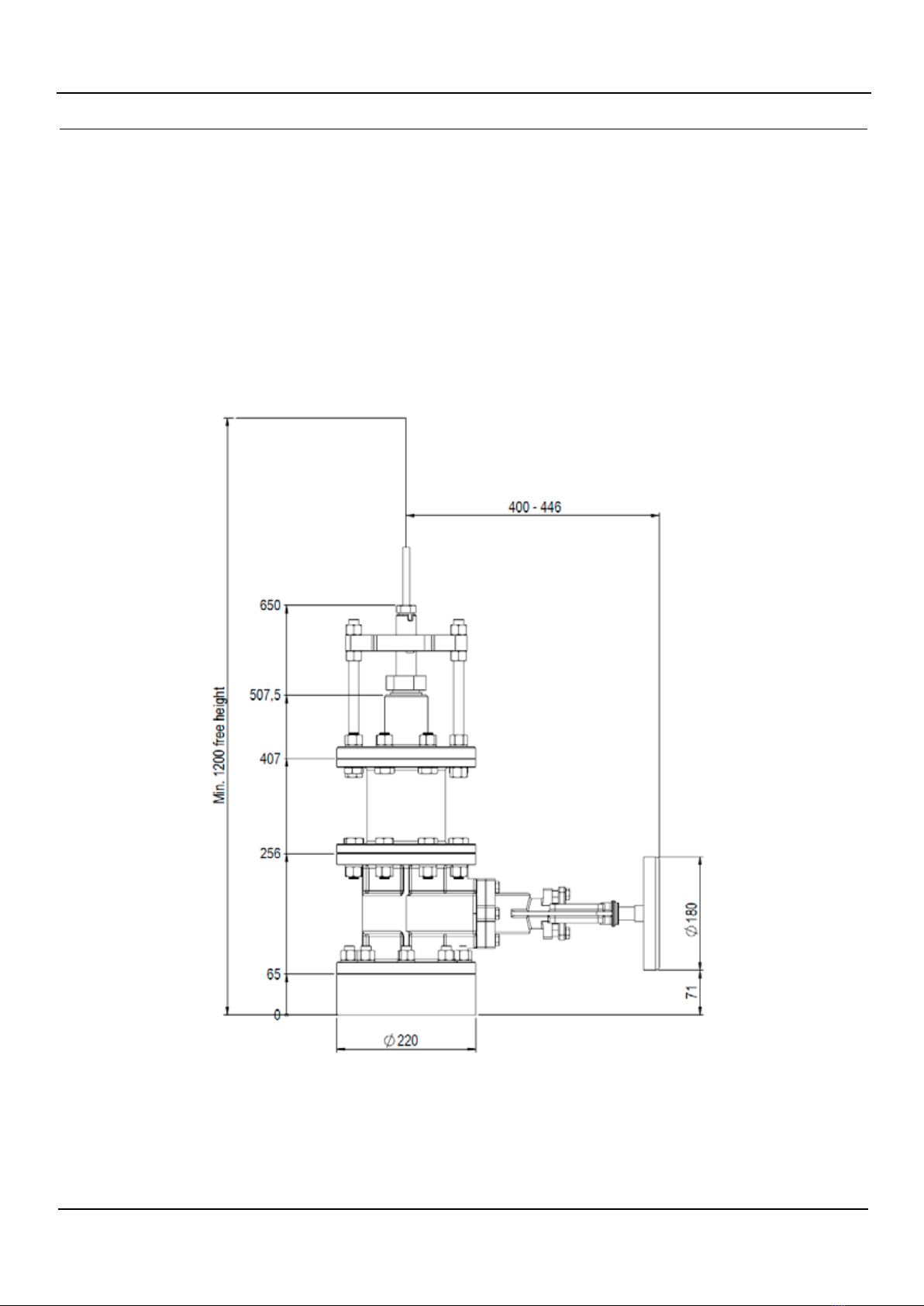
The Sea Valve should be placed in a service accessible place, large enough for installation and disassembly
of the sensor unit. See drawing: “Space considerations”.
1. INTRODUCTION
SKIPPER Electronics AS SB-100-XX Operation and Installation Manual