salmson SC-L Comment utiliser

Smart Control SC-L
N.M.S.
STOCK № 4171175/Ed.01-11/2013 WHof
INSTALLATION ET MISE EN SERVICE FRANÇAIS
ENGLISH
ESPAÑOL
INSTALACION Y PUESTA EN SERVICIO
INSTALLATION AND STARTING INSTRUCTIONS

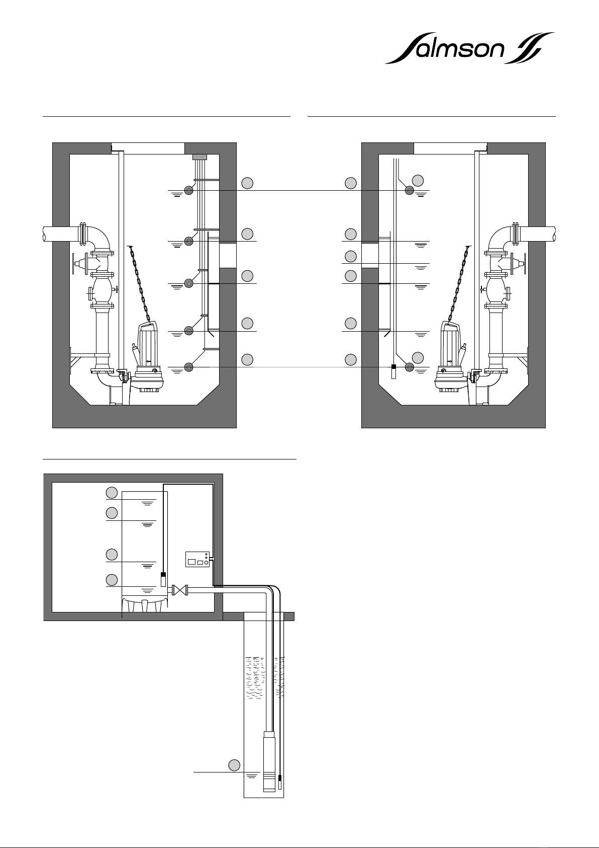
Fig. 2b
Fig. 2aFig. 1
1
2
3
4
1
2
33
4
6
5
7
1
2
33
4
5
6
6
7

Fig. 5
Fig. 4Fig. 3
dry run
4
all OFF
3
P1 ON
1
P2 ON
2
high water
5
5
P1 OFF 2
P1 ON 1
P2 ON 3
P2 OFF 4
67*
8*
low water 4
dry run
(Ext.OFF)
5
OFF
3
ON 1
2
high water




fr Notice de montage et de mise en service 9
en Installation and operating instructions 33
es Instrucciones de instalación y funcionamiento 55
de Einbau- und Betriebsanleitung 79


9
Français
1. Introduction 10
1.1. A propos de ce document 10
1.2. Qualication du personnel 10
1.3. Droits d’auteur 10
1.4. Réserve de modications 10
1.5. Garantie 10
2. Sécurité 11
2.1. Instructions et consignes de sécurité 11
2.2. Consignes générales de sécurité 11
2.3. Travaux électriques 11
2.4. Procédure d’exploitation 12
2.5. Conformité aux directives 12
2.6. Marquage CE 12
3. Description du produit 12
3.1. Usage conforme et domaines d’application 12
3.2. Structure 12
3.3. Description du fonctionnement 12
3.4. Modes de fonctionnement 13
3.5. Caractéristiques techniques 13
3.6. Code 13
3.7. Options 13
3.8. Etendue de la fourniture 13
3.9. Accessoires 14
4. Transport et stockage 14
4.1. Livraison 14
4.2. Transport 14
4.3. Stockage 14
4.4. Renvoi 14
5. Installation 14
5.1. Généralités 14
5.2. Modes d’installation 14
5.3. Montage 14
5.4. Raccordement électrique 16
6. Commande et fonctions 18
6.1. Modes et principes de fonctionnement 18
6.2. Commande par menus et structure des menus 19
6.3. Première mise en service 20
6.4. Réglage des paramètres de fonctionnement 20
6.5. Commutation forcée des pompes en cas de
marche à sec ou de submersion 24
6.6. Pompe de réserve 24
6.7. Fonctionnement en cas de capteur de niveau
défectueux 24
6.8. Réglages d’usine 24
7. Mise en service 24
7.1. Pilotage du niveau 25
7.2. Exploitation dans des zones à risque d’explosion 25
7.3. Mettre le coffret de commande sous tension 25
7.4. Contrôle du sens de rotation des moteurs triphasés
raccordés 25
7.5. Mode automatique de l’installation 26
7.6. Régime de secours 26
8. Mise hors service/Élimination 26
8.1. Désactiver le mode automatique de l’installation 26
8.2. Mise hors service temporaire 26
8.3. Mise hors service dénitive 27
8.4. Elimination 27
9. Entretien 27
9.1. Intervalles de maintenance 27
9.2. Travaux de maintenance 27
9.3. Réparations 27
10. Recherche et élimination des pannes 27
10.1. Indication de défauts 28
10.2. Acquittement des défauts 28
10.3. Système de sauvegarde des défauts 28
10.4. Codes de défaut 28
10.5. Mesures supplémentaires permettant l’élimination
des pannes 29
11. Annexe 29
11.1. Aperçu des symboles individuels 29
11.2. Tableaux récapitulatifs Impédances du système 31
11.3. Pièces de rechange 31

10
Français
1. Introduction
1.1. A propos de ce document
La langue de la notice de montage et de mise en service d’origine
est l’allemand. Toutes les autres langues de la présente notice
sont une traduction de la notice de montage et de mise en service
d’origine.
La notice est divisée en différents chapitres (voir table des
matières). Le titre de chaque chapitre décrit clairement le thème
traité dans le chapitre en question.
Cette notice comprend une copie de la déclaration de conformité
CE.
Cette déclaration perdra toute validité en cas de modication
technique des modèles mentionnés exécutée sans notre aval.
1.2. Qualication du personnel
Le personnel travaillant sur ou avec le coffret de commande doit
être qualié pour cela; exemple: toute opération exécutée sur
les installations électriques est du ressort exclusif d’un électricien
professionnel. Toutes les personnes intervenant sur le produit
doivent être majeures.
En outre, les dispositions nationales en matière de prévention des
accidents doivent être observées par le personnel opérateur et de
maintenance.
Par ailleurs, il est nécessaire de s’assurer que le personnel abien lu
et compris les instructions contenues dans la présente notice de
service et de maintenance. Le fabricant est tenu de commander
une version de cette notice dans la langue correspondante le cas
échéant.
Les personnes (enfants compris) présentant des capacités phy-
siques, sensorielles ou mentales réduites ou bien manquant d’ex-
périence et/ou de connaissances ne sont pas autorisées à exploiter
le coffret de commande, à moins que des personnes qualiées ne
les instruisent en se portant garantes de leur sécurité.
Veillez à ce que les enfants ne jouent pas avec le coffret de com-
mande.
1.3. Droits d’auteur
Le fabricant jouit des droits de propriété intellectuelle sur cette
notice de service et de maintenance. Cette notice est rédigée à
l’attention du personnel de montage, service et maintenance.
Elle contient des consignes et des dessins techniques dont toute
reproduction complète ou partielle est interdite. Elle ne doit être
ni diffusée ni utilisée à des ns destinées à la concurrence, ni être
transmise à un tiers. Les gures utilisées peuvent différer du pro-
duit original et sont uniquement destinées à fournir un exemple de
représentation des coffrets de commande.
1.4. Réserve de modications
Le constructeur est le seul habilité à procéder à des modications
techniques au niveau des installations et/ou des pièces de mon-
tage. Cette notice de service et de maintenance se rapporte au
coffret de commande spécié sur la page de titre.
1.5. Garantie
Ce chapitre contient les instructions générales concernant la
garantie. Toute clause contractuelle atoujours priorité et n’est pas
rendue caduque par ce chapitre!
Le fabricant s’engage à éliminer toute défaillance existante sur
les coffrets de commande vendus si les conditions suivantes sont
respectées:
1.5.1. Généralités
• Il s’agit de défauts relatifs à la qualité du matériau, la fabri-
cation et/ou la construction.
• Les défaillances ont été rapportées par écrit au fabricant
pendant la durée de garantie contractuelle.
• Le coffret de commande n’a été exploité qu’en conformité
avec les conditions d’exploitation.
1.5.2. Durée de la garantie
Sauf indication contractuelle contraire, la durée de garantie est
de 24 mois après la mise en service ou de 30 mois au plus à partir
de la date de livraison. Toutes les autres clauses contractuelles
doivent être mentionnées par écrit dans la conrmation de com-
mande. Elles sont au moins valables jusqu’à la n de la durée de
garantie négociée pour le coffret de commande.
1.5.3. Pièces de rechange, ajouts et transformations
Utiliser uniquement les pièces de rechange originales du fabri-
cant pour les réparations, le remplacement de pièces ainsi que les
ajouts à la construction et les transformations. Toute utilisation
de pièces d’autre fabrication et tout ajout ou transformation non
agréés par le constructeur peuvent gravement endommager le
coffret de commande et/ou nuire aux personnes.
1.5.4. Maintenance
Les travaux de maintenance et d’inspection stipulés doivent être
exécutés à intervalles réguliers. Ces travaux ne doivent être effec-
tués que par un personnel autorisé, qualié et formé à cet effet.
1.5.5. Dommages au niveau du produit
Les dommages ainsi que les pannes pouvant entraver la sécurité
doivent immédiatement être éliminés conformément aux pres-
criptions par du personnel spécialement formé à cet effet. Le cof-
fret de commande ne doit être utilisé que s’il ne présente aucune
anomalie technique. Pendant la durée de garantie contractuelle, la
réparation du coffret de commande ne doit être réalisée que par
le fabricant et/ou un atelier de réparation agréé! Le fabricant se
garde le droit de faire envoyer par l’exploitant le coffret de com-
mande endommagé à l’atelier pour l’examiner.
1.5.6. Exclusion de garantie
Nous déclinons toute responsabilité ou droit à la garantie dans le
cas de dommages survenant sur le coffret de commande dans une
ou plusieurs des conditions suivantes:
• mauvais dimensionnement effectué par le fabricant dû
à des données insufsantes ou erronées provenant de
l’exploitant ou du client;
• non-observation des consignes de sécurité, réglementa-
tions et exigences en vigueur selon la législation alle-
mande et/ou locale et selon cette notice de service et de
maintenance;
• utilisation non conforme;
• entreposage et transport non conformes;
• montage/démontage non réglementaire;
• maintenance insufsante;
• réparation non conforme;
Table des matières
Langues :
Autres manuels salmson Unité de contrôle
Manuels Unité de contrôle populaires d'autres marques

Festo
Festo Compact Performance CP-FB6-E Manuel de la liste des pièces

Elo TouchSystems
Elo TouchSystems DMS-SA19P-EXTME Manuel utilisateur

JS Automation
JS Automation MPC3034A Manuel utilisateur

JAUDT
JAUDT SW GII 6406 Series Guide rapide

Spektrum
Spektrum Air Module System Manuel utilisateur

BOC Edwards
BOC Edwards Q Series Manuel utilisateur

















