5
INSTALLAZIONE
PIASTRA CALDAIA (A)
Forare la piastra di chiusura della camera di
combustione come in (A). La posizione dei fori
filettati può essere tracciata utilizzando lo
schermo termico a corredo del bruciatore.
LUNGHEZZA BOCCAGLIO (B)
La lunghezza del boccaglio va scelta secondo le
indicazioni del costruttore della caldaia e, in ogni
caso, deve essere maggiore dello spessore
della porta della caldaia, completa di refrattario.
Le lunghezze, L (mm), disponibili sono:
Boccaglio 9): RL 70 RL 100 RL 130
• corto 250 250 250
• lungo 385 385 385
Per le caldaie con giro dei fumi anteriore 12), o
con camera ad inversione di fiamma, eseguire
una protezione in materiale refrattario 10), tra
refrattario caldaia 11) e boccaglio 9).
La protezione deve consentire al boccaglio di
essere estratto.
Per le caldaie con il frontale raffreddato ad
acqua non è necessario il rivestimento refratta-
rio 10)-11)(B), se non vi è espressa richiesta del
costruttore della caldaia.
FISSAGGIO DEL BRUCIATORE ALLA CAL-
DAIA (B)
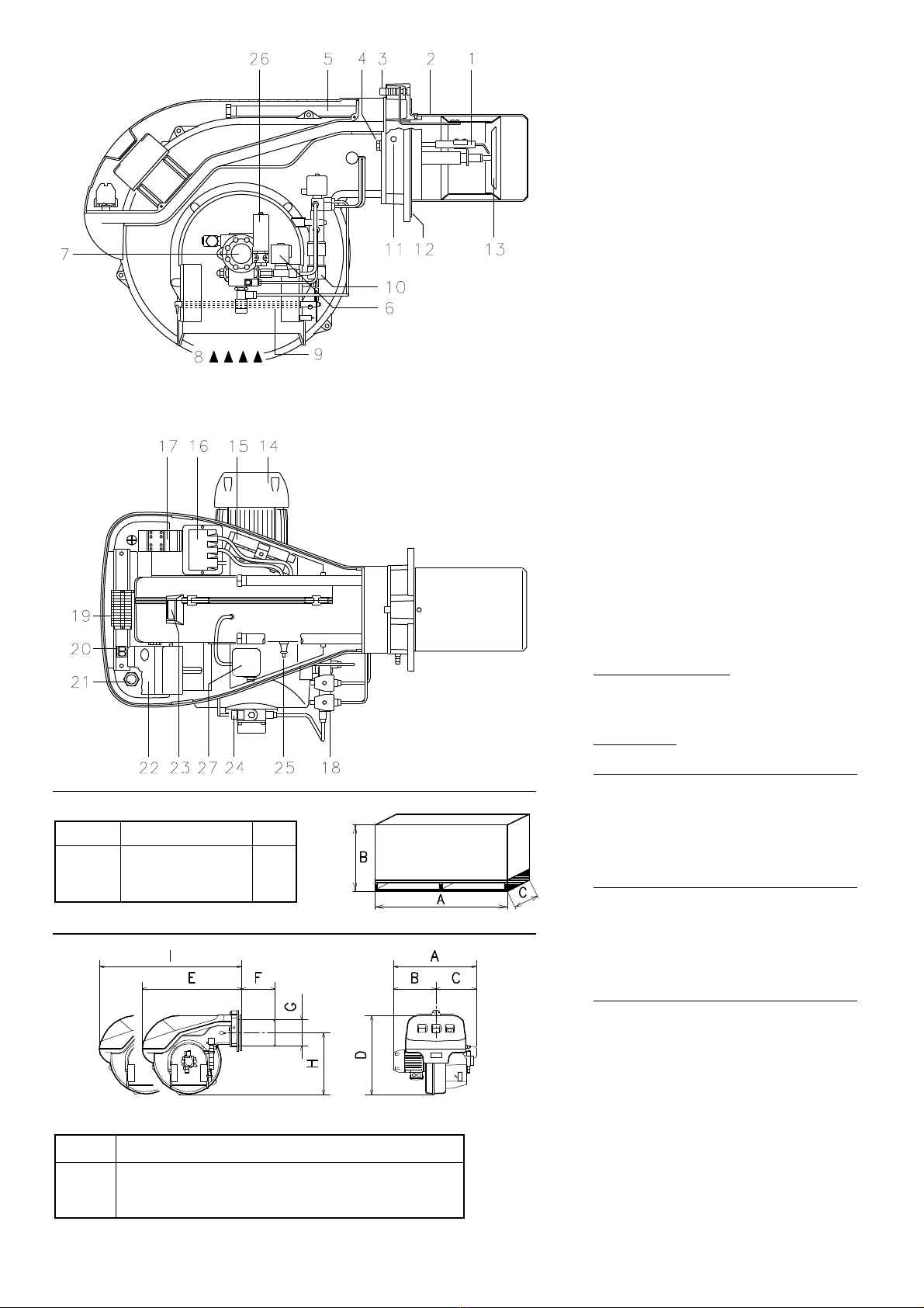
Smontare il boccaglio 9) dal bruciatore 6):
-Allentarele4viti3)etogliereilcofano1).
-Togliereleviti2)dalledueguide5).
-Toglierele2viti4)che fissano il bruciatore 6)
alla flangia 7).
- Sfilare il boccaglio 9) completo di flangia 7) e
guide 5).
PRETARATURA TESTA DI COMBUSTIONE
Per il modello RL 130 verificare, a questo punto,
se la portata massima del bruciatore in 2° stadio
è compresa nell’area B oppure in quella C del
campo di lavoro. Vedi pag. 4.
Se è nell’area B non occorre alcun intervento.
Se invece è nell’area C:
- Svitare le viti 1)(C) e smontare il boccaglio 5)
- Svitare le viti 3) e togliere l’otturatore 4)
- Avvitare le viti 3) sull’asta 2)
- Rimontare il boccaglio 5) e le viti 1)
Effettuata questa eventuale operazione, fissare
la flangia 7)(B) alla piastra della caldaia interpo-
nendo la guarnizione 8) data a corredo. Utiliz-
zare le 4 viti pure date a corredo dopo averne
protetto la filettatura con prodotti antigrippanti
(grasso per alte temperature, compounds, gra-
fite).
La tenuta bruciatore-caldaia deve essere erme-
tica.
SCELTA DEGLI UGELLI PER IL 1° E 2° STADIO
Entrambi gli ugelli vanno scelti tra quelli indicati
nella tabella (D).
Il primo ugello determina la portata del brucia-
tore in 1° stadio.
Il secondo ugello funziona assieme al primo ed
entrambi determinano la portata del bruciatore
in 2° stadio.
Le portate del 1° e del 2° stadio devono essere
comprese tra i valori indicati a pag. 2.
Utilizzare ugelli con angolo di polverizzazione
60° alla pressione consigliata di 12 bar.
Generalmente i due ugelli sono di eguale por-
tata ma, in caso di necessità, l'ugello del 1° sta-
dio può avere:
• una portata inferiore al 50 % della portata
totale, quando si desidera ridurre il picco di
contropressione al momento dell'accensione
(il bruciatore consente buoni valori di combu-
stione anche con rapporti 40 - 100% tra 1° e
2° stadio);
• una portata superiore al 50% della portata
totale, quando si desidera migliorare la com-
bustione in 1° stadio.