
Manual-9
LEVEL control. Note the following:
• Zone Level, EQ and Limiter circuits do not affect Page
signals summed Post-VCA.
• Zone Level, EQ and Limiter circuits do affect Page signals
summed Pre-VCA.
• Page signals are not available on the Expand Zone output
when summed Post-VCA.
• Page signals are always available for the Expand Page
output.
There are two internal controls related to the Program
Priority detector:
• Priority Release Time 2 sec to 20 sec (trim pot)
Default: 12 seconds
• Priority Threshold -∞to -35 dBu (trim pot)
Default: -50 dBu
The default settings for the Program Priority detector are
chosen for most applications. Detector Threshold settings
lower than the default setting of -50 dBu are prone to false
triggering unless the source is very quiet. If a source is noisy,
you may wish to set the threshold higher to prevent false
triggering. The default Release Time is 12 seconds. You may
wish to decrease the Release Time if the source is a TV, radio,
tape machine or any other relatively constant signal source. If
you have a source like a jukebox, with relatively long search
times, you may wish to extend the Release Time.
There is one internal control related to Zone 1:
• Zone 1 Mode Mono/Stereo Default: Stereo
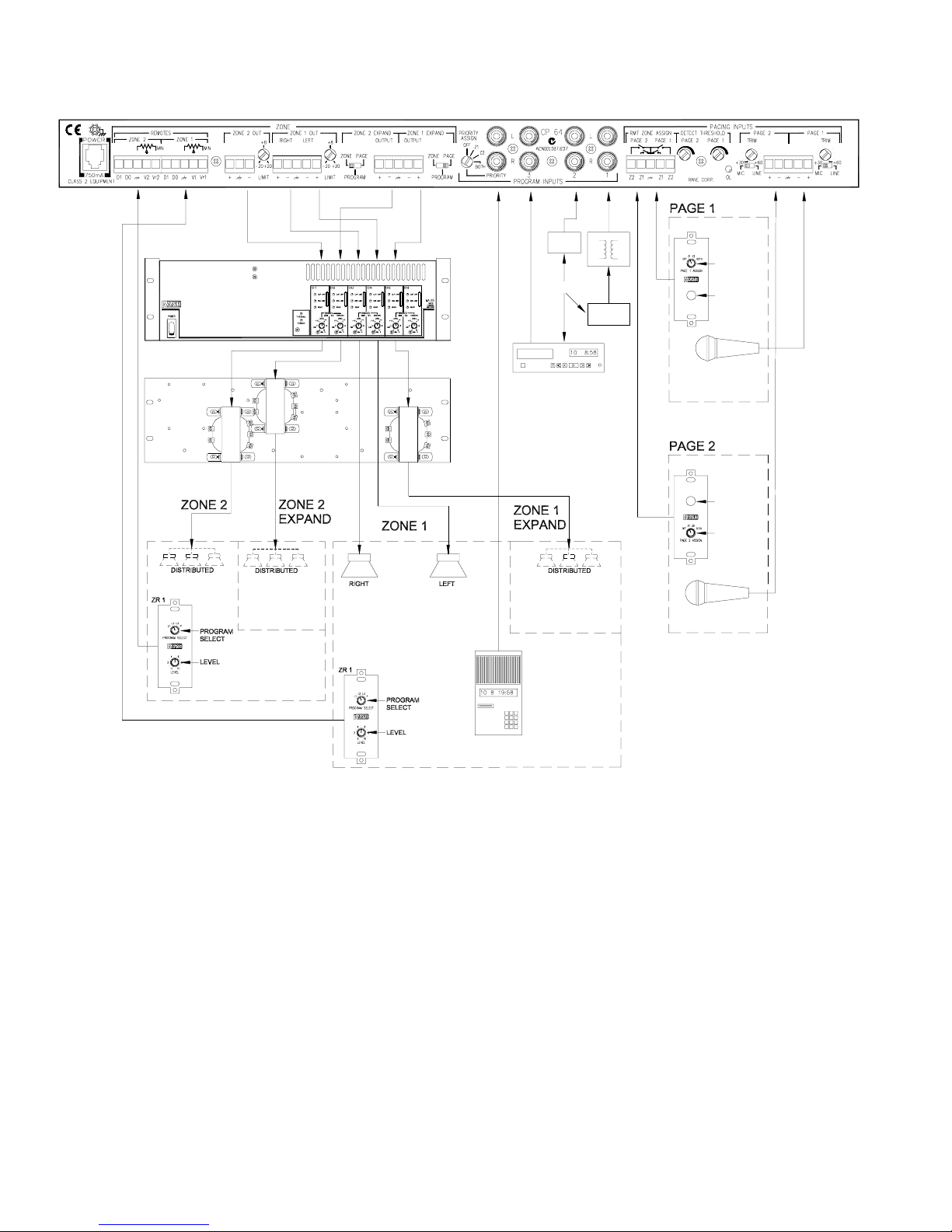
CP 64 CONNECTIONS
Power to the CP 64 should be OFF until all connections
are made.
EUROBLOCK CONNECTIONS
All Input and Output connections are made with Euro-
block connectors except for the RCA PROGRAM INPUTS.
When wiring to Euroblocks, a minimum wire gauge of 22 is
preferred for reliability. If the ground or shield wire is left
shorter, it acts as a strain relief for the other wires. Cable with
a flexible jacket is easier to use and less likely to damage the
connections. Avoid stripping excess insulation. Inspect wires
for nicks that may lead to wire breakage. Fully insert each
wire in the appropriate socket and tighten the screw.
Page Input circuits are true instrumentation amplifier
inputs and operate balanced or unbalanced. Expand and Zone
Outputs are driven by high quality cross-coupled line drivers
and operate balanced or unbalanced. For both Inputs and
Outputs, wiring is basically the same. Balanced operation is
recommended. Balanced wiring is straight forward, (+) to (+),
(–) to (–) and shield to shield.
For unbalanced operation, we recommend using two
conductor cable with shield. The cable is wired to the CP 64
the same as for balanced operation. At the other end of the
cable, connect the (+) wire to signal “hot” and both the (–)
and shield wires to ground (important.)
If you use single conductor cable with shield, connect the
shield/gnd wire to both the (–) and shield pins at the CP 64.
At the other end of the cable connect the (+) wire to the signal
“hot” and the shield/gnd wire to ground. When unbalanced
wiring is used, it is very important for the CP 64 and any
other unit in the system to have good earth or technical
grounds. If a unit is located far from the CP 64 or is of a type
that might create grounding problems, isolation transformers
should be used.
When operating cross-coupled line drivers unbalanced
(i.e., any CP 64 Output), it is essential to ground the (–) pin.
PROGRAM INPUTS
The four stereo Program Inputs connect to RCA jacks.
These Inputs are unbalanced. The same guidelines given
above for unbalanced operation apply to these Inputs.
Refer to Rane Note 110, “Sound System Interconnection“
for additional wiring information.
REMOTE INSTALLATION
The CP 64 supports wired remotes for Page Assign, Zone
Level and Zone Source selection. Wire lengths of up to 1000
feet are possible. A brief list of suitable wire types is provided
in the WIRE TYPES section on the next page.
The PR 2 remote provides Page Zone Assign for Page 1
and Page 2 signals and is usually located at the Page source.
If your application requires one of the two PAGE ASSIGN
switches to control both Page 1 and Page 2 Assign, simply
wire all Page 1 and Page 2 control bits in parallel. You may
wish to leave the knob off the unused control and cover it
with one of the hole plugs provided in the kit. If your installa-
tion requires Page 1 and Page 2 remote control at two
different locations, only three wires are required for each PR
2 remote (Z1, Z2 & GND). As above, you may wish to leave
the knob off the unused control and cover it with a hole plug.
The ZR 1 remote provides Zone Level and Source
Selection, allowing local control from inside the Zone. Two
ZR 1 remotes may be used (only use one in each Zone). If
only one of the two controls is used, you may wish to cover
the unused control with one of the hole plugs provided in the
kit. If you require one ZR 1 remote to control both Zones,
simply wire the ports in parallel. This may be done with
Program Select only, Level only or both. If only one of the
two controls is wired in parallel, the other is still available for
a second remote.
When paralleling one remote across multiple CP 64s, all
three control pins must be wired, including the shields.
Power to the CP 64 should be off until all connections are
made. It is important to ensure that the CP 64 Remote Ports
are not subjected to sustained voltages outside the range of 0
to 5 volts DC or high levels of static. Inputs are protected,
however, caution is the better part of… you know. It is a good
idea to install the wiring, connect it to the remote assemblies
and then make the final connections at the CP 64. Do not
short Vr1 or Vr2 pins to ground. These pins are current
limited, however, excess heat is generated in the 5 volt supply
if a short occurs. Never subject the Vr1 or Vr2 pins to
voltages above 5 volts.