
INSTALLATION MANUAL: PAD100-LEDK LED WITH KEY SWITCH MODULE
Document 5406311-A 02/16
Potter Electric Signal Company, LLC • St. Louis, MO • Phone: (800) 325-3936 • www.pottersignal.com
PAGE 2 OF 2
Before connecting a device to the SLC loop, take the following precautions to prevent potential damage to the SLC or device.
• Power to the SLC is removed.
• Field wiring on module is correctly installed.
• Field wiring has no open or short circuits.
3. Technical Specications
Operating Voltage 24.0V
Max SLC Standby Current 200 μ A
Max SLC Alarm Current 200 μ A
Operating Temperature Range 32 to 120 F (0 to 49 C) Indoor Only
Operating Humidity Range 0 to 93% (non-condensing)
Max no. of Module Per Loop 127 units
Dimensions 4.75" L x 2.75" W x 1" D
Mounting Options Single gang box or Potter P32-BB/DBB
Shipping Weight 0.65 lbs
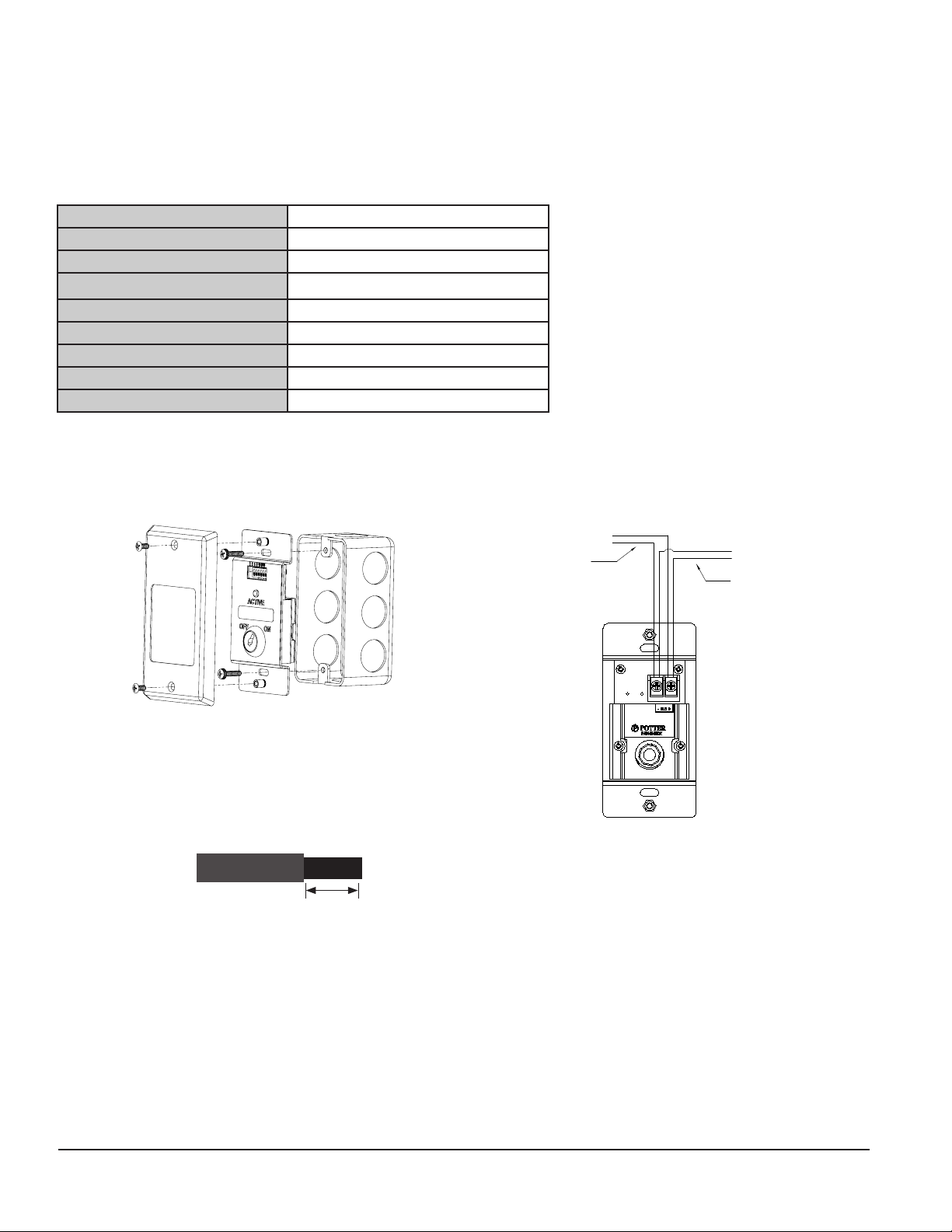
4. Wiring Diagrams
The wiring diagram shown below illustrates how to wire a PAD100-LEDK module. Additionally, an installation diagram shows how
to install the module using a compatible electrical box.
Figure 3. Examples of Installing a PAD100-LEDK Using a Compatible Electrical Box & Back View Wiring a PAD100-LEDK
Notes:
• SLC wiring style supports the Class A, Class B and Class X.
• SLC loop wiring (SLC+, SLC-) is power limited.
• Wiring for terminals SLC+, SLC- are supervised.
• All wiring is between #12 (max.) and #22 (min.).
• Wire Preparation – Strip all wires 1/4 inch from their edges
as shown here:
– Stripping too much insulation may cause a ground fault.
– Stripping too little may cause a poor connection and subsequently an open circuit.
These instructions do not purport to cover all the details or variations in the equipment described, nor provide for
every possible contingency to be met in connection with installation, operation and maintenance.
Specications subject to change without prior notication.
For Technical Assistance contact Potter Electric Signal Company at 866-956-1211.
Actual performance is based on proper application of the product by a qualied professional.
Should further information be desired or should particular problems arise, which are not covered sufciently for
the purchaser's purpose, the matter should be referred to a distributor in your region.
TO NEXT MODULE
FROM FACP OR
PREVIOUS MODULE
1/4 inch