
EM-1998 Rev.2 P. 1 / 3
MG CO., LTD. www.mgco.jp
5-2-55 Minamitsumori, Nishinari-ku, Osaka 557-0063 JAPAN
INSTRUCTION MANUAL
PHASE ANGLE TRANSDUCER
(for unbalanced load; self-powered) MODEL LPAUN
BEFORE USE ....
Thank you for choosing us. Before use, please check con-
tents of the package you received as outlined below.
If you have any problems or questions with the product,
please contact our sales office or representatives.
■PACKAGE INCLUDES:
Signal conditioner ...............................................................(1)
■MODEL NO.
Confirm Model No. marking on the product to be exactly
what you ordered.
■INSTRUCTION MANUAL
This manual describes necessary points of caution when
you use this product, including installation, connection and
basic maintenance procedures.
POINTS OF CAUTION
■GENERAL PRECAUTIONS
• Before you remove the unit or mount it, turn off the input
signal for safety.
■ENVIRONMENT
• Indoor use.
• When heavy dust or metal particles are present in the
air, install the unit inside proper housing with sufficient
ventilation.
• Do not install the unit where it is subjected to continuous
vibration. Do not subject the unit to physical impact.
• Environmental temperature must be within -10 to +55°C
(14 to 131°F) with relative humidity within 30 to 85% RH
in order to ensure adequate life span and operation.
■WIRING
• Do not install cables close to noise sources (relay drive
cable, high frequency line, etc.).
• Do not bind these cables together with those in which
noises are present. Do not install them in the same duct.
■AND ....
• The unit is designed to function as soon as the input sig-
nal is supplied, however, a warm up for 10 minutes is re-
quired for satisfying complete performance described in
the data sheet.
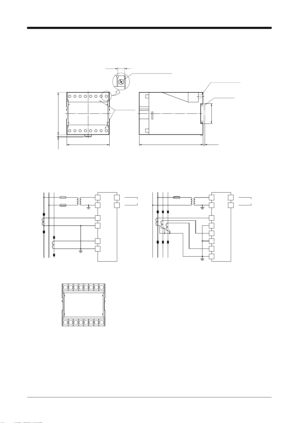
COMPONENT IDENTIFICATION
Zero Adj.
Specifications
Connection Diagram
Body
Span Adj.
INSTALLATION
■DIN RAIL MOUNTING
Set the unit so that its DIN rail adaptor is at the bottom.
Position the upper hook at the rear side of the unit on the
DIN rail and push in the lower. When removing the unit,
push down the DIN rail adaptor utilizing a screwdriver (–)
and pull.
DIN Rail
35mm wide
Spring Loaded
DIN Rail Adaptor
■WALL MOUNTING unit: mm (inch)
2–M5
60 (2.36)
60 (2.36)
■M5 SCREWS
2–M4
60 (2.36)
50 (1.97)
■
M4 SCREWS