
!OM series boilers are delivered without burners. For suitable burner selection
et in touch with
technicians. Suitable burners must be selected for takin
do not add cold water to the boiler for
restartin
. In this case wait for the boiler to cool down and re- tr
et in contact with technical services.
!In cleanin
manufacturer must be used.
!The
controls of the boiler must be done
as is a clean
fuel and doesn't make a lot of dirt in the boiler.But the boilers that li
uid fuels are used as fuels are much
more easil
et dirt. Controls and care o
erations of the boiler is needed for kee
eriodical controls of OM series boilers re
rofession.In this manual the res
uired information for users of the boiler is declared. Besides these declared o
erations, boiler
must not be started b
erson rather than the user or one our technicians.Please do not tr
ustment or do not touch an
arts of the boilers.
!The electric of the burner and the boiler is su
electric network.In this case the elecric and
li
stems of the boiler room, burner and boiler electrical connections,
anel and boiler must be made b
rofessionals under the re
uired and related standards.
!In this manual
ou will find informations onl
for the boilers. Please do not for
et the instruction
manual of the burner that
urchase from the manufacturer of it. Burner is not delivered with the
boiler. In this case we do not
uarantee for the burner that
uarantee certificate for the burner from
lier.
!Please be sure that the front door
for the boiler is strictl
closed and burner connections
are
made as the boiler is workin
.
GENERAL CHARACTERISTICS OF RS SERIES BOILERS
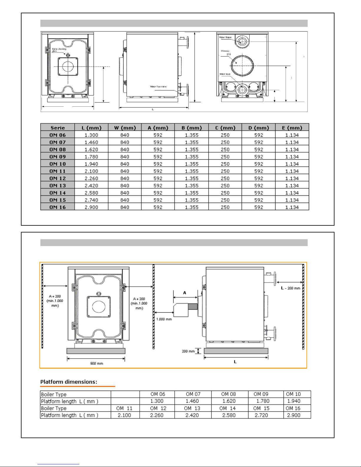
OM series boilers are, blowing burner, cast iron sectioned, between the capacities 378 – 930 kW with
proper burner connection, works with gas or liquid fuel in 11 different ( 6 – 16 sections) type.
OM series boilers operating pressure is 6 bar maximum, and working temperature is 90 °C maximum.
In OM series boilers,heat transfer surface areas are increased by the special wings in the burning room
and chimney ways.This inceases the high heat transfer ability of cast iron boiler to the maximum level.
OM series boilers are cast iron sectioned boilers.This brings easy assembling and easy capacity increasing
by adding sections to the boiler. The transportation and set up of the boiler is easy because boiler is
assembled in boiler rooms It is easily to carry or shift position without breaking walls etc.
OM series boilers are casted with s
which is durable for heat extansions and chan
200. They are long life boilers according to this special cast iron alloy.
With the help of horizontal and three pass specially designed sections burning gases pass three times in
the boiler and transmits burning energy to the water inside the sections at high level.
OM series boilers are high efficiency boilers. ( According to the fuel bottom heating value % 91 – 93 ).
With this high efficiency and perfect isolation more energy is gained with less fuel. Heat loses are
minimized on OM series boilers.
By appropriate burning room, heat transfer surface, turbulator, collector and isolation high heat transfer
and optimum flue gas emition results are provided.
Boiler sections are delivered as assembled or not assembled according to the boiler room specifications
and dimensions.In not assembled deliveries, sections and assembling aparats are delivered on a pallet,
cabins,isolation and other elements are delivered in a box. technicians make the assembling of the
boiler.
Delivery Conditions