SISÄLLYS
1. OHJAUSKESKUS C150VKK........................................3
1.1. Tekniset tiedot..................................................3
2. KÄYTTÖOHJE ..........................................................4
2.1. Pääkytkin (1) ....................................................4
2.2. Viikkokello (2)...................................................5
2.2.1. Viikkokellon näyttö ja painikkeet (kuva 2).....5
2.2.2. Kellonaika ja viikonpäivä (kuva 3)................5
2.2.3. Uusi aikaohjelmapari (kuva 4) .....................6
2.2.4. Aikaohjelman muokkaaminen (kuva 5) .........6
2.2.5. Aikaohjelmaparin poistaminen (kuva 6) ........7
2.2.6. Kesäaika .................................................7
2.2.7. Käsikäyttöinen päälle/pois ..........................7
2.3. Käsipainike (3) ..................................................7
2.3.1. Kiuas heti päälle........................................7
2.3.2. Kiuas pois päältä.......................................7
2.4. Näyttöruutu (4).................................................8
2.5. Lämpötilan säädin (5).........................................8
2.6. Merkkivalo, punainen (6) ....................................8
2.7. Merkkivalo, vihreä (7) ........................................8
2.8. Merkkivalo, punainen (8) ....................................8
3. ASENNUSOHJE ........................................................9
3.1. Ohjausyksikön C150VKK asentaminen.................9
3.1.1. Kannen irrotus ..........................................9
3.1.2. Kiinnitys seinään.......................................9
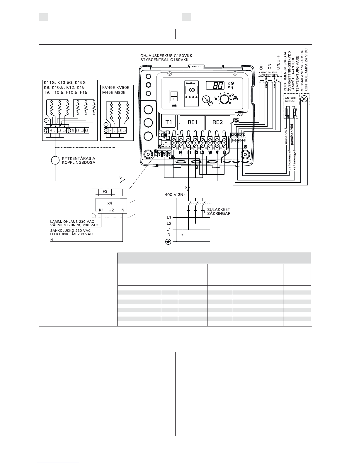
3.1.3. Sähkökytkennät......................................10
3.1.4. Ohjausyksikön perusasetuksien
muuttaminen.................................................... 10
3.1.5. Ohjausyksikön kauko-ohjaus.....................11
3.1.6. Merkkilamppu.........................................12
3.2. Termostaatin anturikotelon asentaminen..............12
CONTENTS
1. CONTROL UNIT C150VKK .......................................14
1.2. Technical data ................................................14
2. INSTRUCTIONS FOR USE.........................................14
2.1. Main Switch (1) ..............................................15
2.2. Weekly Timer (Weektimer) (2)...........................16
2.2.1. Weekly Timer’s Display and Buttons (fig. 2)16
2.2.2. Clock Time and Weekday (fig. 3) ..............16
2.2.3. New Timing Program Pair (fig. 4) ..............16
2.2.4. Changing a Timing Program (fig. 5) ...........17
2.2.5. Clearing a Timing Program Pair (fig. 6).......18
2.2.6. Summer Time.........................................18
2.2.7. Manual On/Off........................................18
2.3. Manual Switch (3)...........................................18
2.3.1. Heater On Instantly .................................18
2.3.2. Heater Off..............................................19
2.4. Display Screen (4)...........................................19
2.5. Temperature Regulator (5)................................19
2.6. Indicator Light, Red (6) ....................................19
2.7. Indicator Light, Green (7) .................................19
2.8. Indicator Light, Red (8) ....................................19
3. INSTRUCTIONS FOR INSTALLATION .........................20
3.1. Installation of the Control Unit C150VKK ...........20
3.1.1. Removing the Top Plate ...........................20
3.1.2. Fastening the Device to the Wall...............20
3.1.3. Electrical Connections .............................21
3.1.4. Altering the Basic Settings of the Control
Unit ................................................................21
3.1.5. Use of the Control Unit by Remote Control.22
3.1.6. Indicator Lamp........................................23
3.2. Installation of Sensor Box.................................23
INNEHÅLL
1. STYRENHET C150VKK ..............................................3
1.1. Tekniska data ...................................................3
2. BRUKSANVISNING ....................................................4
2.1. Huvudströmbrytare (1).......................................4
2.2. Veckotimer (2)..................................................5
2.2.1. Veckotimerns display och knappar (bild 2)....5
2.2.2. Klockslag och veckodag (bild 3) ..................5
2.2.3. Nytt par av tidsprogram (bild 4) ..................6
2.2.4. Ändra ett tidsprogram (bild 5).....................6
2.2.5. Ta bort tidsprogrampar (bild 6) ...................7
2.2.6. Sommartid ...............................................7
2.2.7. Manuellt på/av..........................................7
2.3. Tangent för manuell drift (3)...............................7
2.3.1. Koppla på aggregatet omedelbart ................7
2.3.2. Koppla ur aggregatet .................................7
2.4. Display (4) .......................................................8
2.5. Temperaturreglage (5)........................................8
2.6. Kontrollampa, röd (6).........................................8
2.7. Kontrollampa, grön (7) .......................................8
2.8. Kontrollampa, röd (8).........................................8
3. MONTERINGSANVISNING ..........................................9
3.1. Montering av styrenhet C150VKK .......................9
3.1.1. Demontering av lock..................................9
3.1.2. Infästning i väggen....................................9
3.1.3. Elanslutningar.........................................10
3.1.4. Ändring av styrenhetens grundinställningar.10
3.1.5. Fjärrstyrning av styrenheten .....................11
3.1.6. Kontrollampa..........................................12
3.2. Montering av termostatens sensordosa ..............12
INHALT
1. STEUERGERÄT C150VKK ........................................14
1.2. Technische Daten............................................14
2. BEDIENUNGSANLEITUNG.........................................14
2.1. Hauptschalter (1) ............................................15
2.2. Wochen-Zeitschaltuhr (Weektimer) (2) ...............16
2.2.1. Display und Tasten der Wochen-Zeitschaltuhr
(Abb. 2) ..........................................................16
2.2.2. Uhrzeit und Wochentag (Abb. 3)...............16
2.2.3. Neues Zeitschalt-Programmpaar (Abb. 4) ...16
2.2.4. Ändern eines Zeitschaltprogramms (Abb. 5)17
2.2.5. Löschen von Zeitschalt-Programmpaaren
(Abb. 6) ..........................................................18
2.2.6. Sommerzeit............................................18
2.2.7. Manuell ein/aus.......................................18
2.3. Manueller Schalter (3)......................................18
2.3.1. Ofen sofort einschalten............................18
2.3.2. Ofen ausgeschaltet .................................19
2.4. Anzeige (4).....................................................19
2.5. Temperaturregler (5)........................................19
2.6. Kontrollampe, rot (6) .......................................19
2.7. Kontrollampe, grün (7) .....................................19
2.8. Kontrollampe, rot (8) .......................................19
3. INSTALLATIONSANLEITUNG......................................20
3.1. Installation des Steuergerät C150VKK ...............20
3.1.1. Lösen des Deckels .................................20
3.1.2. Wandbefestigung ...................................20
3.1.3. Elektrische Anschlüsse ............................21
3.1.4. Änderung der Voreinstellungen der
Steuereinheit....................................................21
3.1.5. Fernsteuerung des Steuergeräts ................22
3.1.6. Kontrollampe..........................................23
3.2. Installation des Fühlerkastens ...........................23