
4
S121c
APR 2006
Color Part No.
Red 70-1100
Amber 70-1101
Green 70-1102
Beacon Pilot Light Kits
ODS
STD ALSO STD
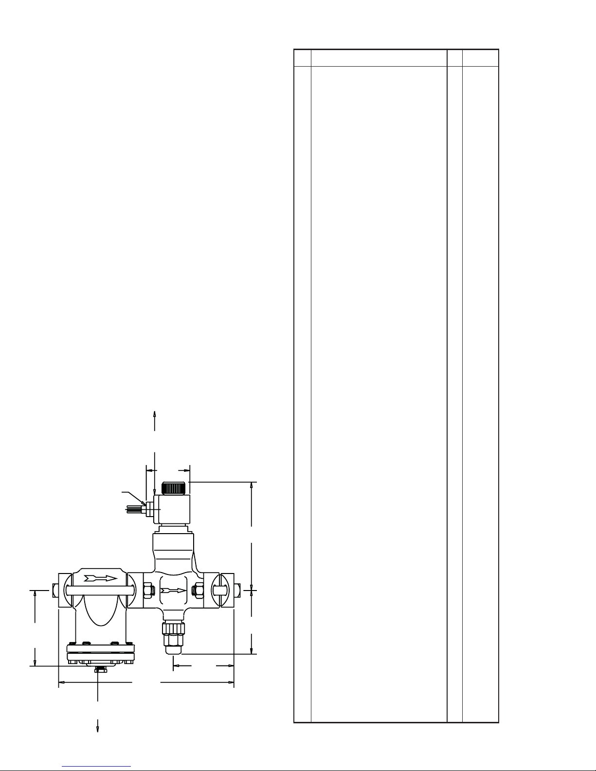
3/4" (20) 1" (25)
1 1/4" (32) 7/8" (22)
1" (25) 3/4" (20)
1 1/4" (32) 1 1/8" (28)
1 1/4" (32) 3/4" (20)
1" (25) 1 3/8" (35)
Flange Connection Style & Sizes
Inches (Millimeters)
FPT, SW, WN
Hansen Technologies Corporation
6827 High Grove Boulevard
Burr Ridge, Illinois 60527 USA
Tel: 630.325.1565 Fax: 630.325.1572 Toll: 800.426.7368
USA ∙Asia ∙Europe ∙India ∙Latin America ∙Middle East
© 2006 Hansen Technologies Corporation
ELECTRICAL
The coil draws 16 watts and will operate properly
between 85% and 110% of rated voltage (24V coil
draws 19 watts). Standard coil connection is a 1/2”
fitting (NPSM) for conduit, with two 18” wire leads and
ground wire. Coils with DIN plug or 1/2” NPSM quick
disconnect plug are available. Contact the factory.
All coils are totally encapsulated and meet NEMA 3R
(rainproof) and NEMA 4 (splashproof, approx. IP65)
requirements. The coil should only be energized
while on the solenoid tube. Otherwise, immediate coil
burnout may occur. To avoid bending the solenoid
tube, remove the coil from valve before connecting
any electrical conduit. Pilot lights are available.
SERVICE AND MAINTENANCE
Failure to open: wrong voltage coil; low line voltage;
controlling switch or thermostat not contacting; coil is
burned-out; inlet/outlet pressure differential too high;
less than 2 psi (0.14 bar) pressure drop across valve;
piston or plunger is jammed closed with dirt.
Failure to close: controlling switch or thermostat
not opening contacts; manual opening stem is turned
in; piston or plunger is jammed upward by dirt; damage
or dirt at main valve seat or pilot valve seat.
Before opening the valve for service, be sure it is
isolated from the system and all refrigerant is removed.
Disconnect electrical power from coil. Remove the coil
by unscrewing the coil knob. Use a large wrench to
unscrew the bonnet-cartridge proceeding cautiously
to avoid any refrigerant still remaining inside the
valve. Remove closing spring and piston. Check for
dirt on piston or seat. Polish with fine emery cloth
and replace or else install new parts. Check and
replace bonnet-cartridge O-rings if necessary, using
refrigerant oil or grease.
To check pilot section of valve, loosen four solenoid
tube screws, break seal between solenoid tube
and bonnet-cartridge; being careful to avoid any
refrigerant which may remain. Check face of Teflon
seat in plunger, plunger spring, and pilot seat orifice
on bonnet-cartridge. Clean, polish or replace parts
as necessary. Always replace plunger and solenoid
tube as a set. Pilot seat is integral with bonnet-
cartridge. Install new solenoid tube gasket and oil
lightly. Reassemble bonnet-cartridge to valve body,
using 75 foot-pounds torque to tighten secondary,
metal, knife edge seal. Carefully check the valve for
leaks before restoring to service.
CAUTION
Hansen valves are only for refrigeration systems.
These instructions must be completely read and
understood before selecting, using or servicing Hansen
valves. Only knowledgeable, trained refrigeration
mechanics should install, operate, or service these
valves. Stated temperature and pressure limits should
not be exceeded. Bonnets, solenoid tubes, etc. should
not be removed from valves unless system has been
evacuated to zero pressure. Must also see Safety
Precautions in current List Price Bulletin and Safety
Precautions Sheet supplied with product.
WARRANTY
All Hansen products, except electronics, are
guaranteed against defective materials or workmanship
for one year F.O.B. factory. Electronics are guaranteed
against defective materials or workmanship for 90
days F.O.B. factory. No consequential damages or
field labor is included.
ORDERING INFORMATION
FPT: Female Pipe Thread (American National Standard)
SW: Socket Weld to accommodate American and API pipe
WN: Weld Neck to match American Schedule 40 pipe
ODS: Outside Diameter Sweat, for copper tube size
Standard encapsulated solenoid coil is included
for 50/60Hz 208/230, 115, or 24 volts; other
voltages offered. Standard coil connection is
a 1/2” fitting (NPSM). Coils with DIN plug or
1/2” NPSM quick disconnect plug are available;
please specify when ordering. Pilot lights are
also available.
OPTIONAL BEACON PILOT LIGHTS
Pilot Light Kit includes Beacon pilot light, knob and
o-ring. A/C Coils Only.
TO ORDER:
Specify type, connection type and size, volts, and
strainer if required. Unless otherwise specified,
standard coil with 1/2” connection will be supplied.
TYPICAL SPECIFICATIONS
“Refrigerant solenoid valves shall have encapsulated,
watertight coils, Teflon seats, steel or ductile iron
bodies, spring closing pilot and main valve seats, and
be suitable for a safe working pressure of 400 psig
(27 bar), as manufactured by Hansen Technologies
Corporation or approved equal.”