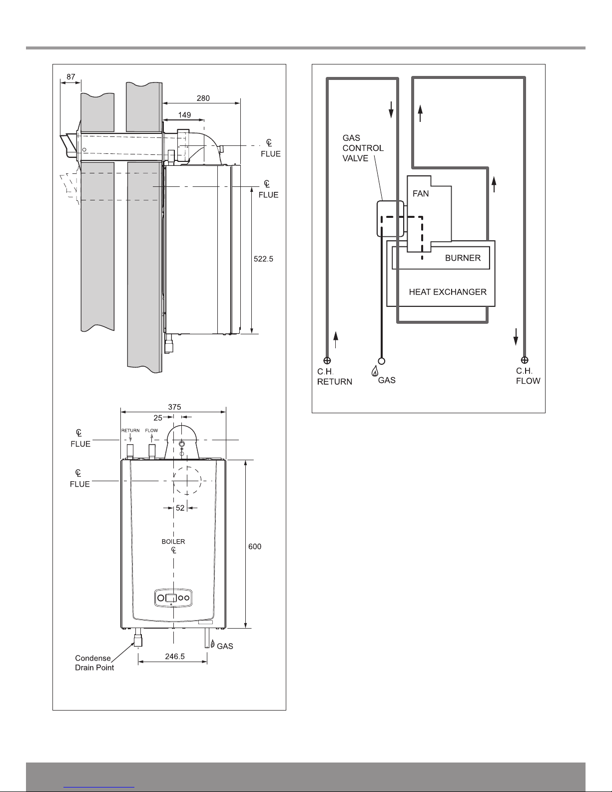
Boiler Design
Boiler Design
These boilers are designed to provide central heating from
a fully pumped open vented or sealed water system and
domestic hot water using a fully indirect cylinder.
Once the controls are set the boiler operates automatically.
Range Rating
The boilers are fully modulating for central heating, and it is
therefore not necessary to range rate the boiler. However, if
desired, it is possible to range rate the boiler between 10 and
Max. output (according to the model), in 1kW increments,
refer to section 12.
Electrical Supply Failure
The boiler will not work without an electrical supply.
Normal operation of the boiler should resume when the
electrical supply is restored.
Reset any external controls, to resume normal operation of
the central heating.
If the boiler does not resume normal operation press the reset
button. If the boiler does not resume normal operation after
this call your Installation/Servicing company or Glow-worm
service.
Overheating Safety
The boiler software is designed to recognise the potential for
an overheat lockout and will shutdown before this happens.
To restart the boiler, press the reset button on the controls
fascia.
If the boiler fails to resume normal operation and all external
controls are calling for heat, then call your Installation/
Servicing company or Glow-worm service.
Safety Devices
Frost protection
The appliance has a built in frost protection device that
protects the boiler from freezing. With the gas and electric
supplies ON and irrespective of any room thermostat setting,
the frost protection device will operate the pump when the
temperature of the boiler water falls below 8oC.
A timer is used so that the temperature can be checked
periodically. After 10 minutes the pump will be stopped if the
temperature is higher than 10oC or has already reached 35oC.
The burner will activate if the boiler temperature does not
reach 10oC after 30 minutes or at any time if the temperature
drops to 5oC.
The burner will switch off when the temperature reaches 35oC.
Condensate Drain Blockage
As a safety feature the boiler will stop working if the
condensate drain becomes blocked. During freezing
conditions this may be due to the forming of ice in the
condense drain external to the house. Release an ice
blockage by the use of warm cloths on the pipe. The boiler
should then restart.
Condensate Drain
A plastic drain pipe must be tted to allow discharge of
condensate to a drain.
Condensate should, if possible, be discharged into the internal
household draining system. If this is not practical, discharge
can be made externally into the household drainage system or
a purpose designed soak away, see section 8 for more details.
Pluming from ue terminal
Like all condensing boilers this appliance will produce a plume
of condensation from the ue terminal in cool weather. This is
due to the high efciency and hence low ue gas temperature
of the boiler. This is normal and not an indication of a fault.
Servicing, Maintenance and Spare Parts
Servicing and Maintenance
To ensure the continued efcient and safe operation of the
boiler it is recommended that it is checked and serviced as
necessary at regular intervals. The frequency of servicing will
depend upon the particular installation conditions and usage.
If this appliance is installed in a rented property there is a duty
of care imposed on the owner of the property by the current
issue of the Gas Safety (Installation and Use) Regulations,
Section 35.
Servicing/maintenance should be carried out by a competent
person in accordance with the rules in force in the countries of
destination.
To obtain service, please call your installer or Glow-worm’s
own service organisation using the telephone number on the
inside front cover of this literature.
“Benchmark” scheme
Glow-worm support the Benchmark initiative. It is very important
that the Installation, Commissioning and Service Record is
completed by the installation engineer and handed over to the
user.
Spare Parts
Remember, when replacing a part on this appliance, use
only spare parts that you can be assured conform to the
safety and performance specication that we require. Do not
use reconditioned or copy parts that have not been clearly
authorised by Glow-worm.
If a part is required contact Glow-worm’s own service
organisation using the telephone number on the inside front
cover of this booklet.
Please quote the name of the appliance, this infomation will
be on the name badge on the front of the appliance.
If in doubt seek advice from the local gas company or Glow-
worm’s own service organisation using the telephone number
on the inside front cover of this booklet.