
EN
- 5 -
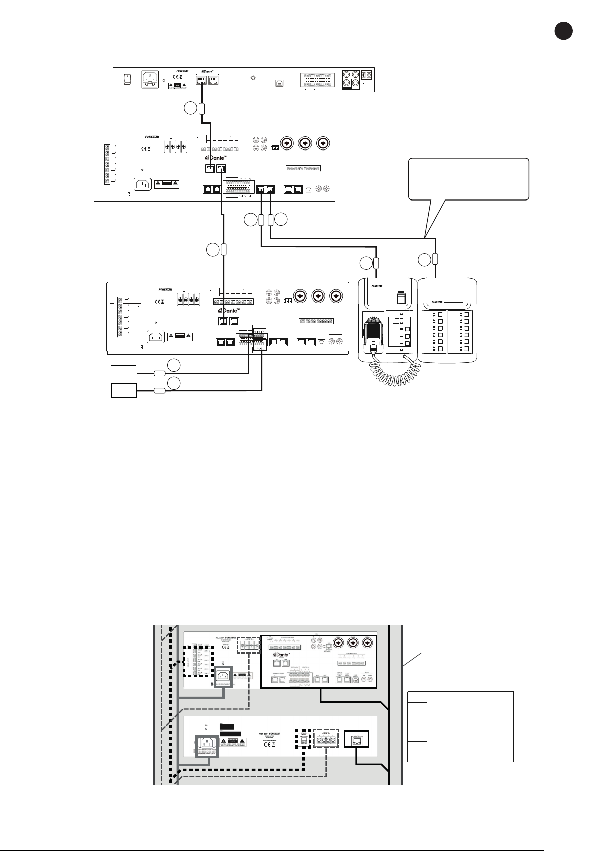
Step 1: connect the data bus between the equipment and install the junction plate as described in the
section CONNECTING VELA-EXTMIC TO VELA-FMIC/VELA-MIC/VELA-EXTMIC.
GND
NETWORK
IN
ACT/LINK ACT/LINK1G 1G
LINK
GPS
MESSAGE
CTRL OUT CTRL INC
A
RS485 B G N C 4 C 6 C 5 C 4
3 C 2 C 1 C 3 C 2 C 1 1
+ -
3
2
INPUT OUTPUT
TIMING MEDIA PLAYER
VELA-BGM
POWER IN
24 V, 1 A
1 2 3 4
24 V DC
0.3 A MAX.
OUT
65 4 321
+ + - -
~100-120 V AC. 50/60 Hz, FUSE: T12AL 250 V
~220-240 V AC. 50/60 Hz, FUSE: T6.3AL 250 V
POWER CONSUMPTION: 1,100 W
INPUTSPEAKER OUTPUT
100 V
COM
100 V
COM
100 V
COM
100 V
COM
100 V
COM
100 V
COM
100 V
COM
ZONE 1
ZONE 2
ZONE 3
ZONE 4
ZONE 5
ZONE 5
BACKUP
AMPLIFIER
2 1
EMERGENCY CONTROL
CONTROL INCONTROL OUT
3 2 1
-+ - + - +
-+ - + - +
3
-+ - + - + - + - + - +- +
-+ - + - + - + - + - +
2 1
6 5 4
65 4
RD 1 RD 2
BACKUP
AMPLIFIER
LINK
POWER
SUPPLY MSG
MEMORY
REC OUT
BGM PAGING
GAIN
INPUT x 3 2 1
LINE
MIC
BGM
2 1
6 5 43 2 1
ZONE LINE OUTPUT
ATTENUATOR CONTROL
INPUT 3 INPUT 2 INPUT 1
LINKIN
NETWORK
VELA-AMP
EN54 ZONE AMPLIFIER
EN 54-16:2008
360 W RMS
CAUTION: SHOCK HAZARD - DO NOT OPEN
RISK OF FIRE-REPLACE FUSE AS MARKED
CAUT ION
RISKOF ELECTRIC SHOCK
DONOT OPEN
POWER IN
24 V DC, 22 A
1 2 3 4
24 V DC
0.3 A MAX.
OUT
65 4 321
+ + - -
~100-120 V AC. 50/60 Hz, FUSE: T12AL 250 V
~220-240 V AC. 50/60 Hz, FUSE: T6.3AL 250 V
POWER CONSUMPTION: 1,100 W
INPUTSPEAKER OUTPUT
100 V
COM
100 V
COM
100 V
COM
100 V
COM
100 V
COM
100 V
COM
100 V
COM
ZONE 1
ZONE 2
ZONE 3
ZONE 4
ZONE 5
ZONE 5
BACKUP
AMPLIFIER
2 1
EMERGENCY CONTROL
CONTROL INCONTROL OUT
3 2 1
-+ - + - +
-+ - + - +
3
-+ - + - + - + - + - +- +
-+ - + - + - + - + - +
2 1
6 5 4
65 4
RD 1 RD 2
BACKUP
AMPLIFIER
LINK
POWER
SUPPLY MSG
MEMORY
REC OUT
BGM PAGING
GAIN
INPUT x 3 2 1
LINE
MIC
BGM
2 1
6 5 43 2 1
ZONE LINE OUTPUT
ATTENUATOR CONTROL
INPUT 3 INPUT 2 INPUT 1
LINKIN
NETWORK
VELA-AMP
EN54 ZONE AMPLIFIER
EN 54-16:2008
360 W RMS
CAUTION: SHOCK HAZARD - DO NOT OPEN
RISK OF FIRE-REPLACE FUSE AS MARKED
CAUT ION
RISKOF ELECTRIC SHOCK
DONOT OPEN
POWER IN
24 V DC, 22 A
POWER
MIC
COMFAIL
EMERGENCY
MODE
GENERALFAIL
ALERTMSG
LAMPTEST
EVACUATEMSG
RESET
VELA-EXTMICEN54 MICROPHONE EXTENSION
VELA-AMP
VELA-EXT
VELA-BGM
VELA-MIC
VELA-FMIC
VELA-AMP
VELA-BUP
VELA-PDU
VELA-EXT
VELA-BGM
+-
PSU
VELA-EXTMICEN54 MICROPHONE EXTENSION
POWER
MIC
COMFAIL
EMERGENCY
MODE
GENERALFAIL
ALERTMSG
LAMPTEST
EVACUATEMSG
RESET
56
8
7
1
2
4
3CONTROL IN 1-3
CONTROL IN 4-6
12
13
14
15
16
18
17
RACK
For VELA-MIC the distance
between the magnetic ring
and the devices should be less
than 30 cm
Iron shell
Fixing rack
Fixing rack
The magnetic ring
should be fixed
in this area (12U-18U)
1. CONTROL INPUT
2. CONTROL OUTPUT
3. NETWORK CABLE
4. ATT CONTROL
5. RD1 / RD 2
6. SUBWOOFER INPUT
7. AUDIO INPUT
8. PS TO PSU
24 V DC
Speaker cable
AC input
12
13
14
15
16
18
17
The magnetic ring
should be fixed
in this area (12U-18U)
BATTERY
General
input
General
input
Step 2: drill the holes in the wall using a drill to fix the safety box. Attach the box to the wall with studs,
washers, and screws of the required size ensuring that it is fixed firmly and stably.
GND
NETWORK
IN
ACT/LINK ACT/LINK1G 1G
LINK
GPS
MESSAGE
CTRL OUT CTRL INC
A
RS485 B G N C 4 C 6 C 5 C 4
3 C 2 C 1 C 3 C 2 C 1 1
+ -
3
2
INPUT OUTPUT
TIMINGMEDIA PLAYER
VELA-BGM
POWER IN
24 V, 1 A
1 2 3 4
24 V DC
0.3 A MAX.
OUT
65 4 321
+ + - -
~100-120 V AC. 50/60 Hz, FUSE: T12AL 250 V
~220-240 V AC. 50/60 Hz, FUSE: T6.3AL 250 V
POWER CONSUMPTION: 1,100 W
INPUTSPEAKER OUTPUT
100 V
COM
100 V
COM
100 V
COM
100 V
COM
100 V
COM
100 V
COM
100 V
COM
ZONE 1
ZONE 2
ZONE 3
ZONE 4
ZONE 5
ZONE 5
BACKUP
AMPLIFIER
2 1
EMERGENCY CONTROL
CONTROL INCONTROL OUT
3 2 1
-+ - + - +
-+ - + - +
3
-+ - + - + - + - + - +- +
-+ - + - + - + - + - +
2 1
6 5 4
65 4
RD 1 RD 2
BACKUP
AMPLIFIER
LINK
POWER
SUPPLY MSG
MEMORY
REC OUT
BGM PAGING
GAIN
INPUT x 3 2 1
LINE
MIC
BGM
2 1
6 5 43 2 1
ZONE LINE OUTPUT
ATTENUATOR CONTROL
INPUT 3 INPUT 2 INPUT 1
LINKIN
NETWORK
VELA-AMP
EN54 ZONE AMPLIFIER
EN 54-16:2008
360 W RMS
CAUTION: SHOCK HAZARD - DO NOT OPEN
RISKOF FIRE-REPLACE FUSE AS MARKED
CAUTI ON
RISKOF ELECTRIC SHOCK
DONOT OPEN
POWER IN
24 V DC, 22 A
1 2 3 4
24 V DC
0.3 A MAX.
OUT
65 4 321
+ + - -
~100-120 V AC. 50/60 Hz, FUSE: T12AL 250 V
~220-240 V AC. 50/60 Hz, FUSE: T6.3AL 250 V
POWER CONSUMPTION: 1,100 W
INPUTSPEAKER OUTPUT
100 V
COM
100 V
COM
100 V
COM
100 V
COM
100 V
COM
100 V
COM
100 V
COM
ZONE 1
ZONE 2
ZONE 3
ZONE 4
ZONE 5
ZONE 5
BACKUP
AMPLIFIER
2 1
EMERGENCY CONTROL
CONTROL INCONTROL OUT
3 2 1
-+ - + - +
-+ - + - +
3
-+ - + - + - + - + - +- +
-+ - + - + - + - + - +
2 1
6 5 4
65 4
RD 1 RD 2
BACKUP
AMPLIFIER
LINK
POWER
SUPPLY MSG
MEMORY
REC OUT
BGM PAGING
GAIN
INPUT x 3 2 1
LINE
MIC
BGM
2 1
6 5 43 2 1
ZONE LINE OUTPUT
ATTENUATOR CONTROL
INPUT 3 INPUT 2 INPUT 1
LINKIN
NETWORK
VELA-AMP
EN54 ZONE AMPLIFIER
EN 54-16:2008
360 W RMS
CAUTION: SHOCK HAZARD - DO NOT OPEN
RISKOF FIRE-REPLACE FUSE AS MARKED
CAUTI ON
RISKOF ELECTRIC SHOCK
DONOT OPEN
POWER IN
24 V DC, 22 A
POWER
MIC
COMFAIL
EMERGENCY
MODE
GENERALFAIL
ALERTMSG
LAMPTEST
EVACUATEMSG
RESET
VELA-EXTMICEN54 MICROPHONE EXTENSION
VELA-AMP
VELA-EXT
VELA-BGM
VELA-MIC
VELA-FMIC
VELA-AMP
VELA-BUP
VELA-PDU
VELA-EXT
VELA-BGM
+-
PSU
VELA-EXTMICEN54 MICROPHONE EXTENSION
POWER
MIC
COMFAIL
EMERGENCY
MODE
GENERALFAIL
ALERTMSG
LAMPTEST
EVACUATEMSG
RESET
56
8
7
1
2
4
3CONTROL IN 1-3
CONTROL IN 4-6
12
13
14
15
16
18
17
RACK
For VELA-MIC the distance
between the magnetic ring
and the devices should be less
than 30 cm
Iron shell
Fixing rack
Fixing rack
The magnetic ring
should be fixed
in this area (12U-18U)
1. CONTROL INPUT
2. CONTROL OUTPUT
3. NETWORK CABLE
4. ATT CONTROL
5. RD1 / RD 2
6. SUBWOOFER INPUT
7. AUDIO INPUT
8. PS TO PSU
24 V DC
Speaker cable
AC input
12
13
14
15
16
18
17
The magnetic ring
should be fixed
in this area (12U-18U)
BATTERY
General
input
General
input
Step 3: drill the holes in the wall through the box using a drill to fix the wall mount. And fix the mount to the
wall with studs, washers, and screws of the required size ensuring that it is fixed firmly and stably.
GND
NETWORK
IN
ACT/LINK ACT/LINK1G 1G
LINK
GPS
MESSAGE
CTRL OUT CTRL INC
A
RS485 B G N C 4 C 6 C 5 C 4
3 C 2 C 1 C 3 C 2 C 1 1
+ -
3
2
INPUT OUTPUT
TIMINGMEDIA PLAYER
VELA-BGM
POWER IN
24 V, 1 A
1 2 3 4
24 V DC
0.3 A MAX.
OUT
65 4 321
+ + - -
~100-120 V AC. 50/60 Hz, FUSE: T12AL 250 V
~220-240 V AC. 50/60 Hz, FUSE: T6.3AL 250 V
POWER CONSUMPTION: 1,100 W
INPUTSPEAKER OUTPUT
100 V
COM
100 V
COM
100 V
COM
100 V
COM
100 V
COM
100 V
COM
100 V
COM
ZONE 1
ZONE 2
ZONE 3
ZONE 4
ZONE 5
ZONE 5
BACKUP
AMPLIFIER
2 1
EMERGENCY CONTROL
CONTROL INCONTROL OUT
3 2 1
-+ - + - +
-+ - + - +
3
-+ - + - + - + - + - +- +
-+ - + - + - + - + - +
2 1
6 5 4
65 4
RD 1 RD 2
BACKUP
AMPLIFIER
LINK
POWER
SUPPLY MSG
MEMORY
REC OUT
BGM PAGING
GAIN
INPUT x 3 2 1
LINE
MIC
BGM
2 1
6 5 43 2 1
ZONE LINE OUTPUT
ATTENUATOR CONTROL
INPUT 3 INPUT 2 INPUT 1
LINKIN
NETWORK
VELA-AMP
EN54 ZONE AMPLIFIER
EN 54-16:2008
360 W RMS
CAUTION: SHOCK HAZARD - DO NOT OPEN
RISKOF FIRE-REPLACE FUSE AS MARKED
CAUTI ON
RISKOF ELECTRIC SHOCK
DONOT OPEN
POWER IN
24 V DC, 22 A
1 2 3 4
24 V DC
0.3 A MAX.
OUT
65 4 321
+ + - -
~100-120 V AC. 50/60 Hz, FUSE: T12AL 250 V
~220-240 V AC. 50/60 Hz, FUSE: T6.3AL 250 V
POWER CONSUMPTION: 1,100 W
INPUTSPEAKER OUTPUT
100 V
COM
100 V
COM
100 V
COM
100 V
COM
100 V
COM
100 V
COM
100 V
COM
ZONE 1
ZONE 2
ZONE 3
ZONE 4
ZONE 5
ZONE 5
BACKUP
AMPLIFIER
2 1
EMERGENCY CONTROL
CONTROL INCONTROL OUT
3 2 1
-+ - + - +
-+ - + - +
3
-+ - + - + - + - + - +- +
-+ - + - + - + - + - +
2 1
6 5 4
65 4
RD 1 RD 2
BACKUP
AMPLIFIER
LINK
POWER
SUPPLY MSG
MEMORY
REC OUT
BGM PAGING
GAIN
INPUT x 3 2 1
LINE
MIC
BGM
2 1
6 5 43 2 1
ZONE LINE OUTPUT
ATTENUATOR CONTROL
INPUT 3 INPUT 2 INPUT 1
LINKIN
NETWORK
VELA-AMP
EN54 ZONE AMPLIFIER
EN 54-16:2008
360 W RMS
CAUTION: SHOCK HAZARD - DO NOT OPEN
RISKOF FIRE-REPLACE FUSE AS MARKED
CAUTI ON
RISKOF ELECTRIC SHOCK
DONOT OPEN
POWER IN
24 V DC, 22 A
POWER
MIC
COMFAIL
EMERGENCY
MODE
GENERALFAIL
ALERTMSG
LAMPTEST
EVACUATEMSG
RESET
VELA-EXTMICEN54 MICROPHONE EXTENSION
VELA-AMP
VELA-EXT
VELA-BGM
VELA-MIC
VELA-FMIC
VELA-AMP
VELA-BUP
VELA-PDU
VELA-EXT
VELA-BGM
+-
PSU
VELA-EXTMICEN54 MICROPHONE EXTENSION
POWER
MIC
COMFAIL
EMERGENCY
MODE
GENERALFAIL
ALERTMSG
LAMPTEST
EVACUATEMSG
RESET
56
8
7
1
2
4
3CONTROL IN 1-3
CONTROL IN 4-6
12
13
14
15
16
18
17
RACK
For VELA-MIC the distance
between the magnetic ring
and the devices should be less
than 30 cm
Iron shell
Fixing rack
Fixing rack
The magnetic ring
should be fixed
in this area (12U-18U)
1. CONTROL INPUT
2. CONTROL OUTPUT
3. NETWORK CABLE
4. ATT CONTROL
5. RD1 / RD 2
6. SUBWOOFER INPUT
7. AUDIO INPUT
8. PS TO PSU
24 V DC
Speaker cable
AC input
12
13
14
15
16
18
17
The magnetic ring
should be fixed
in this area (12U-18U)
BATTERY
General
input
General
input
12
13
14
15
16
18
17
Dans le VELA-MIC, la distance
entre l’anneau magnétique et
les appareils doit être inférieure
à 30 cm
Boîte d’installation
en métal
Support de
montage
Support de
montage
La ferrite est située
dans cette zone du
rack (12U - 18U)
1. CONTRÔLE ENTRÉE
2. CONTRÔLE SORTIE
3. CÂBLE RÉSEAU
4. CONTRÔLE DE L’ATTÉNUATEUR
5. RD1 / RD 2
6. CONNEXION AVEC VELA-EXT
7. ENTRÉES AUDIO
8. CONNEXIONS AVEC VELA-BUP
Alimentation électrique
24 V CC
Cable de haut-parleurs
Alimentation AC
La ferrite est située
dans cette zone du
rack (12U - 18U)
PILES
Admission
générale
Admission
générale
No VELA-MIC, a distância
entre o anel magnético e os
dispositivos deve ser inferior
a 30 cm
Caixa metálica
de instalação
Suporte de
montagem
Suporte de
montagem
1. CONTROL IN
2. CONTROL OUT
3. CABO DE REDE
4. CONTROLO DO ATENUADOR
5. RD1 / RD 2
6. LIGAÇÃO COM O VELA-EXT
7. ENTRADAS DE ÁUDIO
8. LIGAÇÕES AO VELA-BUP
Alimentação 24 V CC
Cabo de coluna
Alimentação AC
12
13
14
15
16
18
17
A ferrite está
localizada nesta área
do rack (12U - 18U)
A ferrite está
localizada nesta área
do rack (12U - 18U)
Admissão
geral
Admissão
geral
Step 4: place the base of the microphone inwards and downwards. Make sure that the base is properly
attached before letting go of the device.