
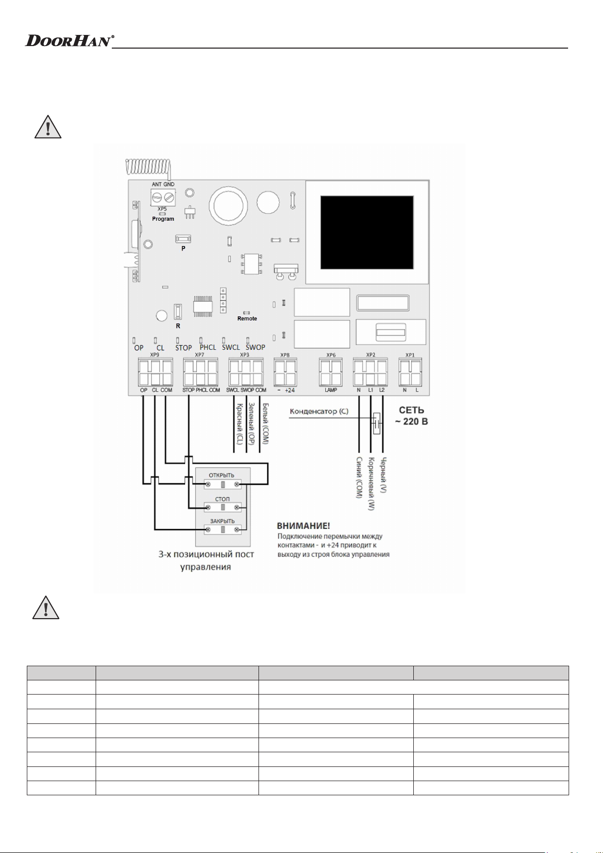
7
ПРОГРАММИРОВАНИЕ ПУЛЬТОВ ДУ
2.2. НАСТРОЙКА АВТОМАТИЧЕСКОГО ЗАКРЫТИЯ
Установите режим работы привода с автоматическим закрытием (режим пять). Нажмите и удерживайте кнопку «P»,
индикатор «Program» загорится постоянным светом и через три секунды погаснет. Выдержите необходимое время для
таймера автоматического закрытия и повторно нажмите кнопку «P» (максимальное время автоматического закрытия — 5
мин.).
3. ПРОГРАММИРОВАНИЕ ПУЛЬТОВ ДУ
3.1. ОЧИСТКА ПАМЯТИ ПРИЕМНИКА
После включения питания нажмите и удерживайте кнопку записи пультов «R», индикатор «Remote» загорится
постоянно красным светом, по истечении 10-ти секунд индикатор погаснет и загорится на одну секунду в подтверждение
стирания записанных в память пультов. Отпустите кнопку записи пультов «R».
3.2. ЗАПИСЬ ПУЛЬТОВ DOORHAN В ПРИЕМНИК
Для записи пульта нажмите и удерживайте в течение 3-х секунд кнопку «R». Индикатор «Remote» загорится постоянным
красным светом. Отпустите кнопку «R». Выберите на пульте дистанционного управления кнопку, которой впоследствии
будете управлять работой привода. Нажмите два раза на выбранную кнопку, и красный индикатор «Remote» мигнет один
раз в подтверждение записи кода пульта в приемник.
Для записи нескольких пультов повторите процедуру записи для каждого пульта.
3.3. УДАЛЕННОЕ ПРОГРАММИРОВАНИЕ ПУЛЬТОВ DOORHAN
Пункты 1–4 необходимо выполнить в пятисекундном интервале:
1. Нажать и удерживать кнопку 2 (см. рис. 1) запрограммированного пульта.
2. Не отпуская нажатую кнопку 2, нажать и удерживать кнопку 1.
3. Отпустить зажатые кнопки.
4. Нажать запрограммированную кнопку пульта, приемник войдет в режим программирования пультов (индикатор
«Remote» загорится постоянным светом).
5. На новом пульте управления дважды нажать на кнопку, которой впоследствии будете управлять работой привода.
Индикатор «Remote» мигнет один раз в подтверждение записи кода пульта в приемник.
ПРИМЕЧАНИЕ:
• Функция автоматического закрытия ворот работает только при пятом режиме работы.
• Если установка времени паузы перед автоматическим закрытием не проводилась, то при установленном ре-
жиме работы с автоматическим закрытием, привод будет автоматически закрываться через 30 секунд.
ПРИМЕЧАНИЕ:
При переполнении памяти приемника индикатор «Remote» мигнет три раза (максимальное количество пультов в
памяти приемника — 60 шт.).
ПРИМЕЧАНИЕ:
Программирование пультов необходимо выполнять в радиусе действия приемника платы управления электро-
приводом. Номер кнопки можно определить по точкам на корпусе пульта.
1
2
43 23
41
1
2
21