
© Danfoss | DCS (rm) | 2019.09
4 | 520H11632 | DKRCC.PI.CE0.B2.53
Pressostatos diferenciales
*) Visitar www.products.danfoss.com para consultar
la lista completa de refrigerantes aprobados.
Puede buscarse por códigos, donde los refrigerantes
se muestran como parte de datos técnicos.
Características técnicas
Zona neutra, ∆p Nz
RT 260AL: 0.3 bar – 0.9 bar
RT 262AL: 0.1 bar – 0.33 bar
RT 263AL: 0.05 bar – 0.23 bar
RT 266AL: 0.05 bar – 0.23 bar
Presión de prueba máx. p' = 1.1 × PB
Temperatura admisible: -40°C – 70 °C
Carga de Los contactos
Véase cubierta de Los contactos o figura 3.
Si se indica una cargo de los contactos de por
ejemplo 10 (4) A, 400 V CA, esto significa que
la carga conectada debe ser como máximo de
10 A si es una carga ohmica, y de 4 A si es una
carga inductiva a 400 V CA.
La corriente de arranque admisible en el
momento de la conexión del motor puede ser
igual a 7 veces la carga inductiva, sin rebasar
el valor máximo de 28 A.
El conmutador satisface los requisitos de
VDE* 0660.
*VDE = Verband Deutscher Elektrotechniker
Instalación
En una bolsa separada, se incluye, junto
con el RT, un conjunto de prensaestopas
Pg13.5.Es necesario instalar el prensaestopas
como se muestra en la fig. 4., para
garantizar el grado de protección del RT,
IP66 (unidades con rearme automático) o
IP54 (unidades con rearme manual).Si no
se utiliza el prensaestopas con un cable,
debería montarse un cegamiento metálico.
El presostato diferencial debe montarse
en un panel de válvulas, o, par ejemplo,
directamente en un compresor. Utilizar los
agujeros de fijación (25).
Si la unidad puede estar sometida
a vibraciones, se montará sobre un
amortiguador elástico.
El producto debe montarse siempre en
posición vertical con el lado LP en la parte
superior y el lado HP en la parte inferior
(según se muestra en la fig. 1).
Conexión eléctrica
Véase figure 5.
START = cierre. STOP = abertura
DIFF = diferencial de contacto fija
Diámetro de cable: 6 – 14 mm
Conectar la tierra con el tornillo de tierra (38).
Tipo
Gama de
presión
diferencial
∆p
[bar]
Rango de
trabajo para
fuelles
LP
[bar]
Difer-
encial
mecáni-
co
[bar]
Presión
de
funcio.
máx. PB
[bar]
RT 260A 0.5 – 4 -1 –18 0.3 22
RT 260A 0.5 – 6 -1 –36 0.5 42
RT 260A 1.5 –11 -1 –31 0.5 42
RT 262A 0.1 –1.5 -1 – 9 0.1 11
RT 265A 1 – 6 -1 –36 0.5 42
RT 260AL 0.5 – 4 -1 –18 0.3 22
RT 262AL 0.1 –1.5 -1 – 9 0.1 11
RT 263AL 0.1 –1.0 -1 – 6 0.05 7
RT 266AL 0 – 0.9 -1 – 6 0.05 7
Pressostati differenziali
*)
Per elenco completo dei refrigeranti approvati,
visitare www.products.danfoss.com ed effettuare
ricerca per i singoli codici, dove i refrigeranti
sono elencati come parte dei dati tecnici.
Dati tecnici
Zona morta, ∆p Nz
RT 260AL: 0.3 bar – 0.9 bar
RT 262AL: 0.1 bar – 0.33 bar
RT 263AL: 0.05 bar – 0.23 bar
RT 266AL: 0.05 bar – 0.23 bar
Max. pressione di prova p' = 1.1 × PB
Temperatura ammessa: -40°C – 70 °C
Carico contatti
Vedere coperchio copri-contatti o fig.3.
Se il carico sui contatti indicato è, ad
Tipo
Differenza
di
pressione
∆p
[bar]
Campo di
funziona-
mento, lato
bassa
pressione
[bar]
Differ-
enziale
mec-
canico
[bar]
Max.
pressione
di eser-
cizio PB
[bar]
RT 260A 0.5 – 4 -1 –18 0.3 22
RT 260A 0.5 – 6 -1 –36 0.5 42
RT 260A 1.5 –11 -1 –31 0.5 42
RT 262A 0.1 –1.5 -1 – 9 0.1 11
RT 265A 1 – 6 -1 –36 0.5 42
RT 260AL 0.5 – 4 -1 –18 0.3 22
RT 262AL 0.1 –1.5 -1 – 9 0.1 11
RT 263AL 0.1 –1.0 -1 – 6 0.05 7
RT 266AL 0 – 0.9 -1 – 6 0.05 7
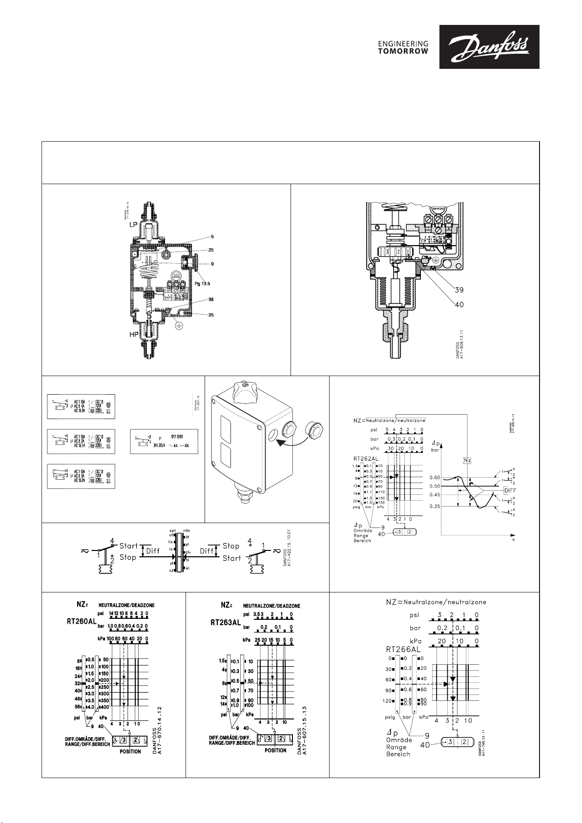
ESPAÑOL Reglaje
Ajustar la presión diferencial requerida con
el disco de reglaje (5) mientras se observe el
valor marcado en la escala (9).
Buscar la zona neutra requerida para RT
260AL, RT 262AL, RT 263AL, RT 266AL en
diagrama. El valor de reglaje de la zona neutra
(40) puede ser leido en la escala más
baja del diagrama.
Ejemplo 1
RT 262A con terminales 1 – 4 conectados.
Ajustar la presión diferencial ∆p = 0.5 bar.
El RT 262A abre sus contactos a una presión
diferencial de 0.5 bar y cierra los contactos
a un valor que corresponde a la presión
diferencial + la diferencial de contacto
= 0.5 bar + 0.1 bar = 0.6 bar.
Ejemplo 2
RT 262AL
Presión diferencial requerida ∆p = 0.5 bar.
Zona neutra requerida Nz = 0.25 bar.
Como puede verse en el diagrama, figure 6,
la zona neutra requerida de 0.25 bar se
obtiene ajustando el disco de zona neutra
(40) en 2.5.
Debido a que la diferencial de contacto es de
0.1 bar, las presiones dife-renciales de cierre y
de abertura del conmutador
son:
Presión diferencial de cierre de los contactos
1 – 4 = 0.5 bar + 0.1 bar = 0.6 bar.
Presión diferencial de abertura de los
contactos
1 – 4 = 0.5 bar (= valor ajustado, ∆p).
Presión diferencial de cierre de los contactos
1 – 2 = 0.6 bar – 0.25 bar = 0.35 bar.
Presión diferencial de abertura de los
contactos
1 – 2 = 0.35 bar + 0.1 bar = 0.45 bar.
esempio,10 (4) A, 400 V CA, significa che il
carico collegato dovrà essere rispettivamente
di 10 A max. ohmico e 4 A induttivo a 400
V CA La corrente di corto circuito ammessa
all’aviamento del motore può essere pari a
sette volte il carico induttivo, ma comunque
non superiore a 28 A max.
L’interruttore
risponde alla norma VDE* 0660.
*VDE = Verband Deutscher Elektrotechniker
Installazione
Un set di pressacavo filettato Pg13.5 è
allegto all’RT in una busta a parte. Per
assicurare un grado di protezione per l’RT
di IP66 (unità con reset automatico) o di
IP54 (unità con reset esterno), è necessario
assemblare questo pressacavo come
illustrato in fig. 4. Se questo pressacavo
non è usato con un cavo, un connettore in
metallo deve essere assemblato.
Il pressostato differenziale deve essere
montato a quadro o, ad esempio,
direttamente sul compressore. Utilizzare i fori
di fissaggio (25).
Nel caso di forti vibrazioni, esso
dovrà essere
montato su un tampone antivibrante.
Il prodotto deve essere sempre montato
verticalmente con il lato LP posizionato nella
parte superiore e il lato HP posizionato nella
parte inferiore (come mostrato nella figura 1).
Collegamenti elettrici
Vedi fig. 5.
START = chiude. STOP = apre
DIFF = differenziale meccanico fisso
Diametro cavi: 6 – 14 mm
Collegare a terra il terminale (38).
Taratura
La taratura della pressione differenziale è
ottenuta ruotando la ghiera di taratura (5)
fino a quando l’indice non coincide con il
valore desiderato sulla scala (9).
Per trovare il valore di zona morta desiderato,
relativo ai pressostati RT 260AL, RT 262AL,
RT 263AL, RT 266AL, utilizzare i diagrammi.
Sulla scala inferiore riportata sul diagramma si
potrà rilevare il valore di
taratura della zona morta (40).
Esempio 1
RT 262A con morsetti 1 – 4 collegati.
Tarare la pressione differenziale ∆p = 0.5 bar.
L’RT 262A apre il contatto ad una pressione
differenziale di 0.5 bar e lo chiude a 0.5 bar +
0.1 bar = 0.6 bar, corrispondente a pressione
differenziale + differenziale meccanico.
Esempio 2
RT 262AL
Pressione differenziale ∆p = 0.5 bar.
Zona morta Nz richiesta = 0.25 bar.
Come si può rilevare dal diagramma di fig. 6.,
la zona morta richiesta, con valore 0.25 bar,
viene ottenuta posizionando la ghiera di
regolazione zona morta (40) su 2.5.
Poichè il differenziale meccanico è di
0.1 bar le pressioni differenziali di apertura e
chiusura dell’interruttore saranno le seguenti:
Pressione differenziale di chiusura dei contatti
1 – 4 = 0.5 bar + 0.1 bar = 0.6 bar.
Pressione differenziale di apertura dei contatti
1 – 4 = 0.5 bar (= valore tarato, ∆p).
Pressione differenziale di chiusura dei contatti
1 – 2 = 0.6 bar – 0.25 bar = 0.35 bar.
Pressione differenziale di apertura dei contatti
1 – 2 = 0.35 bar + 0.1 bar = 0.45 bar.
ITALIANO