
Audio - Kit
9
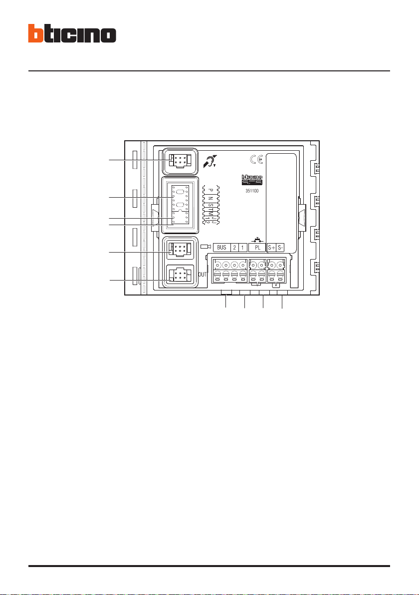
• Modulo fonico 351100 - Vista retro
• Speaker module 351100 - Back view
• Module phonique 351100 - Vue postérieure
• Audiomodul 351100 - Rückseite
• Módulo fónico 351100 - Vista posterior
• Geluidsmodule 351100 - Achteraanzicht
• Módulo fônico 351100 - Vista traseira
7
5
8
6
9
10
34 12
1. Collegamento elettroserratura (18 V; 4 A impulsivi
250 mA di mantenimento su 30 Ohm max)
2. Collegamento pulsante apriporta locale
3. Collegamento alimentazione locale
4. Collegamento Bus
5. Connettore per il collegamento ai moduli
successivi
6. Connettore per il collegamento del modulo
telecamera N&D
7. J2 estrarre per alimentazione locale
8. J1 estrarre per attivare due colonne di pulsanti di
chiamata
9. Sede conguratori
10. Connettore per il collegamento del modulo
teleloop
1. Branchement serrure électrique (18 V; 4 A à
impulsions 250 mA de maintien sur 30 Ohm
max.)
2. Branchement bouton d’ouverture porte local
3. Branchement alimentation locale
4. Branchement Bus
5. Connecteur de branchement aux modules
suivants
6. Connecteur de branchement du module caméra
N&D
7. J2 extraire pour alimentation locale
8. J1 extraire pour activer deux colonnes de
boutons d’appel
9. Logement congurateurs
10. Connecteur de branchement du module Teleloop
1. Anschluss und Steuerung elektr. Türschloss (18 V
4 A Impuls - 250 mA Haltestrom bei 30 Ohm max)
2. Anschluss Türöner lokal
3. Anschluss lokale Speisung
4. BUS - Anschluss
5. Verbinder für Anschluss an weitere Tastenmodule
6. Verbinder für Anschluss Kameramodul N&D
7. J2 entfernen für lokale Speisung
8. J1 entfernen, um zwei Spalten Ruftasten zu
aktivieren
9. Sitz für Konguratoren
10. Verbinder für Anschluss Teleloop-Modul
1. Electric door lock connection (18 V – 4 A impulsive
– 250 mA maintenance on 30 Ohm maximum)
2. Local door lock release pushbutton connection
3. Local power supply connection
4. BUS connection
5. Connector for the connection to subsequent modules
6. Connector for the connection of the N&D camera
module
7. J2 remove for local power supply
8. J1 remove to activate two columns of call pushbuttons
9. Congurator socket
10. Connector for the connection of the inductive
teleloop