American DJ®USER INSTRUCTIONS
SC-8FC SYSTEM
8 CHANNEL LOW VOLTAGE SWITCH SYSTEM
MAIN FEATURES:
• INDIVIDUAL CHANNEL SWITCHES & FLASH ON BUTTONS. MASTER ON/OFF.
• LIGHTED SWITCHES
• 19” RACK MOUNT SWITCH CENTER WITH BUILT-IN POWER SUPPLY.
• 15 AMPS TOTAL POWER CAPACITY(PER RELAYPACK).
• SYSTEM INCLUDES: 1 - SC-8FC, 1 - SC-RP8, 1 - SC-EX25
• MAYLINK UP TO 2 RP-8 RELAYPACKS ON 1 SC-8FC.
• INCLUDES SWITCH FOR CC-2016 & OUTPUT TO OPTIONAL CC-2016 CHASE
CONTROLLER (SOLD SEPERATELY).
• 12V SIGNAL OUTPUT FROM SWITCH CENTER.
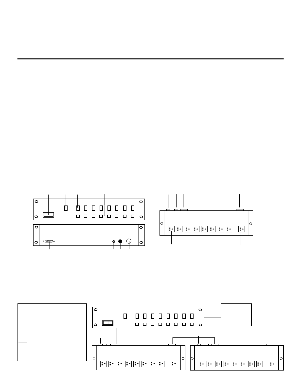
CONTROLS AND COMPONENTS:
1. MASTER ON/OFF SWITCH.
2. INDIVIDUAL CHANNEL SWITCHES.
3. CONTROL SWITCH FOR CC-2016, FEATURES “ALLON”, “BLACKOUT”, & “ALL OFF” (only operational when using
the CC-2016™ chase controller).
4. FLASH ON BUTTON FOR EACH INDIVIDUALCHANNEL.
5. 1/4” STEREO OUTPUT TO CC-2016.
6. 9 PIN LINE OUT CONNECTOR.
7. 12V POWER SUPPLYINPUT CONNECTOR.
8. FUSE
9. CHANNEL 1-8 110V SWITCHED SOCKETS.
10. UNSWITCHED 110V SOCKETFOR CONSTANTON ITEM OR LINKING AC
TO ANOTHER RELAY PACK.
11. 9 PIN LINE OUTPUTFOR LINKING PACKS.
12. 9 PIN LINE INPUT FROM SC-8FC OR FROM ANOTHER SC-RP8.
13. 15 AMPCIRCUIT BREAKER.
14. A/C CORD AND PLUG.
© AMERICAN DJ® LOS ANGELES, CA90058
American DJ®
MODEL: SC-8FC MASTER 1 2 3 4 5 6 7 8
American DJ®
MODEL: SC-8FC MASTER 1 2 3 4 5 6 7 8
1 2
65 8 7 9
414 13 12 11
3
RELAYPACK MODEL: SC-RP8
American DJ®
CH-8 CH-7 CH-6 CH-5 CH-4 CH-3 CH-2 CH-1
10
LINE IN LINE OUT
RELAYPACK MODEL: SC-RP8
American DJ®
CH-8 CH-7 CH-6 CH-5 CH-4 CH-3 CH-2 CH-1
LINE IN LINE OUT
RELAYPACK MODEL: SC-RP8
American DJ®
CH-8 CH-7 CH-6 CH-5 CH-4 CH-3 CH-2 CH-1
LINE IN LINE OUT
SAMPLE SYSTEM:
CC-2016
A/C A/C
Specifications:
Model - SC-8FC SYSTEM
Maximum load: 15 amps or 1800
watts per relay pack (using
separate circuit for each).
Size: SC-8FC - 19" x 2" x 2"
SC-RP8 - 19" x 5" x 2"
System weight: 13lbs.