
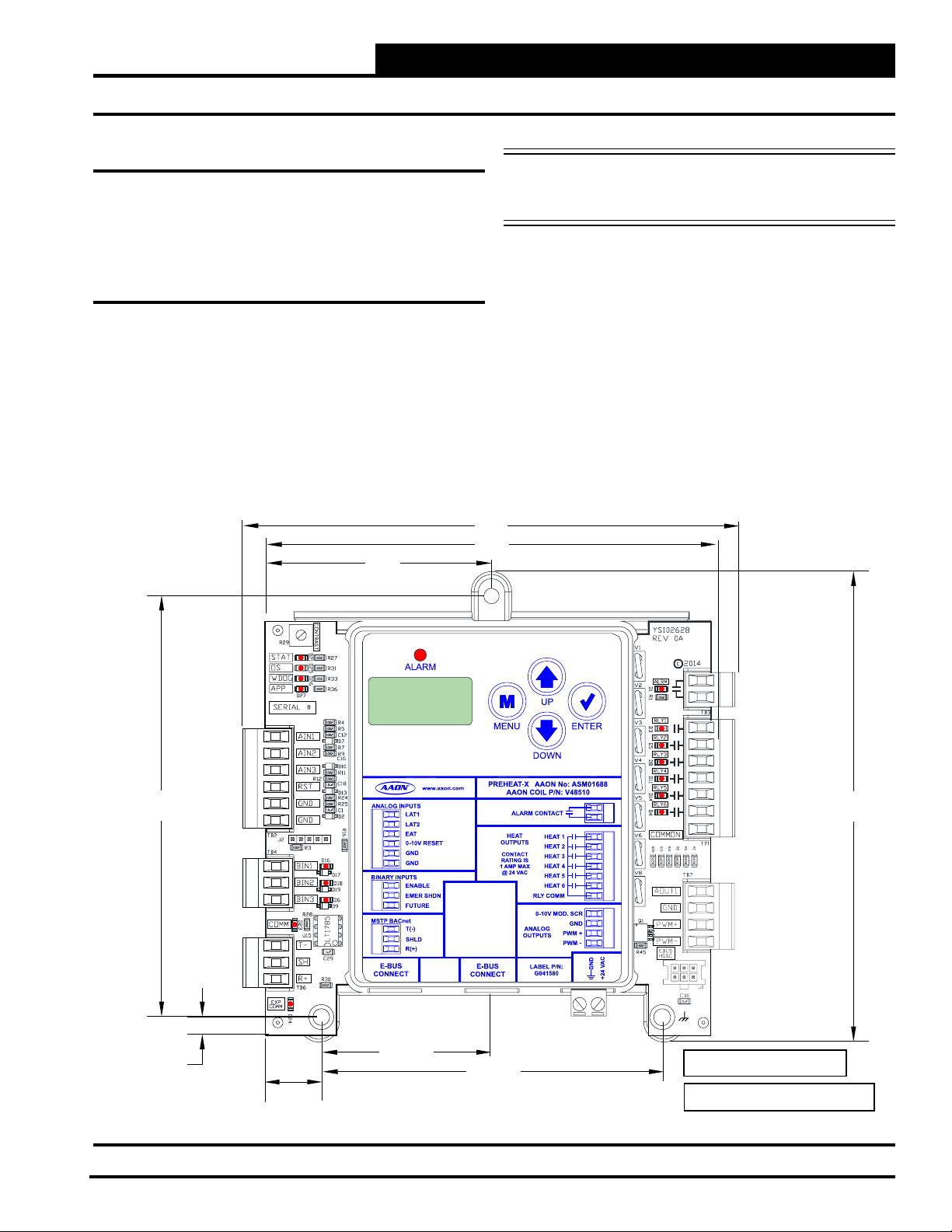
6PREHEAT-X Technical Guide
Wiring
The modules must be connected to an 18-30 VAC power source
of the proper size for the calculated VA load requirements. All
transformer sizing should be based on the VA ratings listed in
Table 1, this page.
NOTE: If the temperature at the PREHEAT-X is below
-22ºF (-30ºC), the display refresh rate could be
less responsive.
WARNING: When using a single transformer to power
more than one controller or expansion
module, the correct polarity must always
be maintained between the boards. Failure
to observe correct polarity will result in
damage to the AAON unit controller,
PREHEAT-X, and any associated module.
Please carefully read and apply the following information
when wiring the AAON unit controller, PREHEAT-X and any
associated module.
1. All wiring is to be in accordance with local and
national electrical codes and specications.
2. All 24 VAC wiring must be connected so that all
ground wires remain common. Failure to follow this
procedure can result in damage to the controller and
connected devices.
3. Minimum wire size for 24 VAC wiring should be
18-gauge.
4. Minimum wire size for all sensors should be 24-gauge.
Some sensors require two-conductor wire and some
require three-or four-conductor wire.
5. Minimum wire size for 24 VAC thermostat wiring
should be 22-gauge.
6. Be sure that all wiring connections are properly
inserted and tightened into the terminal blocks. Do
not allow wire strands to stick out and touch adjoining
terminals which could potentially cause a short circuit.
7. When communication wiring is to be used to
interconnect AAON unit controllers together or to
connect to other communication devices, all wiring
must be plenum-rated, minimum 18-gauge, two-
conductor, twisted-pair with shield. AAON can supply
communication wire that meets this specication and
is color coded for the network or local loop. Please
consult your AAON distributor for information. If
desired, Belden #82760 or equivalent wire may also
be used.
8. Before applying power to the AAON unit controller,
PREHEAT-X, and any associated modules, be sure
to recheck all wiring connections and terminations
thoroughly.
Powering Up
When the controller and modules are rst powered up, the
POWER LED should light up and stay on continuously. If it does
not light up, check to be sure that you have 24 VAC connected
to the controller, that the wiring connections are tight, and that
they are wired for the correct polarity. The 24 VAC power must
be connected so that all ground wires remain common. If after
making all these checks, the POWER LED does not light up,
please contact AAON Controls Support for assistance.
Control
Device
Voltage
VA Load
Operating
Temperature
Humidity
(Non-
Condensing)
PREHEAT-X
18-30 VAC 18 -22°F to 158°F*
-30ºC to 70ºC* 0-95% RH
Inputs
Resistive Inputs require 10KΩ
Type III Thermistor
24 VAC Inputs provide 4.7KΩ
Load
Outputs Relay Outputs: 1 amp
maximum per output.
Table 1: PREHEAT-X Electrical and Environmental
Requirements
WIRING
Important Wiring Considerations