
2
CONTENTS
11 Commissioning the appliance.......................... 19
12 Instructions to the user .................................... 20
13 Inspection an Service .................................... 22
14 Replacement of parts ...................................... 23
15 Fault Fin ing Co es ........................................ 25
16 Short parts list ................................................. 26
17 Conversion instructions ................................... 28
18 Trouble Shooting Gui e ................................... 29
19 Functional Flow Diagrams ............................... 30
1 Installation regulations ....................................... 2
2 General information ........................................... 2
3 Technical Data ................................................... 5
4 Siting the appliance ........................................... 7
5 Siting the flue terminal ....................................... 9
6 Air supply........................................................... 9
7 Seale primary systems .................................. 10
8 Hot water supply .............................................. 12
9 Electrical .......................................................... 12
10 Installation ....................................................... 14
1.10 The advice and instructions given in this document
covers, as far as possible, the foreseeable situations which may
arise. Contact Worcester Heat Systems Technical nformation
Department, Telephone: 0990 266241, for advice on specific
installations.
2 General Information
2.1 This appliance is not suitable for external installation.
2.2 The appliance controls are set to provide a maximum
output of 20 kW for central heating and 23 kW for domestic hot
water.
2.3 The control circuit provides direct burner ignition. A pilot
is not used.
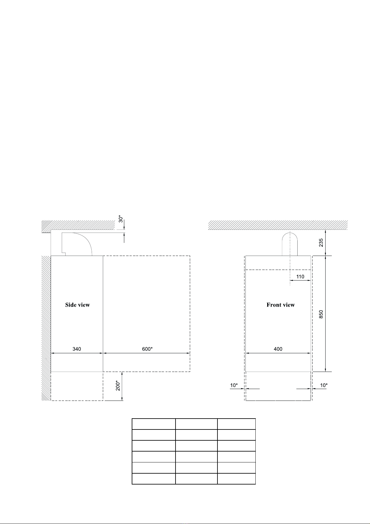
2.4 PR NC PAL APPL ANCE COMPONENTS. See Fig. 1.
A low thermal capacity Gas to Water heat exchanger.
A Water to Water heat exchanger to provide domestic hot water.
Fully modulating controls in the domestic hot water modes of
operation, range rated for Heating.
An expansion vessel, pressure gauge and pressure relief valve.
A by-pass for the central heating system.
Temperature safety cut-out controls.
A water flow regulator.
A standard telescopic horizontal flue assembly giving flue lengths
from 135mm to 615mm.
Optional extra extension flue kits to provide for flue lengths up
to 4000mm.
Optional vertical flue kit to provide for flue lengths up to 4000mm
including vertical terminal.
Optional 45° and 90° flue bends.
Optional facia mounted electro-mechanical programmer.
2.5 ELECTR CAL SUPPLY
Mains supply: 230V ~, 50 Hz.
External fuse: 3A.
nternal fuses: T2.5A, 250V and T2.0A, 250V.
2.6 GAS SUPPLY
Check the data plate (located on the inner cover of the appliance)
to ensure the appliance has been set up for the correct gas
supply. The appliance can be set up for either of the following
gases: Natural gas (G20) or Propane (G31). A conversion kit
including instructions is available to change the appliance from
one gas to the other.
The boiler requires 2.7m3/h (100ft3/hr) of natural gas (G20) or
1.1m3/hr (40ft3/hr) (2.0 kg/h) of propane gas (G31). The gas
meter and supply pipes must be capable of supplying this
quantity of gas in addition to the demands of any other
appliances being served. The meter governor should deliver a
dynamic pressure of 20mbar (8in wg) for natural gas or 37mbar
(14.4 in wg) for propane at the inlet to the appliance.
1 Installation Regulations
1.1 Gas Safety ( nstallation and Use) Regulations, 1998: t
is the law that all gas appliances are installed by a competent
person in accordance with the above regulations. Failure to
install appliances correctly could lead to prosecution. t is in
your interest, and that of safety, to ensure compliance with the
law.
1.2 The manufacturers notes must not be taken, in any way,
as overriding statutory obligations.
1.3 The compliance with a British Standard or European
Norm does not, of itself, confer immunity from legal obligations.
1.4 The installation of the appliance must be in accordance
with the relevant requirements of the current Gas Safety
( nstallation and Use) Regulations, current EE Wiring
Regulations (BS7671), Building Regulations, Building Standards
(Scotland) and Local Water Byelaws.
1.5 The installation should be in accordance with the
following British Standards unless otherwise indicated:
BS 6798:1987 Specification for installation of gas fired hot water
boilers of rated input not exceeding 60 kW [gross].
BS 5449:1990 Central Heating for Domestic Premises.
BS 5546:1990 nstallation of gas hot water supplies for domestic
purposes.
BS 5440:1:1990 Flues and Ventilation for gas appliances of rated
input not exceeding 60 kW [gross]: Flues.
BS 5440:2:1989 Flues and Ventilation for gas appliances of rated
input not exceeding 60kW [gross]: Air Supply.
BS 6891:1988 nstallation of low pressure gas pipework
installations up to 28mm (R1).
BS 6700: Domestic water supply in buildings.
BS 7593: Water treatment in domestic heating systems.
1.6 To ensure that the installation will perform to the highest
standards, the system and components should conform to any
other relevant Standards.
1.7 The appliance and/or components conform, where
applicable, to the Essential Requirements of the Gas Appliance
Directive, the Boiler Efficiency Directive, the EMC Directive and
the Low Voltage Directive.
1.8 n accordance with the requirements of COSSH the
appliance does not contain any substances which are harmful
to health.
1.9 Product liability regulations indicate that, in certain
circumstances, the installer can be held responsible, not only
for mistakes on his part but also for damage from the use of
faulty materials. We advise that, to avoid any risk, only quality
approved branded fittings are used.