
Electric Cooktop Specifications 6
Electrical Requirements
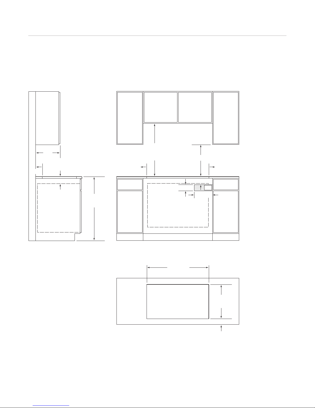
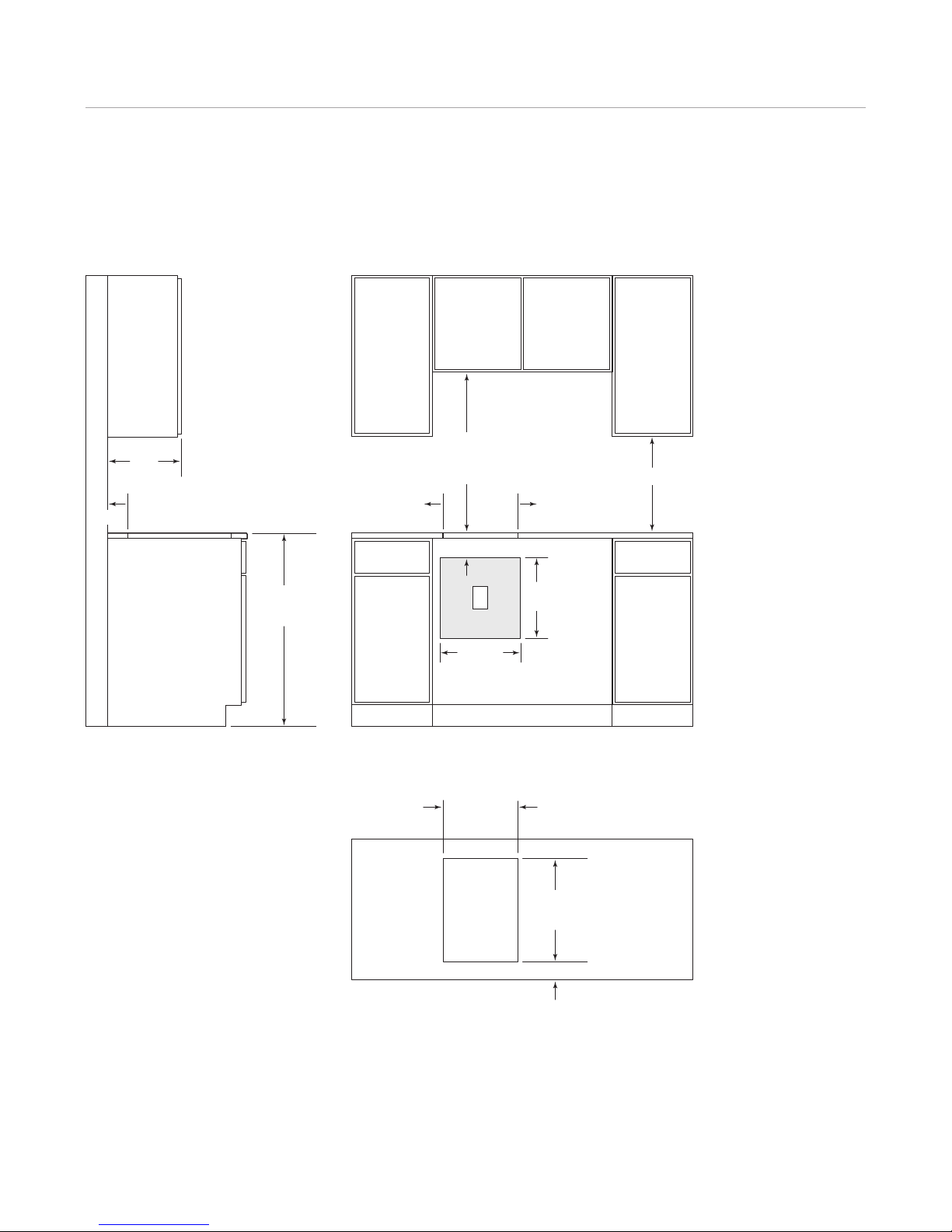
Wolf electric cooktops have a 4' (1.2 m) flexible conduit
and require a separate, grounded 3-wire electrical supply
with its own circuit breaker. ocate the electrical supply
within the shaded area shown in the installation illustration
for your specific model on the following pages.
M DEL CT15E/S
•Power supply: 240/208 V AC, 60 Hz, 20 amp service.
•Max connected load: 3.7 kW at 240 V, 2.8 kW at 208 V.
M DEL CT30E-208/S
•Power supply: 208 V AC, 60 Hz, 40 amp service.
•Max connected load: 7.9 kW.
M DELS CT30E/S AND CT30EU
•Power supply: 240/208 V AC, 60 Hz, 40 amp service.
•Max connected load: 8.1 kW at 240 V, 6.1 kW at 208 V.
M DELS CT36E/S AND CT36EU
•Power supply: 240/208 V AC, 60 Hz, 50 amp service.
•Max connected load: 10.5 kW at 240 V, 7.9 kW at 208 V.
IMP RTANT N TE: You must follow all National Electrical
Code regulations. In addition, be aware of local codes and
ordinances when installing your service.
IMP RTANT N TE: Except for model CT30E-208/S,
performance may be compromised if the electrical supply
is less than 240 volts.
IMP RTANT N TE: For electrical installation, attach the
conductors to the residence wiring in accordance with
National Electrical Codes and all state, provincial, munici-
pal and local codes.
This appliance must be installed in accordance with
National Electrical Codes, as well as all state, municipal
and local codes. The correct voltage, frequency and
amperage must be supplied to the appliance from a dedi-
cated, grounded circuit which is protected by a properly
sized circuit breaker or time delay fuse. The proper
voltage, frequency and power ratings are listed on the
product rating plate, located on the underside of the
cooktop. Refer to the illustration on page 3 for location of
the rating plate.
The complete appliance must be properly grounded at
all times when electrical power is applied.
Do not ground the appliance with the neutral (white)
house supply wire. A separate ground wire must be
utilized.
If aluminum house supply wiring is utilized, splice the
appliance copper wire to the aluminum house wiring
using special connectors design and agency certified
for joining copper and aluminum. Follow the connector
manufacturer's recommended procedure carefully.
Improper connection can result in a fire hazard.