VIZULO Eagle 3 Guide de l'utilisateur

Mounting instruction Montāžas instrukcija M
08-02-2022
SIA VIZULO
Laucu Lejas, Iecava, Latvia, LV-3913
www.vizulo.com
10
IEC
EN 60598 IP66
198 - 264 V
AC
min
− 40°C
max
+ 50°C
IK09
5
8
1/8
4
6
3
20
IK10
VIZULO Eagle 3 heads LED ood light | Standart version

Mounting bracket
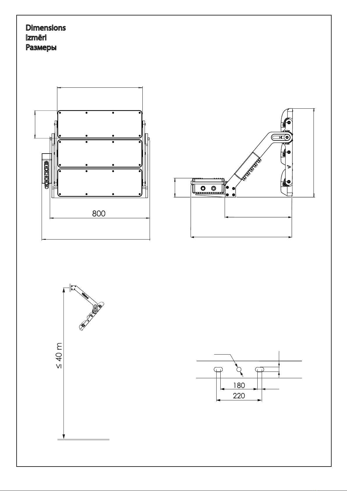
682
225
534
806
152
Dimensions
Izmēri
Ø21
SCx = 0.23m
2/8
22
20
705
868

3/5
WARNING!
• Do not touch LED modules!
• Do not put any tools or other items on LED modules!
• In case any LED is physically damaged (example shown below) the warranty is void.
BRĪDINĀJUMS!
• Neaiztikt LED moduus!
• Nenovietot instrumentus vai citus priekšmetus uz LED moduiem!
• Mehānisku LED bojājumu gadījumā (skatīt piemēru zemāk) garantijas apmaia nav spēkā.
!
• LED !
• LED !
• LED (. ) .
3/8
Netto Weight
Neto Svars
432
Luminaire Weight (Kg) 33.1
5.6 / 6.1 / 8.3
Driver Box Weight (Kg)
LED count
Maximal wind load with driver box depending to the angle relative to the ground
0° 15° 30° 45° 60° 75° 90°
SCx,
m²
0.19 0.28 0.37 0.530.520.500.45
Acceptable luminaire mounting angle
relative to the ground.
Unacceptable luminaire mounting - light is not
supposed to be directed at luminaire and it parts.
0°
105° -285° 105° -285°
0°

4/8
6
15N
M8
12
3
M12
10
8
-90°...90°
50N
-105°...105°
25N
5° step!
5° step!
M6
4a
3
5
M4 M4
15N
Driver box may dier
Connection box may dier
4b Mounting hole spacing for mounting the
driver box on a surface
15N
M6
302
160
25N

5/8
6
15N
CG - cable glands, supplied with
luminaire
C - cables, can be supplied upon
request
HC - head cables
5
7
Number of
wires depends
on head count
20
1.6N
Output
Input
DALI
L N DA+ DA- V1+
V2+
V3+ V1-V2-V3-
NTC
NC
LED3
- +
LED2
- +
LED1
- +
Output
AC
Input DALI
DA-
DA+
L1 L2 DA DA V3+
V2+
V1+ V3-V2-V1-
NTC
DA DA
4
3N
Output
Input
DALI
LED1
- +
LED2
- +
LED3
- +
Output
AC
Input DALI
DA-
DA+
DA-
DA+
15N
134
480
134
480
From driver box
From heads
L1+ L1- L2+ L3+ L3-
L2-
35mm
7mm
Ø min = 8 mm
Ø max = 12 mm
DRIVER
BOX
CONNECTION
BOX
Head nr.3
Head nr.2
Head nr.1
Q
Q
Q
HC
HC
HC
LQ
C
C
C
LQ
LQ
LQ
LQ
Wire

LED
Oslon Square
Luxeon 5050
Power
330-1560W
330-1560W
CCT Risk group Remarks
Label required
Label required
Duris S8 330-1560W
Label required
6/8
5
3N
LED1+
LED2+
DA-
LED1-
LED2-
NTC-
NTC+
N
DA+
L
1-10V+
1-10V-
12 Vdc
dc GND
LED
+ -
Output
AC
Input
DALI
DA-
DA+
repeat for
each head
1 Output/DALI/Input cable can connect
up to 4 drivers
For wire connection use terminal block!
MCB/Inrush current table
Standard/High density In-rush current
(peak/dura on) 6A 10A 16A 20A 25A MCB type
Eagle 3 Heads Standart A(2000
s
) 0 1 1 2 2 B,C,D
LED Driver T - 230 Vac
4
Standard/High density In-rush current
(peak/dura on) 10A 16A 20A 25A 32A MCB type
Eagle 3 Heads Standart A(8000
s
) 1 1 2 2 3 B,C
LED Driver D - 230 Vac
25
Standard/High density In-rush current
(peak/dura on) 10A 16A 20A 25A MCB type
Eagle 3 Heads Standart A(2500
s
) 1 1 2 2 B,C,D
LED Driver E- 230 Vac
40

7/8
Energy efficiency class of contained light source(s)
E
E
D
D
D
D
E
E
E
E
F
F
F
F
E
E
F
F
Standard
A
B
C
D
E
F
G
1800
2200 E
2500 E
2700
3000
4000
5000
5700
6500
70 80 90
D
D
C
C
C
C
E
E
D
D
D
F
F
E
E
E
E
F
CRI
CCT
Eco
2200
2700
3000
4000
5000
5700
6500
70 80 90
CRI
CCT
E

Terms of use and maintenance
Before luminaire is turned on, it should be mounted according with this mounting instruction or any other applicable regulations.
Mounting instructions
• The warranty of luminaire does not apply, if the mounting of luminaire has been performed in precipitation (rain, snow, hail).
• The warranty of luminaire does not apply, if a control system unauthorized by VIZULO or an inapplicable LED driver has been used
to drive the luminaire.
• The warranty of luminaire does not apply, if it has been used in an unsuitable ambient temperature or has been supplied by
• The warranty of luminaire does not apply, if the LED driver program has been changed in any way.
• The warranty of the luminaire does not apply, if the logged history data of the LED driver has been deleted without the permission
of VIZULO.
up), or it has been completely submerged under water.
Safety instructions
requirements.
To prevent any accidents person installing the luminaire must follow national safety requirements and following instructions:
• The label containing technical parameters of the luminaire has to be studied before the work on it has begun.
• Any luminaire build or design changes are prohibited.
• The luminaire must be used in good technical condition and according with this instruction.
• Only VIZULO authorized spare parts and accessories can be used to repair the luminaire.
Maintenance and repair
Luminaire has to be disconnected from electrical grid before it is opened and/or repaired!
• The person working with the luminaire must follow national regulations and legislations that apply to maintenance and testing of
electrical or electronic appliances.
• The luminaire may need to be cleaned depending on its environment. Only a damp cloth or a sponge may be used to clean the
luminaire. Use only household detergents diluted by water.
• Only VIZULO authorized spare parts may be used for the luminaire.
• Instruction for changing spare parts must be requested from VIZULO and studied before the repair is attempted.
• LED modules, lens and LED drivers can be changed on an installed luminaire, but it is advised to perform this task indoor to avoid
water entering the luminaire.
• Spare parts (lens, LED modules and drivers) should be ordered from the information available on the luminaire label.
Ekspluatācijas uzsākšana
Pirms gaismeka ieslēgšanas, pārbaudīt tā atbilstību pareizai darbībai un veikt uzstādīšanu atbilstoši šīs montāžas un ekspluatācijas
instrukcijas un citiem piemērojamiem noteikumiem.
Montāžas instrukcijas
Veicot gaismeka montāžu, ir stingri jāievēro montāžas instrukcijā iekautā informācija un noteikumi:
• Gaismeka garantija nav spēkā, ja gaismeki tiek montēti nokrišu (lietus, sniega, krusas) laikā.
• Gaismeka garantija nav spēkā, ja tika izmantotas VIZULO neautorizētas vadības sistēmas vai tika izmantots neatbilstošs barošanas
bloks.
• Gaismeka garantija nav spēkā, ja tas tika ekspluatēts neatbilstošos temperatūras un elektrības pieslēguma apstākos.
• Gaismeka garantija nav spēkā, ja ir veiktas barošanas bloku programmas iestatījumu izmaias vai tā tikusi dzēsta neinformējot
VIZULO.
• Gaismeka garantija nav spēkā, ja tikuši dzēsti vai mainīti barošanas bloka vēstures ieraksti.
• Gaismeka garantija nav spēkā, ja tas tika uzstādīts un ekspluatēts neatbilstošos montāžas leos, tika uzstādīts otrādi (ar stiklu uz
augšpusi) vai tika pilnīgi iegremdēts ūdenī.
Drošības instrukcijas
Lai novērstu nelaimes gadījumu rašanos, ievērot valsts drošības noteikumus un šīs drošības instrukcijas.
• Ir jāiepazīstas un jāievēro tehniskie parametri, kas ir norādīti gaismeka marējumā.
• Ir aizliegts veikt gaismeka konstrukcijas un dizaina izmaias.
• Gaismeklis ir jāekspluatē labā tehniskā stāvoklī un atbilstoši šīm instrukcijām.
• Gaismeka remontam ir atauts izmantot tikai VIZULO autorizētas detaas un piederumus.
Apkope, apkalpošana un remonts
Atvienojiet gaismekli no elektrotīkla pirms tā atvēršanas vai veicot remontu!
• Ievērojiet nacionālos noteikumus un valsts tiesību aktus, kas ir piemērojami elektrisko aparātu uzturēšanai, apkalpošanai un
testēšanai.
• Atkarībā no vides apstākiem gaismekli var būt nepieciešams tīrīt. Tīrīšanai izmantojiet tikai mitru lupatiu vai sūkli. Izmantojiet tikai
ierasto sadzīves mazgāšanas šidrumu atšaidītu ar ūdeni.
• Izmantojiet tikai VIZULO autorizētas oriinālās rezerves daas.
• Lai kvalitatīvi veiktu rezerves dau nomaiu, ir jāpieprasa un jāiepazīstas ar VIZULO izstrādātām rezerves dau nomaias instrukcijām.
• Gaismas diodes, lēcas un barošanas bloki var tikt nomainīti uz vietas, bet lai izvairītos no ūdens iekūšanas to ir ieteicams veikt telpās.
• Lūdzu pasūtīt jaunu LED moduli, lēcas vai barošanas bloku, izmantojot informāciju gaismeka marējumā.
8/8
Table des matières
Autres manuels VIZULO Projecteur






















