
Viale Vicenza, 14
36063 Marostica VI - Italy
www.vimar.com
49400504B0 01 1804
02662
RAEE - Informazione agli utilizzatori
If the crossed-out bin symbol appears on the equipment or packaging, this means the
product must not be included with other general waste at the end of its working life. The
user must take the worn product to a sorted waste center, or return it to the retailer when
purchasing a new one. Products for disposal can be consigned free of charge (without any
new purchase obligation) to retailers with a sales area of at least 400 m2, if they measure
less than 25 cm. An efficient sorted waste collection for the environmentally friendly dispo-
sal of the used device, or its subsequent recycling, helps avoid the potential negative ef-
fects on the environment and people’s health, and encourages the re-use and/or recycling
of the construction materials.
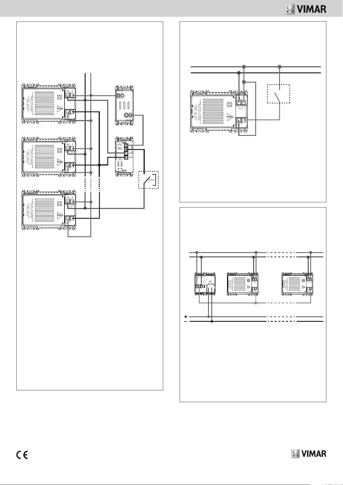
CONNECTIONS.
• Depending on the chosen operating mode, connect the appliance to the mains power
supply as shown in the figures below.
• Select the lamp operating time:
- 1h Operating time:
connected to L (Fig. 4 and 5)
- 3h Operating time:
not connected (Fig. 6)
• For the parallel operation of several lamps, connect terminal S with the pilot signal from
a single dimmer (Fig. 4 and 6).
INSTALLATION.
• The lamp does not have a mechanical circuit breaker in the main circuit and so is not
galvanically separated. The plastic box ensures double isolation.
• The appliance is supplied with the batteries disconnected.
Before wiring the lamp insert the batteries into the battery compartment according to
the marked polarity. Make the connection with a dead electrical system.
INSTALLATION RULES.
• Installation should be carried out by qualified personnel in compliance with the current
regulations regarding the installation of electrical equipment in the country where the
products are installed.
• It is to be used in dry, not dusty conditions.
• The dimmer connection should be made together with a fuse carrier with a fuse with a
high breaking capacity type F2.5AH250V as shown in the diagrams.
• Maximum length of cables connecting the dimmer and lamp: 100 m
CHANGING BATTERIES.
The replacement must only be made by expert personnel.
The appliance contains three rechargeable batteries art. 00908. Prior to replacement, cut
off power from the mains supply and then follow the instructions given in Fig. 2.
Never use non-rechargeable batteries. This is to avoid the risk of them exploding.
WARNING!
Dispose of batteries in the specific differentiated collection bins.
STANDARD CONFORMITY.
LV directive. Standards EN 60598-2-2, EN 62384, EN 62471.
EMC directive. EN 61547, EN 61000-3-2, EN 61000-3-3, EN 55015.
Photobiological safety: Risk group 1 (low risk) in accordance with EN 62471.
Lampe LED variable 230 V~ 50 Hz, commande par variateur MAÎTRE mul-
ticharge ou par interrupteur ON-OFF, dispositif automatique de secours,
trois batteries rechargeables remplaçables AAA 1,2 V, autonomie 1/3 h - 3
modules. À compléter avec la platine Eikon, Arké ou Plana.
CARACTÉRISTIQUES.
• Tension d'alimentation : 230 V~ 50Hz
• Consommation : 2,5 W, 25 mA, λ=0,4 C
• Flux lumineux : 50 lm
• 3 batteries rechargeables Ni-MH AAA HR03 1,2 V 800 mAh
• Temps de recharge de la batterie : 24 heures
• Autonomie : 1-3 heures à sélectionner
• Flux lumineux de secours :
- 1 h d'autonomie : 50 lm
- 3 h d'autonomie : 15 lm
• Température couleur 5000 °K
• Lampe commandée par variateur universel Vimar
• Possibilité de brancher jusqu'à 10 lampes commandées par un seul variateur
• LED rouge de signalisation d'anomalies
• Dispositif de recharge des batteries à courant constant
• Dispositif de protection contre la décharge excessive de la batterie
• Appareil de classe II
FONCTIONNEMENT
• La lampe peut être pilotée de la façon suivante :
-Avec interrupteur ON/OFF entre phase et synchronisme.Commande ON/OFF à inten-
sité 0-100% (fig. 5).
-Avec variateur MAÎTRE universel Vimar configuré en mode coupure de phase LE art.
20135 -19135-14135 e art. 20136-19136-14136 (fig. 4).
Commande ON/OFF et réglage de la luminosité de 0 à 100% (consulter la notice d'ins-
tructions du variateur MAÎTRE 1 module).
Ne pas connecter à un variateur classique à coupure de phase
-Avec les dispositifs By-me (fig. 6).
Commande ON/OFF et réglage de la luminosité de 0 à 100% (consulter le manuel de
la centrale By-me).
• La lampe remplit le rôle d'éclairage auxiliaire en cas d'absence de tension réseau.
• La recharge de la batterie se fait en mode continu sur la tension du réseau.
RACCORDEMENTS.
• Selon le mode de fonctionnement choisi, brancher l'appareil au réseau électrique de
l'habitation comme le montrent les figures ci-dessous.
• Sélectionner l'autonomie de la lampe :
- 1 h d'autonomie:
branchée à L (fig. 4 et 5)
- 3 h d'autonomie:
non branchée (fig. 6)
• Pour faire fonctionner plusieurs lampes en parallèle, brancher la borne S au signal de
pilotage provenant d'un seul variateur (fig. 4 et 6).
INSTALLATION.
• La lampe est dépourvue de coupure mécanique sur le circuit principal et n'assure pas
l'isolation galvanique du dispositif. Le boîtier en plastique garantit une double isolation.
• L’appareil est livré avec les batteries débranchées. Avant de procéder au câblage de la
lampe, installer les batteries dans leur logement en respectant les polarités. Procéder
au raccordement sur le circuit électrique sans tension.
RÈGLES D’INSTALLATION.
• L’installation doit être confiée à des personnel qualifiés et exécutée conformément aux
dispositions qui régissent l’installation du matériel électrique en vigueur dans le pays
concerné.
• S’utilise dans des endroits secs et non poussiéreux.
• Brancher le variateur à un porte-fusible avec fusible à haut pouvoir de coupure
F2,5AH250V voir schémas.
• Longueur maximum des câbles de liaison entre le variateur et la lampe : 100 m
REMPLACEMENT DES BATTERIES.
Le remplacement est réservé exclusivement à un technicien compétent.
L’appareil contient trois batteries rechargeables art. 00908 ; avant de les remplacer,
mettre la ligne hors tension puis suivre les indications de fig. 2.
N’utiliser sous aucun prétexte des batteries non rechargeables pour éviter tout
risque d’explosion.
ATTENTION !
Mettre les batteries au rebut dans les conteneurs spécifiques de collecte dif-
férenciée.
CONFORMITÉ AUX NORMES.
Directive BT. Normes EN 60598-2-2, EN 62384, EN 62471.
Directive CEM. EN 61547, EN 61000-3-2, EN 61000-3-3, EN 55015.
Sécurité photobiologique: Groupe de risque 1 (risque faible) conformément à EN
62471.
ÉTAT DE L'APPAREIL
D'ÉCLAIRAGE LED ROUGE REMARQUES
Fonctionnement normal Éteinte Aucune alarme
Anomalie Allumée Panne générale de l'appareil d'éclairage
Batteries défectueuses Clignotante Batterie à remplacer
DEEE - Informations pour les utilisateurs
Le symbole du caisson barré, là où il est reporté sur l’appareil ou l’emballage, indique
que le produit en fin de vie doit être collecté séparément des autres déchets. Au terme
de la durée de vie du produit, l’utilisateur devra se charger de le remettre à un centre de
collecte séparée ou bien au revendeur lors de l’achat d’un nouveau produit. Il est possible
de remettre gratuitement, sans obligation d’achat, les produits à éliminer de dimensions
inférieures à 25 cm aux revendeurs dont la surface de vente est d’au moins 400 m2. La
collecte séparée appropriée pour l’envoi successif de l’appareil en fin de vie au recyclage,
au traitement et à l’élimination dans le respect de l’environnement contribue à éviter les
effets négatifs sur l’environnement et sur la santé et favorise le réemploi et/ou le recyclage
des matériaux dont l’appareil est composé.