B. Accessing the Programming Mode
Step 1. Set DIP switch 2 to ON for the module being programmed.
Step 2. Come off-hook on the observing phone and dial a ✱.
Step 3. Two beeps will be heard. (Modules not being programmed - status LED’s will turn off)
Step 4. When finished programming, hang-up and set DIP switch 2 to OFF.
Note: For multi-module systems, program each module separately. The status LED for the module being programmed
will remain lit, while all other module’s LEDs will turn off.
C. Setting the Number of Digits (for Dial Up Codes)
The dial up codes are factory set to two digits (01-24). Each SO-24A in a multi-module configuration needs to be pro-
grammed with the same number of digits for all dial up codes. To program the number of digits, use the chart below:
To Program...
... two digit dial up codes
... three digit dial up codes
... four digit dial up codes
Step 2:
Enter digits: 2 # 00
Enter digits: 3 # 00
Enter digits: 4 # 00
Step 1:
Access Programming as shown in section B
Access Programming as shown in section B
Access Programming as shown in section B
Important: All SO-24A’s in a system MUST be programmed with the same number of dial up code digits.
D. Dial Up Codes
The SO-24A is factory set with the dial up codes for locations 1-24 factory set to 01-24. The dial up codes may be pro-
grammed to match the extension number of the line/station being observed or any other numbering scheme as long as
all access codes are the same length (see section C). Important: Each module must to be programmed with its own
unique set of dial up codes.
E. Talk Assist
The talk assist feature can be activated any time a location is being observed and a “✱” is dialed at the observing phone.
To prevent accidental talk assist, the feature may be disabled by entering ✱0while in the programming mode (see sec-
tion B). Enter ✱1to enable talk assist.
F. Quick Programming Guide
To set dial up codes to two digits (factory setting) .........................................
To set dial up codes to three digits ................................................................
To set dial up codes to four digits ..................................................................
To program dial up codes .............................................................................
To enable talk assist option (factory setting) .................................................
To disable talk assist .....................................................................................
To set all programming features and dial up codes to factory settings .........
2
3
4
2-4 digits
✱1
✱0
###
#00
#00
#00
#01 - #24
Enter Digits
then
then
then
then
- then - Enter Memory Location
O
Op
pe
er
ra
at
ti
io
on
n
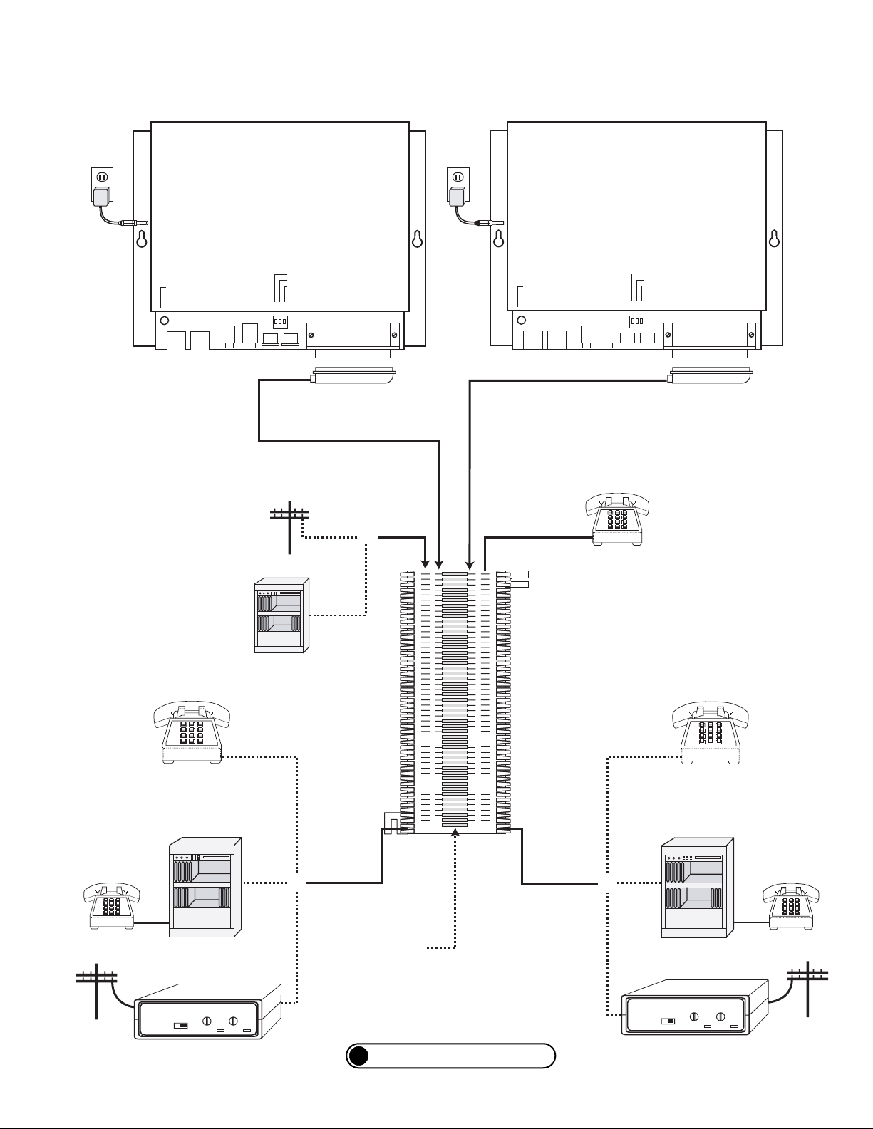
From the observing port, any of the stations can be accessed by dialing a programmable 2, 3 or 4 digit Touch Tone dial up
code. Stations being observed are unaware that they are being monitored. Automatic gain control equalizes in and out-
bound conversation levels. If assistance is required, the observer can quickly enter the conversation by dialing a Touch Tone
“✱.” An audio out jack provides a microphone level signal for a tape recorder while the record control jack provides remote
operation of the tape recorder on command. Additional SO-24A’s may be used to add 24 additional stations or lines at a
time. A multi-module configuration of SO-24A’s is capable of supporting 240 lines or stations.
To Program...
...dial up code 231 for location 03
...dial up code 15 for location 15
...dial up code 2714 for location 14
Step 4:
Enter: 231 #03
Enter: 15 #15
Enter: 2714 #14
Step 3:
Select 3-digit dial up codes as
shown in Programming section C
Select 2-digit dial up codes as
shown in Programming section C
Select 4-digit dial up codes as
shown in Programming section C
To activate the tape recorder automatically when a station is being observed ...........................set DIP switch 3 to ON
Step 2:
Access Programming as
shown in section B
Access Programming as
shown in section B
Access Programming as
shown in section B
Note: Recommended Tape Recorders: Radio Shack # 14-1117 or 14-1128.
5.