11
INDEX
IMPORTANT REMARKS ............................................................11
CONFORMITY TO REGULATIONS..............................................11
TECHNICAL SPECIFICATIONS....................................................12
PARTS LIST ..............................................................................12
PREPARATORY STEPS................................................................1
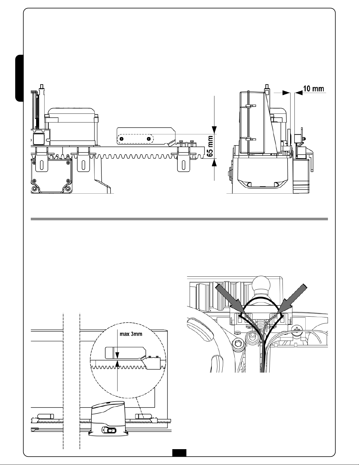
INSTALLATION ..........................................................................1
MOUNTING THE RACK ............................................................1
INSTALLING THE LIMIT SWITCHES ............................................14
MOTOR OVERRIDING SYSTEM ................................................15
INSTALLATION LAYOUT ............................................................15
CONTROL UNIT ........................................................................16
IMPORTANT REMAR S
For any installation problems please contact
V2 S.p.A. TEL. (+ 9) 01 72 81 24 11
V2 S.p.A. has the right to modify the product without
previous notice; it also declines any responsibility to
damage or injury to people or things caused by improper
use or wrong installation.
Please read this instruction manual very carefully
before installing and programming your control unit.
• This instruction manual is only for qualified technicians, who
specialize in installations and automations.
• The contents of this instruction manual do not concern the
end user.
• Every programming and/or every maintenance service
should be done only by qualified technicians.
AUTOMATION MUST BE IMPLEMENTED IN COMPLIANCE
WITH THE EUROPEAN REGULATIONS IN FORCE:
EN 60204-1 (Machinery safety. electrical equipment of
machines, part 1: general rules)
EN 12445 (Safe use of automated locking devices, test
methods)
EN 12453 (Safe use of automated locking devices,
requirements)
• The installer must provide for a device (es. magnetotermical
switch) ensuring the omnipolar sectioning of the equipment
from the power supply.
The standards require a separation of the contacts of at
least mm in each pole (EN 60 5-1).
• The plastic case has an IP55 insulation; to connect flexible
or rigid pipes, use pipefittings having the same insulation
level.
• Installation requires mechanical and electrical skills,
therefore it shall be carried out by qualified personnel only,
who can issue the Compliance Certificate concerning the
whole installation (Machine Directive 98/ 7/EEC, Annex IIA).
• The automated vehicular gates shall comply with the
following rules: EN 1245 , EN 12445, EN 12978 as well as
any local rule in force.
• Also the automation upstream electric system shall comply
with the laws and rules in force and be carried out
workmanlike.
• The door thrust force adjustment shall be measured by
means of a proper tool and adjusted according to the max.
limits, which EN 1245 allows.
• We recommend to make use of an emergency button, to be
installed by the automation (connected to the control unit
STOP input) so that the gate may be immediately stopped
in case of danger.
• The appliance is not to be used by children or persons with
reduced physical, sensory or mental capabilities, or lack of
experience and knowledge, unless they have been given
supervision or instruction.
• Children being supervised do not play with the appliance.
• For correct installation of the system, we recommend
following the instructions issued by UNAC very carefully,
which can be consulted at the following web site:
www.v2home.com
CONFORMITY TO REGULATIONS
V2 S.p.A. declares that the series of GOLD actuators are in
conformity with the provisions of the following EC directives:
2006/95/CEE low voltage
89/336/CEE electromagnetic compatibility
99/05/CEE radio directive
98/37/CEE machine directive
and with the standards referenced here below:
•EN 60335 - 1, EN 60335 - 2 - 103,
•EN 61000 - 2 - 3, EN 61000 - 3 - 3, EN 50336
•EN 55014 - 1, EN 55014 - 2
•EN 301 489 - 3
•EN 300 220 - 3
Note: Declares that the above mentioned devices may not be
operated until the machine (automated gate) is identified, CE-
labeled, and declared to be compliant to the specifications of
Directive 89/ 92/EEC and following modifications.
The person in charge for the machine start-up must provide the
following records:
• Technical specification paper
• Declaration of conformity
• CE-labeling
• Testing record
• Maintenance record
• Operation manual and directions
Racconigi 20/10/2008
V2 S.p.A. legal representative
Antonio Cristina