
All contents current at time of publication.
SALTO Systems S.L. reserves the right to change availability of any
item in this catalog, its design, construction, and/or materials.
224901 -ED0 -01/09/2015
European view
©2015 SALTO Syst ems S.L. 2/8
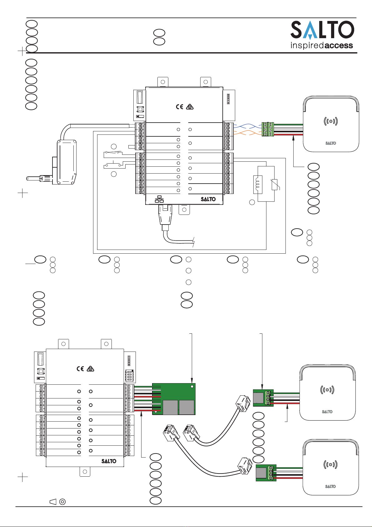
READER 1
A
B
TAMPER
IN1
IN2
IN3
IN4
IN5
IN6
READER 2
RL1
RL2
RL3
RL4
C
NC
NO
C
NC
NO
C
NC
NO
C
NC
NO
BUS485
Ethernet
10Base-T
100Base-TX
ON
12VDC Input
+
A
B
-
12VDC Output (1A)
Power Input: 12VDC-1A
GND
GND
+
-
+
-
+
-
+
-
+
-
+
-
+
-
A
B
+
-
Model: CU42xx
2
1
3
4
5
6
7
1
9
8
11
12
10
12
1
10
11
2
3
4
5
6
7
8
9
Fra
Contacteur anti sabotage monté en parallèle avec l’entrée anti
sabotage.
Bouton Clear doit être appuyé (pendant au moins 5 secondes) lorsque la
configuration est modifiée (ex : ajout d’un lecteur, connexion d’un
cordon Ethernet, ajout d’un dispositif sur le BUS485) l’alarme anti
sabotage doit être activé en enlevant le cavalier du bornier.
La résistance de fin de bus RS485 est nécessaire (position ON) lorsque la
CU est positionnée à l'extrémité du bus.
Puissance d’entrée
Puissance de sortie: Cette sortie est reliée directement au port d'entrée
de l’alimentation protégée par un fusible de 1A.
BUS485
Inputs: L'installateur doit identifier le câble nécessaire en fonction de la
configuration d'entrée.
Connexion pour le PPD
Configuration de l’adresses (Uniquement pour CU4200) Les adresses des
CU connectées au même BUS doivent être toutes différentes.
Connexion des lecteurs: Consultez le manuel d'installation du lecteur afin
de voir les câbles recommandés, les connexions et les distances
maximales.
Connexion des relais: S'il vous plaît prendre en compte les restrictions de
charge max. (2A-30VDC). Utilisez les varistances fournis si une charge
inductive est utilisée (24v AC / DC max.).
Connexion Ethernet (uniquement CU42E0)
12
1
10
11
2
3
4
5
6
7
8
9
Sve
Sabotage-kontakt är ansluten parallellt med sabotageingång.
Resetknappen måste tryckas ner (inte mer än 5 sekunder) om hårdvaru-
konfigurationen har ändrats (t.ex. en läsare är inkopplad, nätverksslad-
den har anslutits, osv.) samt så måste tamper-larmet aktiveras genom
att koppla ur tamper-bygeln/kontakten.
RS485 Buss-terminering krävs (position ON) om detta är den sista enheten i
slingan.
Power Input
Ström utgång: Denna utgång är direkt kopplad till strömingången,
avsäkrad med en 1A säkring.
BUS485
12
1
10
11
2
3
4
5
6
7
8
9
Eng
Tamper switch is connected in paralell with tamper input.
Clear button must be pushed (not more than 5 seconds) if the
configuration has been changed, (i.e., reader added, connected
by ethernet, device connected by BUS485) and the tamper alarm
must be activated by removing the tamper switch connector.
BUS RS485 Terminal Resistor must be in the ON position when the CU is
connected at the end of the BUS.
Power Input
Power Output: This output is directly connected to the power Input port
protected by a 1A fuse.
BUS485
Inputs: Installer must identify the bridge cable needed
depending on the input configuration.
PPD Connection
Address configurer (Only CU4200) All connected CU addresses must be
different from each other.
Connection to Readers: Check reader installation manual to see
recommended cable, connections and max. distances.
Relay Connections: Please take into account the max. load restrictions
(2A-30VDC). Use the provided varistor if a inductive load is used.
Ethernet connection (only CU42E0)
12
1
10
11
2
3
4
5
6
7
8
9
Ned
Sabotage schakelaar is parallel verbonden met Sabotage ingang.
Clear button moet ingedrukt worden (minder dan 5 sec) als configu-
ratie is veranderd. Bijv. Lezer toegevoegd, Ethernet verbonden of
een apparaat is toegevoegd aan BUS485, enz. De sabotagemelding
(tamper) moet aanstaan om de configuratie te kunnen voltooien.
RS485 Bus eindweerstand is nodig (ON positie) wanneer de CU aan het
einde van de bus ligt.
Voeding ingang
Voeding uitgang: Deze output is direct verbonden met de power input
poort beschermd door een 1A zekering.
BUS485
Ingangen: Installateur moet vaststellen welke kabel nodig is, afhankelijk
van de input configuratie. Indien geen deursensoren of sabotagecon-
tact gebruikt wordt, sluit de meegeleverde 3 kabelbruggen aan op
deze ingangen.
PPD Connectie
Adres configuratie (Alleen CU4200) Alle CU4200 adressen verbonden met
de RS485Bus moeten van elkaar verschillen.
Lezer aansluitingen: Zie de installatie handleiding van de (wand)lezer
voor de aanbevolen kabel, verbindingen en maximale afstanden.
Relais aansluitingen: Houd alstublieft rekening met de maximale
belasting (2A-30VDC). Gebruik de meegeleverde varistors als er een
inductieve lading wordt gebruikt (24v
AC/DC max.)
Ethernet aansluiting (alleen bij de CU42E0)
12
1
10
11
2
3
4
5
6
7
8
9
Esp
Tamper switch, conectado en paralelo a la entrada del tamper.
Clear button ha de ser pulsado (menos de 5 segundos) si se cambia la
configuración: lector añadido, conectado por ethernet, dispositivo
conectado por BUS485 etc. Para ello, la alarma de tamper ha de estar
activada (quitar el conector del tamper input).
Resistor del terminal BUS RS485 requerido (posición ON) cuando la CU
está conectada al final del Bus.
Entrada de alimentación
Salida alimentada: Esta salida se conecta directamente a la entrada
de alimentación protegida por un fusible de 1A.
BUS485
Entradas: El instalador ha de identificar el cable para el puente
dependiendo de la configuración de la entrada.
Conexión para el PPD
Configurador del direccionador (Sólo CU4200) Todos los direccionami-
entos de las distintas CUs han de ser diferentes.
Conexión al lector: Consultar el manual de instalación del lector para
ver el tipo de cable recomendado, conexionado y distancias máximas.
Conexión al Relé: Tener en cuenta las restricciones de las cargas
máximas (2A-30VDC). Utilizar el varistor suministrado si la carga es
inductiva.
Puerto Ethernet (sólo CU42E0) 12
1
10
11
2
3
4
5
6
7
8
9
Deu
Sabotageschalter ist parallel mit dem Sabotage Eingang (Tamper)
Der "CLR" Taster muss einmal weniger als 5 Sekunden gedrückt werden,
wenn die Konfiguration verändert wurde (z.B. Leser zugefügt, Netzwerk
angeschlossen, Buskomponenten angeschlossen). Vor dem Drücken muss
der Sabotagekontakt "Tamper" ausgelöst sein, hierzu einfach die
Kabelbrücke abziehen.
485 Bus Abschluss Wiederstände notwendig (ON Position) wenn die CU
am Anfang oder Ende des Buses sitzt.
Spannungseingang
Spannunsausgang: Dieser Spannungsausgang ist dierekt mit dem
Spannungseingang verbunden, jedoch durch eine 1A Sicherung
abgesichert.
BUS485
Eingänge: Bei der Installation müssen je nach Konfiguration eventuell
Eingänge gebrückt werden. Der Steuerung liegen hierzu 3 Kabelbrücken
für diesen Zweck bei
PPD Verbindung
Adresskonfiguration (Nur CU4200) Alle CU4200 im selben Bus, müssen
unterschiedliche Adressen haben
Verbindung für Leser: Für Anschluß und Entfernungen, bitte die Montag-
eanleitung des Lesers beachten.
Ausgangsrelais: Bitte beachten Sie die maximale Schaltleistung von
2A-30VDC. Nutzen Sie die beiliegenden Varisatoren, für Induktive
Verbraucher (24v AC/DC max.)
Nethwerkverbindung (Nur CU42E0)
CU42xx Installation Guide
Guía de instalación CU42xx
Installationsanleitung CU42xx
Guide d'installation CU42xx
Installatiehandleiding CU42xx
Installationsguide CU42xx
Eng
Esp
Deu
Fra
Ned
Sve
Ingångar: Installatören måste identifiera vilka kablar som behövs,
beroende på konfigurationen. Tre kablar medföljer vid leverans
för detta ändamål.
PPD Anslutning
Adress-konfigurering (endast CU4200): Alla CU4200 anslutna via
BUS485 måste ha olika adresser.
Anslutning till läsare: Se väggläsarens manual för rekommenda-
tion kring kabeltyp, anslutning och avstånd.
Reläanslutningar: V.g. notera max. belastningen (2A-30VDC).
Använd medföljande Varistor vid behov. (24v AC/DC max.)
Nätverksanslutning (endast CU42E0)