
ME-43 Operating Manual.docx 2023-08-16
Page 2 of 6
1. APPLICATION
The ME-43 enclosure is dedicated to RACS 5 modules and devices which require installation on DIN
rail along with a 17Ah battery. The enclosure is equipped with 2 DIN rails, tamper contact and
main fuse switch. Access to the internal space of the enclosure is protected by a door fixed by
screws. Optionally, the door can be equipped with a key lock. The ME-43 is made of a metal sheet
painted with an anthracite grey powder coating.
2. INSTALLATION
1. The enclosure shall be installed indoors ensuring nominal environmental conditions as
stated in the Specification section.
2. All installation and maintenance work inside the enclosure shall be done with the 230VAC
power supply disconnected.
3. 230VAC power supply should be made with a three-wire cable including green-yellow PE
wire.
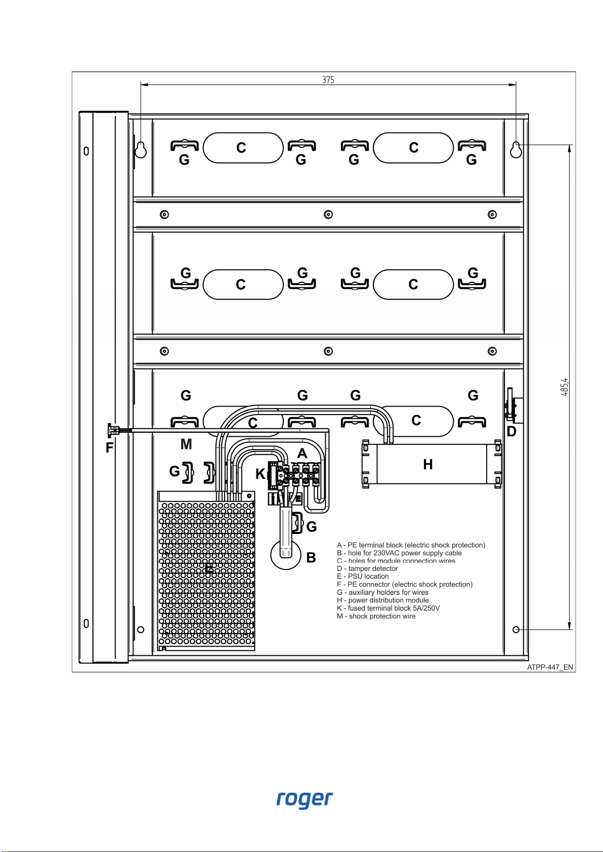
4. Mains power supply cable shall be fed into the enclosure through hole B and fastened to G
detail by a cable tie.
5. Connect the mains power cable as shown in the figure below (Fig. 1).
Fig. 1 Connection of 230VAC mains power to the terminal block
6. Protective wire M connected to the terminal block A, should be connected to the F
connector of the anti-shock protection PE located on the enclosure door (Fig. 2).
7. Other connections should be made in accordance with the instructions of the devices to be
mounted in the housing. Connection cables for installed devices must be fed into the
enclosure through C holes.
8. In order to arrange the cables inside the enclosure, they should be placed with cable ties to
the G detail. In order to use the G details, they must be levered first (ex. with a
screwdriver) and bend to the vertical position, then use a cable tie to fasten the bundle of
cables (Fig. 3).
9. Configuration and adjustments of the modules installed in the enclosure should be done in
accordance with their manuals.
10. To introduce cables into the enclosure from the upper or lower wall of the enclosure, form
the cable holes as indicated in Fig. 4.
11. Close the enclosure when electrical installation and configuration/test process is
accomplished.
12. Users of the system should be familiarized with the rules of switching off the electrical
circuit used to power the device.