WARNING
IMPROPER INSTALLATION, ADJUSTMENT, ALTERATION,
SERVICE OR MAINTENANCE CAN CAUSE PROPERTY
DAMAGE, PERSONAL INJURY OR LOSS OF LIFE, REFER
TO THE OWNER'S INFORMATION MANUAL PROVIDED
WITH THIS APPLIANCE. INSTALLATION AND SERVICE
MUST BE PERFORMED BY A QUALIFIED INSTALLER,
SERVICE AGENCY OR THE GAS SUPPLIER.
ENERGYSAVER RHFE-1004FA
Operation Manual
Table of Contents
Page
FEATURES OF THE RHFE-1004FA UNITS ..........................................................1
SAFETY DEVICES ................................................................................................1
IMPORTANT POINTS / USAGE AND INSTALLATION MUSTS ............................3
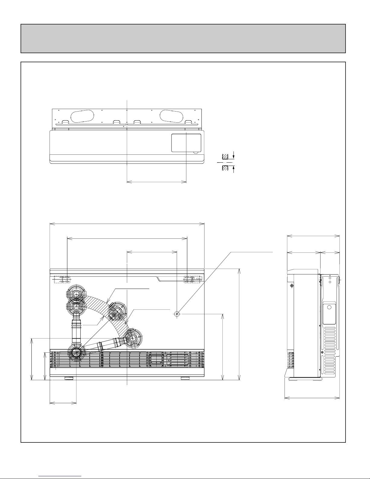
DIMENSIONS ........................................................................................................5
SPECIFICATIONS .................................................................................................6
SAFETY POINTS ..................................................................................................8
GETTING TO KNOW YOUR NEW RHFE-1004FA ................................................10
CONTROL PANEL .................................................................................................11
CUT-AWAY DIAGRAM ...........................................................................................12
NOTICE BEFORE INSTALLATION .......................................................................13
INSTALLATION INSTRUCTIONS ..........................................................................14
GAS CONNECTION ..............................................................................................15
VENT TERMINATION CLEARANCES ..................................................................16
LOCATION / CLEARANCES .................................................................................17
SLEEVE AND MANIFOLD INSTALLATION ...........................................................19
FITTING UNIT .......................................................................................................21
OPERATING INSTRUCTION LABEL ....................................................................23
ADDITIONAL CUSTOMER OPERATING INFORMATION ....................................24
TESTING ...............................................................................................................30
CHECK ..................................................................................................................30
PRE-SERVICE CHECK .........................................................................................31
TROUBLE SHOOTING ..........................................................................................32
ERROR MESSAGES..............................................................................................33
MAINTENANCE / SERVICE ..................................................................................34
WIRING DIAGRAM ................................................................................................35
WARRANTY INFORMATION .................................................................................36
SCHEMATIC DIAGRAM ........................................................................................38
PARTS LIST ...........................................................................................................45
RHFE-1004FA FLOW DIAGRAM ..........................................................................50
EXTENDED FLUE PIPE KIT .................................................................................51
TECHNICAL DATA ................................................................................................56