Pag. 7 di 36 I
T
A
L
I
A
N
O
3) Premere il pulsante S1 e rilasciarlo immediatamente, la sbarra esegue l’apertura e si
ferma al raggiungimento del finecorsa di apertura (il Led 2 rimane acceso).
4) Attendere il tempo di pausa prima della chiusura automatica max 5 minuti; oltre i quali
la sbarra richiuderà automaticamente. Durante l’attesa il led L2 rimane acceso.
5) Premendo il pulsante S1 (il led L2 si spegne) si fissa il tempo di attesa. La sbarra si
chiude e si ferma raggiungendo il finecorsa di chiusura.
NOTA: ll tempo di attesa prima di ottenere la chiusura automatica verrà determinato solo
se “Dip 5 su ON”.
SCHEMA FUNZIONAMENTO PARK (Di 4 su ON - Fig. 9)
L’ingresso “IN-PARK” (NA) deve essere collegato ad un sensore magnetico posi ionato
nelle immediate vicinan e della sbarra, per segnalare la presen a di una autovettura
prossima al transito (se non si vuole usufruire di questa fun ione eseguire un ponticello tra
i morsetti 8 e IN-PARK).
L’ingresso “K-OUT PARK” deve essere collegato al contatto “6” (NA) delle fotocellule
situate in corrisponden a della linea di completamento del passaggio dell’autovettura (Per
ottenere la chiusura al passaggio completo della vettura).
Pertanto l’ingresso “K-OUT PARK” non può essere usato come comando automatico di
tipo Passo-Passo.
L’ingresso “10” (NC) deve essere collegato ad una sicure a (fotocellule o fotocosta) per
garantire la prote ione in fase di chiusura.
MODO DI FUNZIONAMENTO PARK
A condi ione che un’autovettura sia presente sul sensore magnetico, può essere
comandata l’apertura della sbarra tramite pulsante apre o contatto radio.
La sbarra rimarrà aperta fin quando l’autovettura non sarà transitata davanti alle
fotocellule situate in corrisponden a della linea di completamento del passaggio.
La chiusura viene eseguita dopo un secondo dall’avvenuto transito (fotocellula liberata), e
viene protetta da fotocellule o fotocosta. Quest’ultime comanderanno l’inversione della
sbarra in apertura anche se l’autovettura permane nel raggio di a ione delle sicure e.
NOTA: Se “Dip 4 su ON” e se “Dip 3 su ON”, automaticamente Dip 3 viene considerato in
OFF (fotocellule attive solo in chiusura).
ATTENZIONE: Il tempo di attesa prima della chiusura automatica sarà conteggiato solo
se “Dip 5 su ON”.
Come conseguen a, se l’autoveicolo rimane tro o a lungo sul sensore magnetico
senza transitare (senza im egnare la fotocellula), la sbarra chiuderà do o il tem o
reim ostato.
FUNZIONAMENTO ACCESSORI DI COMANDO
APERTURA CON BLOCCO DELLE FUNZIONI
TRAMITE INTERRUTTORE O OROLOGIO
Questa fun ione è utile nelle ore di punta quando il traffico veicolare risulta rallentato (es.
entrata-uscita operai, emergen e in one residen iali o parcheggi e temporaneamente per
traslochi).
MODALITÁ DI APPLICAZIONE
Collegando un interruttore e/o un orologio di tipo giornaliero settimanale (al posto di un
pulsante NA tra “8 e 9”) è possibile aprire la sbarra e mantenerla aperta finché
l’interruttore viene premuto o l’orologio rimane attivo.
A barriera aperta vengono inibite tutte le fun ioni di comando.
Se la chiusura automatica è attiva “Dip 5 su ON”, rilasciando il pulsante o allo scadere
dell’ora impostata si avrà la chiusura automatica della sbarra, altrimenti sarà necessario
dare un nuovo comando.
PULSANTE DI IMPULSO SINGOLO (Di 4 su OFF)
Da collegarsi ai morsetti 8 e K del quadro (effettua questi comandi: APRE - STOP -
CHIUDE - STOP - .....).
PULSANTIERE E SELETTORI
In caso di collegamento di 2 o più pulsantiere, collegare in parallelo tra loro i comandi di
apre e chiude (8-9 e 8-11) ed in serie tra loro i contatti di stop (8-2).
Eventuali selettori a chiave vanno collegati fra i morsetti 8-9 ed 8-11.
Se non vengono previsti pulsanti di stop eseguire un ponticello tra i morsetti 8-2.
TELECOMANDO
A sbarra chiusa esegue l’apertura. Durante l’apertura il telecomando non ha efficacia fino
al raggiungimento del finecorsa di fine apertura.
A sbarra aperta esegue la chiusura.
Se il telecomando viene premuto durante la chiusura la barriera invertirà il movimento.
FUNZIONAMENTO ACCESSORI DI SICUREZZA
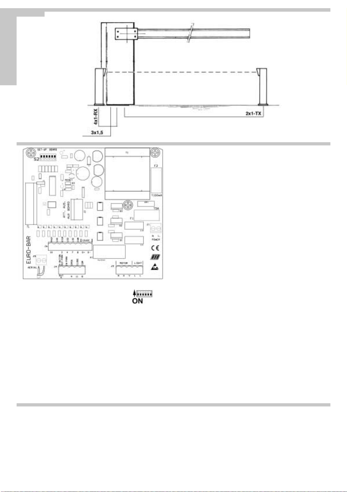
FOTOCELLULE (settate a 12Vdc)
Le Fotocellule (inserite come in Figure 2 e 3) hanno la possibilità di interrompere il moto
dell'automatismo sia in fase di apertura che di chiusura “Dip 3 su ON” (con ripristino del
moto a fine interposi ione).
In caso di guasto alle fotocellule, se si comanda il moto del cancello, non si avrà la
segnala ione del lampeggiatore e il motore resterà fermo.
Le fotocellule, se impegnate a sbarra aperta, rinnovano il tempo di attesa prima di
ottenere la chiusura automatica (Se Dip 5 è o sarà attivato).
COSTOLE PNEUMATICHE O FOTOCOSTA
Collegare le costole ai morsetti 8-10.
Se la costola viene a ionata si avrà l’inversione di marcia.
COLLEGAMENTO LED SPIA A 12VDC
(PER SEGNALAZIONE AUTOMAZIONE APERTA)
Collegare la spia ai morsetti D- e 7 (max 6 watt).
La segnala ione viene eseguita ad automa ione aperta o par ialmente aperta, e
comunque non chiusa totalmente.
LAMPEGGIATORE 230V 40W
Se si desidera la parten a anticipata di tre secondi del lampeggiatore rispetto al motore è
necessario posi ionare il “Dip 6 su ON”.
CARATTERISTICHE TECNICHE
Range di temperatura 0 ÷ 70 °C
Umidità < 95 % sen a condensa ione
Tensione di alimenta ione 230 Vac ±10%
Frequen a 50/60 H
Miicrointerru ioni di rete 20 ms
Poten a gestibile all’uscita del motore 736 W
Carico max uscita lampeggiatore 40 W - 250 Vac cosƒi=1
Assorbimento max scheda (esclusi accessori) 30 mA
Corrente disponibile ai morsetti D+D- 0,8A ±15% - 12Vdc
Grado di prote ione IP54
Peso apparecchiatura 0,8 Kg
Ingombro 14,7x6x18 cm
SICUREZZE ELETTRICHE
Nella ECO-RAPID i finecorsa, il motore, e il lampeggiatore sono già collegati al quadro
elettronico di comando.
Sono da collegare solamente i fili di una pulsantiera, delle fotocellule e, naturalmente,
della tensione di alimenta ione.
Le persone e le cose devono essere protette da eventuali schiacciamenti dovuti a un
comando involontario perciò è obbligatorio installare almeno una coppia di fotocellule o un
sensore (pneumatico o a fotocellula) da collocarsi sotto l'asta come in Fig.1-13.
Quale ulteriore sicure a per prevenire atti di vandalismo è disponibile la "colonna con
magnete" in grado di bloccare l'asta in posi ione di chiusura (Fig.17).
Per i collegamenti ed i dati tecnici degli accessori attenersi ai relativi libretti.
IMPORTANTI ISTRUZIONI DI SICUREZZA
PER L’INSTALLAZIONE
1° - Se non é previsto nella centralina elettrica, installare a monte della medesima
un'interruttore di tipo magnetotermico (onnipolare con apertura minima dei contatti
pari a 3mm) che riporti un marchio di conformità alle normative interna ionali.
2° - Per la se ione ed il tipo dei cavi la RIB consiglia di utili are un cavo di tipo
NPI07VVF con se ione minima di 1,5mm2e comunque di attenersi alla norma IEC
364 e alle norme di installa ione vigenti nel proprio Paese.
N.B.:É obbligatoria la messa a terra dell'im ianto
I dati descritti nel presente manuale sono puramente indicativi.
La RIB si riserva di modificarli in qualsiasi momento.
Reali are l’impianto in ottemperan a alle norme ed alle leggi vigenti.
MANUTENZIONE
Da effettuare solamente da arte di ersonale s ecializzato do o aver tolto
l'alimentazione elettrica al motore.
Ogni 100.000 manovre complete verificare il bilanciamento dell'asta, il serraggio della
manopola di sblocco e del mo o porta asta, l'usura delle battute di fermo meccanico,
verificare il fissaggio dell’asta e regolare i finecorsa.
Ingrassare i supporti dell'albero porta asta e la barra filettata guidamolla.