Introduction................................................................................................................................................. 3
Safety Warning........................................................................................................................................... 3
BWU Model Identification........................................................................................................................... 4
Preventative Maintenance.......................................................................................................................... 5
Specifications ............................................................................................................................................. 6
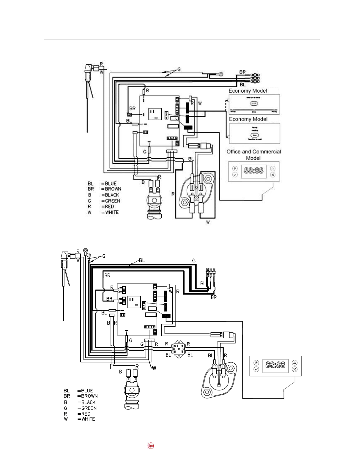
Wiring Diagrams......................................................................................................................................... 7
Wiring Diagram 3 –15L Models................................................................................................................. 7
Wiring Diagram 25 & 40L Models .............................................................................................................. 7
Plumbing Diagram...................................................................................................................................... 8
Operation.................................................................................................................................................... 8
Operational Flow Chart –701 & 702 Series ............................................................................................ 11
Operational Flow Chart –703 Series....................................................................................................... 12
Electronic Controller.................................................................................................................................13
Timer –701 & 702 Series......................................................................................................................... 13
Timer Functions........................................................................................................................................ 14
Setting the Clock...................................................................................................................................... 15
Accessing Service Menu.......................................................................................................................... 17
Eco Timer 703 Series............................................................................................................................... 20
Eco timer LED Indication (NZ Pre-2014 Models)..................................................................................... 21
Activate calibration reset mode (NZ Pre-2014 Models)........................................................................... 21
Eco timer LED Indication (Standard)........................................................................................................ 22
Activate calibration reset mode (Standard).............................................................................................. 22
Components and their Function............................................................................................................... 23
Common Complaints................................................................................................................................ 24
Fault Finding............................................................................................................................................. 24
Error Codes (701 & 702 Series Only)...................................................................................................... 25
Error Codes (703 Series only).................................................................................................................. 25
Testing the Boiling Water Thermistor....................................................................................................... 26
Error Codes A, B, C, D............................................................................................................................. 28
Error Codes E, G...................................................................................................................................... 29
Error Codes H, J....................................................................................................................................... 30
Error Codes K, L N................................................................................................................................... 31
Fault Finding Chart 1................................................................................................................................ 32
Fault Finding Chart 1.1, 1.1a.................................................................................................................... 33
Fault Finding Chart 2, 3............................................................................................................................ 34
Fault Finding Chart 4, 4.1 & 4.2............................................................................................................... 35
Fault Finding Chart 4a, incl. (4.1 & 4.2)................................................................................................... 36
Fault Finding Chart 5 .............................................................................................................................. 37
Fault Finding Chart 5a.............................................................................................................................. 38
Fault Finding Chart 6................................................................................................................................ 39
Fault Finding Chart 7................................................................................................................................ 40
Fault Finding Tests................................................................................................................................... 41
Electrical Safety Testing........................................................................................................................... 44
Component Replacement Procedures..................................................................................................... 46
Exploded view 1: 701 series Office model 3 & 5 litre............................................................................... 55
Exploded view 2: 702 series Commercial model 7.5 - 40 litre................................................................. 56
Exploded view 3: 703 series Eco model 3 –7.5 litre............................................................................... 57
Document Revision History...................................................................................................................... 58