PowerTech PL600H Manuel utilisateur

FOR RESIDENTIAL
USER MANUAL
SLIDING GATE OPENERS
PL600H/PL1000H 24V DC MOTOR


INSTRUCTIONS PL600H/PL1000H 1
Index
1. Warnings 2
2. Product Description and Applications 3
2.1 Applications...........................................3
2.2 Description of The Automation...............3
2.3 Description of Devices............................3
2.3.1 PL600H/PL1000H Electromechanical
Gearmotor..............................................4
2.3.2 Release Keys.........................................4
2.3.2.1 Release Gearmotors……………............4
2.3.3 PH-2 Photocells......................................5
2.3.4 PR-1 Radio Transmitter..........................5
2.3.5 PF-1 Flashing Light................................5
2.3.6 PKS-1 Key selector................................5
2.3.7 PPB-1 Push Button…….........................5
3. Installation 6
3.1 Notes of Motors in Operation.................6
3.1.1 Tools in Installing....................................6
3.1.2 Motors, Components and Its Installation
in Illustration...........................................6
3.2 Power Connection..................................6
3.2.1 Notes for Power Connection..................6
3.3 Preparation for Motor Installation...........7
3.3.1 Installation of The Gearmotor.................9
3.3.1.1 Installing on Gates without Rack............9
3.3.1.2 Installing on Gates with Rack…...........11
3.3.2 PH-2 Photocells....................................12
3.3.3 PF-1 Flashing Light..............................13
3.3.4 PKS-1 Key selector..............................14
3.3.5 PPB-1 Push Button…...........................15
3.3.6 Installation of Green Box......................15
3.4 Power Supply Connections..................16
4. Final Checks and Start Up 16
4.1 Initial Checks........................................16
4.1.1 Design of PL600H/PL1000H control
unit.......................................................16
4.1.2 Recognition of LED Indication…….......17
4.1.3 Checking the Gate Movements…….....17
4.2 Programmable Functions List..............18
4.2.1 Programmable Functions of
LED Display..........................................20
4.2.2 Operations for Function Settings……...21
5. Testing 21
6. Maintenance and Disposal 22
6.1 Maintenance.........................................22
6.2 Disposal................................................22
7. Additional Information 22
7.1 Adding or Removing Device.................22
7.2 Troubles Shooting.................................22
8. Technical Characteristics 23
8.1 PL600H/PL1000H.................................23
8.2 PH-2 Photocells....................................23
8.3 PR-1 Transmitter...................................23
8.4 PF-1 Flashing Light...............................23
8.5 PKS-1 Key Selector..............................23
8.6 PRB-1 Push Button..............................23
CE Declaration of Conformity

INSTRUCTIONS PL600H/PL1000H
2
1) Warnings
Please read this instruction manual carefully before the
installation of gate-automated system.
This manual is exclusively for qualified installation
personnel. Powertech Electronics Inc. is not responsible for
improper installation and failure to comply with local
electrical and building regulations.
Keep all the components of PL600H/PL1000H system and
this manual for further consultation.
In this manual, please pay extra attention to the contents
marked by the symbol:
Be aware of the hazards that may exist in the procedures
of installation and operation of the gate-automated
system. Besides, the installation must be carried out in
conformity with local standards and regulations.
If the system is correctly installed and used following all
the standards and regulations, it will ensure a high degree
of safety.
Make sure that the gates works properly before installing
the gate-automated system and confirm the gates are
appropriate for the application.
Do not let children operate or play with the
gate-automated system.
Do not cross the path of the gate-automated system when
operating.
Please keep all the control devices and any other pulse
generator away from children to avoid the gate-automated
system being activated accidentally.
Do not make any modifications to any components except
that it is mentioned in this manual.
Do not try to manually open or close the gates before you
release the gear motor.
If there is a failure that cannot be solved and is not
mentioned in this manual, please contact qualified
installation personnel.
Do not use the gate-automated system before all the
procedures and instructions have been carried out and
thoroughly read.
Test the gate-automated system weekly and have
qualified installation personnel to check and maintain the
system at least every 6-month.
Install warning signs (if necessary) on the both sides of
the gate to warn the people in the area of potential
hazards.

INSTRUCTIONS PL600H/PL1000H 3
2.1 Applications
2.2 Description of the Automation
PL600H/PL1000H is applied for residential automation of sliding gates. PL600H/PL1000H has to be operated with
electricity and it’s forbidden to be operated by back-up batteries for normal use. Back-up batteries (optional) are only
allowed for emergent operation when there is a power failure, and the gearmotor can be released by the key to move
the gate manually.
The following diagram of PL600H/PL1000H typical installation describes some terms live in whereever you are and
whenever you are and accessories of a gate automation system:
2.3 Description of Devices
H
I
G F C C E
H
516
A
A
BC
DE
PL600H/PL1000H may include the accessories shown in Figure 2.
Please check the accessories the same as the package provided.
Attention: Some accessories of PL600H/PL1000H are not included due to local regulations or customized order.
A) 1 PL600H/PL1000H electromechanically gearmotor
including control unit
B) 2 release keys
C) 1 pair of PH-2 photocells
D) 2 PR-1 radio transmitters
E) 1 PF- flashing light
F) 1 PKS-1 key selector with two keys
G) 1 PPB-1 push button
H) 2 limit switch brackets
I) Various small parts: screws, nuts, etc. (see table1)
J) 4 PRK-1 Rack
K) Green Box
Figure 2
Bent bins / Washers / Nut 2 pcs / 6 pcs / 4 pcs
Foundation Plate 1 pce
Screws with no head 4 pcs
Limit Switch 2 sets
Table 1: List of small parts for PL600H & PL1000H
Figure 1
2) Product Description and Applications
F G H
IJ
K

INSTRUCTIONS PL600H/PL1000H
4
2.3.1 PL600H/ PL1000H Electromechanical Gearmotor
PL600H/PL1000H consists of an electronic control unit
and connector for the optional radio control receiver.
The gearmotor could be released manually by special
release keys when there is power failure. Besides, it has
a back-up battery (optional) which can be used during
the power failure as well.
2.3.2 Release Keys
The two keys enable the gearmotor to be released when
there is power failure.
Figure 3
Figure 4
516
Green Box
Fuse knob
Terminals for devices
RF leaning button
Digital led display
Function setting buttons
Back-up batteries
(optional)
A
B
E
D
C
F
G
2.3.2.1 Release Gearmotor
1) Slide the lock cover disc. 2) Insert and turn the key clockwise.
3) Pull the release handle. 4) Move the leaf manually.

INSTRUCTIONS PL600H/PL1000H 5
3*20 Screw 3 pcs
Nylon screw anchor 3 pcs
Table 2: List of small parts for PPB-1 Quantity
3*20 Screw 3 pcs
Nylon screw anchor 3 pcs
Table 4: List of small parts for PPB-1 Quantity
3*20 Screw 3 pcs
Nylon screw anchor 3 pcs
Keys 3 pcs
Table 3: List of small parts for PKS-1 Quantity
Figure 5
Figure 6
Figure 7
Figure 8
Figure 9
2.3.3 PH-2 Photocells
The pair of PH-2 photocells has to be installed on the
wall and connected to the control panel. The function of
the photocells is to detect the obstacles found on the
optical axis between the transmitter (TX) and the
receiver (RX).
2.3.4 PR-1 Radio Transmitter
PR-1 radio transmitter is used for the remote control of
the gate movement. To use the transmitter, press and
hold the button for 1 second. There are two buttons on
the transmitter and (A) button is “open-stop-close
mode” and (B) button is “pedestrian mode”.
2.3.5 PF-1 Flashing Light
PF-1 flashing light is controlled by PL600H/PL1000H
control unit and blinks when the gate is moving or blinks
3 seconds before the gate moves. The flashing light
stops blinking when the gates
2.3.6 PKS-1 Key selector
The PKS-1 key selector is used for opening the gate
outdoors without the radio transmitter. PKS-1 key
selector is supplied with two keys
2.3.7 PPB-1 Push Button
The PPB-1 push button is used for opening the gate
indoors without the radio transmitter.
TX
RX

INSTRUCTIONS PL600H/PL1000H
6
Figure 10
3.1 Notes of Motors in Operation
3.1.1 Tools in Installing
The PL600H/PL1000H gate openers are applicable to per gate leaf of 600/1000 kg in weight for residential use;
where the performance shall be influenced by the factors such as gate dimension, weight and climate that the driven
torque is necessarily to be adjusted properly.
Please make sure all tools and cables are ready and conform to the industrial safety standard before installation.
Please refer to Figure 10.
The installation procedure of PL600H/PL1000H may be changed due to various accessories and quantities installed.
No wiring cables for accessories are supplied with KIT PL600H/PL1000H.
3) Installation:
3.1.2 Motors, Components and Its Installation in Illustration
The users are advised to read the installation manual carefully before going for it. After getting to know all accessories
and their positions, suggest starting from cable conduit arrangement to prevent the cables from being broken or
damaged.
3.2 Power Connection
1).The installation of power supply cable to the motor should be implemented by a qualified professional electrician.
2).The power supply cable of the motor should be equipped with short circuit protection and leakage protection.
Please make sure to shut off the power before going installation or maintenance.
3.2.1 Notes for Power Connection

INSTRUCTIONS PL600H/PL1000H 7
Check the following items before going for installation:
Figure 11
Figure 12
3.3 Preparation for Motor Installation
PL600H/PL1000H is not applicable to a gate which is inefficient or unsafe, neither to solve the defects due to incorrect
installation nor poor maintenance.
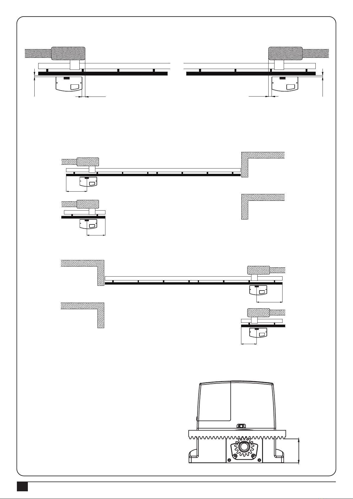
9). The installed at the left side and at the right site as below:
Gate without rack: the distances indicated in Figure 12.
332mm
287mm
91mm
216mm
Check the dimensions of the motors as below:
SX DX
50mm
50mm
50mm
50mm
1). Make sure the weight and dimensions of the gate conform to the operation range of PL600H/PL1000H. Don’t use
PL600H/PL1000H if the gate specifications do not meet the requirements.
2). Make sure the gate structure conform to the criteria of automatic operation and force regulations.
3). Make sure there is no serious friction existing in the opening or closing travel of the gate.
4). Make sure the gate is at horizontal level that the gate will not move aside at any position.
5). Make sure the gate can bear the impact of the motor torque when it is installed on the plate which the surface is
sufficiently sturdy.
6). Make sure that the installation area is not easy to be invaded by flood. If necessary, mount the raised from the
ground.
7). Make sure the photo sensors (optional) are installed on flat surfaces to ensure the two ends of receiving and
transmitting corresponded to each other.
8). Make sure the installation area is suitable to the size of and the area is safe and easy to release the gearmotor.

INSTRUCTIONS PL600H/PL1000H
8
Figure 13
Figure 14 (Left opening)
Figure 15 (Right opening).
Figure 16
Gate with rack: the distances indicated in Figure 13.
10) To install the limit switch brackets, the rack must project from the axis of the pinion by distances indicated in
Figure 14 (Left opening) and Figure 15 (Right opening).
11) If the rack is already installed on the gate, make sure the position of the rack is fitted for the size limits indicated in
Figure16.
DX
SX
50mm50mm
10mm
10mm
170mm
200mm
170mm
200mm
86-88mm
Ce manuel convient aux modèles suivants
1
Table des matières
Autres manuels PowerTech ouvre-porte

PowerTech
PowerTech PW220 Manuel utilisateur

PowerTech
PowerTech PW150 Mode d’emploi

PowerTech
PowerTech PW320 Manuel utilisateur

PowerTech
PowerTech PW330L Manuel utilisateur

PowerTech
PowerTech PL500 Manuel utilisateur

PowerTech
PowerTech PA250 Manuel utilisateur

PowerTech
PowerTech PL300E Manuel utilisateur

PowerTech
PowerTech KIT PL600 Manuel utilisateur

PowerTech
PowerTech KIT PL600 Manuel utilisateur

















