
Precauciones de seguridad
PRECAUCIÓN: Para evitar lesiones personales y/o daño a la propiedad,
•Analice, comprenda y siga todas las precauciones de seguridad e instrucciones de
funcionamiento antes de usar este soporte de motor. Si el operador no puede leer
instrucciones, las instrucciones de funcionamiento y las precauciones de seguridad
deberán leerse y comentarse en el idioma nativo del operador.
•
Sólo personal calificado debe instalar, operar, ajustar, mantener, limpiar, reparar, inspeccionar
o transportar esta maquinaria.
•
Utilice protección para los ojos que cumpla con las normas de ANSI Z87.1, CE EN166, AS/
NZS 1337 y OSHA.
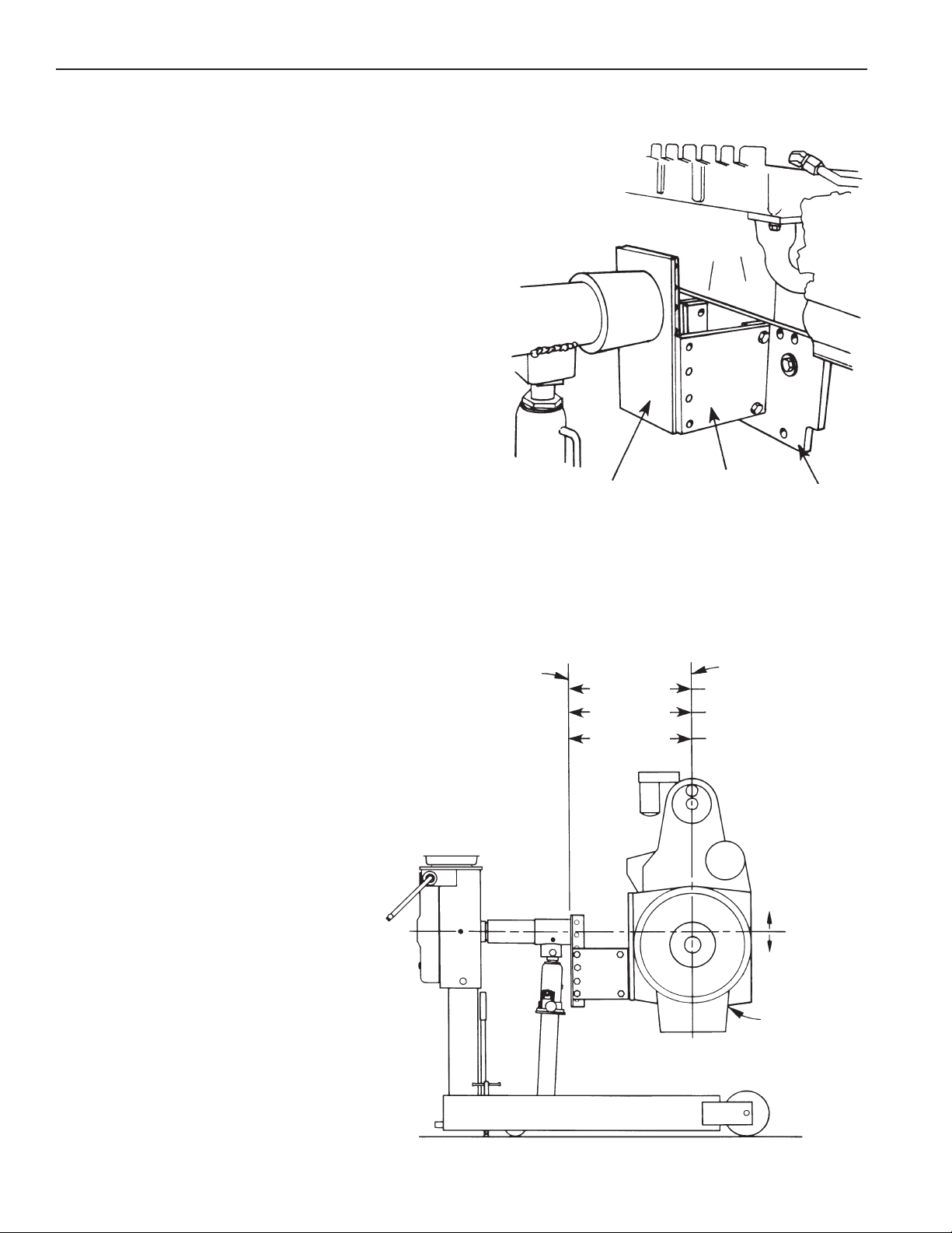
•No sobrepase la capacidad nominal de 2722 kg (6000 lbs.). La capacidad máxima se
determina al tener el centro del motor ubicado a no más de 330 mm (13 pulgadas) de la
superficie del cubo de montaje del soporte del motor.
•Utilice el soporte del motor sobre una superficie firme y nivelada.
•Trabe el mecanismo de bloqueo de la manija antes de aplicar una carga al soporte del motor.
Trabe el mecanismo de bloqueo de la manija una vez que el motor esté en funcionamiento.
•Asegúrese de que la carga esté centrada y asegurada a los accesorios de montaje.
Es
posible que las cargas que no estén centradas hagan que la carga y la manija giren en
cualquierdirección cuando seliberaeldispositivogiratoriodelseguro.
Liberelos dispositivos
giratorios del seguro lenta y cuidadosamente. Para evitar tener una carga que no esté
balanceada, ubique el centro de balance del motor a menos de 50.8 mm (2.0 pulgadas) del
eje giratorio del soporte del motor.
•Para mantener dentro de las especificaciones de resistencia a la cizalladura, utilice acero
tratado con calor de grado 8 o tornillos de tapa de cabeza de conector clase de propiedad
10.9 para montar los adaptadores o los motores.
•Paragarantizarunenganchecompleto en la rosca,losagujerosroscadosen losadaptadores
y los bloques del motor deben estar limpios y sin daños. Para mantener los requerimientos
de resistencia, se requiere un enganche de longitud de rosca equivalente a un mínimo de
1-1/2 vez el diámetro del tornillo.
•El motor debe estar montado firmemente sobre el soporte de reparación antes de quitar
el apoyo del dispositivo de elevación.
•
Revise de manera regular los tornillos de tapa en el ensamble del soporte de reparación para
asegurarse de que estén bien ajustados.
•Aléjese de la parte inferior de la carga que se está levantando o que está suspendida.
•Utilice el gato mecánico cuando sea necesario elevar el motor para rotarlo. Mientras trabaja
con el motor, mantenga el gato en la posición más baja para mantener el centro de gravedad
bajo y reducir así la posibilidad de golpes.
•Libere la presión de sistema LENTAMENTE para bajar un motor. No desenrosque la perilla
de la válvula de liberación más de dos vueltas desde su posición cerrada.
•No se deben hacer modificaciones a este producto.
•Se deben utilizar únicamente los accesorios y adaptadores que el fabricante proporcionó.
•Este dispositivo está diseñado para uso general en ambientes normales. Este dispositivo
no está diseñado para elevar o mover personas, maquinaria agrícola, maquinaria móvil o
para trabajar en ambientes especiales tales como explosivos, inflamables o corrosivos.
Instrucciones de ensamble y funcionamiento Formulario No. 102302, hoja 1 de 3, reverso