
Manual Shut-Off Valve
(Located on top
of refrigerator)
Hold 3/8" Gas
Supply Line
Turn
Figure 1 - Double-Wrenching Gas Fittings
Important Safety Information
Read this information before attempting to perform
service on this refrigerator.
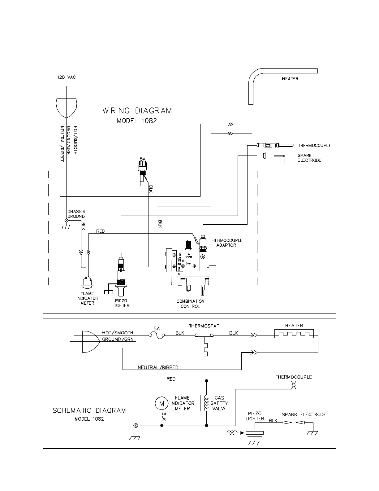
Page 7 shows a wiring pictorial and diagram. Review
both the wiring pictorial and diagram to understand the
electrical circuits and the relationship to the individual
components.
Understandtheserviceproceduresbeforeperforming
service.
Always apply the safety precautions listed below
when servicing this refrigerator. Failure to follow these
safety precautions can result in substantial property
damage, severe personal injury, or death.
•The refrigerator model 1082 is notapproved for use
in R.V. or Marine applications. This refrigerator is
equipped for LP Gas and cannot be converted to
any other fuels (Natural Gas, Butane, etc.).
•This refrigerator must be used in the manner for
which it was designed. Refer to pages 3-6 of this
manual for installation and operating instructions.
•Hazardous voltage can cause property damage,
severe personal injury, or death. Use care when
performing diagnostic procedures. Disconnect the
AC electric source to the refrigerator before replac-
ing any single component.
•The 120 Volt AC circuit must be properly grounded.
Never cut or remove the round grounding prong
from the refrigerator’s AC power cord. Do not use
a two-prong adapter. Donot use an extension cord.
•The use of improper rated fuses can lead to an
electrical fire. In the event of a circuit overload,
replace blown fuses with a fuse specified by Nor-
cold. Fuse specifications are found in the "Specifi-
cation" section ofthismanual.Thecorrectfusesize
is printed adjacent to the fuse on the refrigerator.
•Keep liquids away from electrical connections. Many
liquids are electrically conductive and could cause
serious arcing damage and, in some cases, fire.
•Neverbend,drop,drill,weld,orhammerthecooling
unit. Doing so can cause the cooling unit to rupture,
releasing chemicals under high pressure. Contact
with these chemicals may cause severe burns to
the eyes or skin.
•Neverattempttorepairorrechargethe cooling unit.
A defective cooling unit must be replaced.
•Hazardous vapors. Propane gas can cause an
explosion, resulting in property damage, severe
personal injury, or death. Use caution when work-
ing with or near a propane gas system. Do not
smoke. Do not create sparks or use an open flame
to check gas supply lines or gas connections.
•To prevent gas leaks and damage to the gas
supply lines and fittings, use two wrenches when
connectingordisconnectinggasfittings(SeeFig-
ure 1 below).
•Thisrefrigerator hassharp edges and corners at rear.
Use care when working on this refrigerator. To pre-
vent cuts or abrasions, wear cut resistant gloves.
•Surfaces at the rear of the refrigerator are ex-
tremely hot. Contact with these surfaces can result
in minor burns. Turn the refrigerator "OFF" for
several hours before attempting to service the re-
frigerator.
WARNING
1