■
Designed for Harsh Gas Compressor Scrubber Applications
■
304 Stainless Steel Float Operates in 0.5 Specific Gravity
and Heavier Fluids
■
LS200 Series Rated for 2000 psi (13.8 MPa) [138 bar]
Working Pressure
■
Electric and Pneumatic Models Available
■
Improved Design Provides Better Snap Action and
Dependability with Reduced Number of Moving Parts
■
All Models Screw Directly Into the Vessel or Can Be Mounted
Via External Float Chamber
■
Nickel Plated Body to Provide Improved Corrosion Protection
■
Improved Float Connection Thread Design Provides a More
Secure Connection
■
Listed for Class I, Div. 1, Grp. C & D Locations
■
Canadian Registration Number OF1476.2
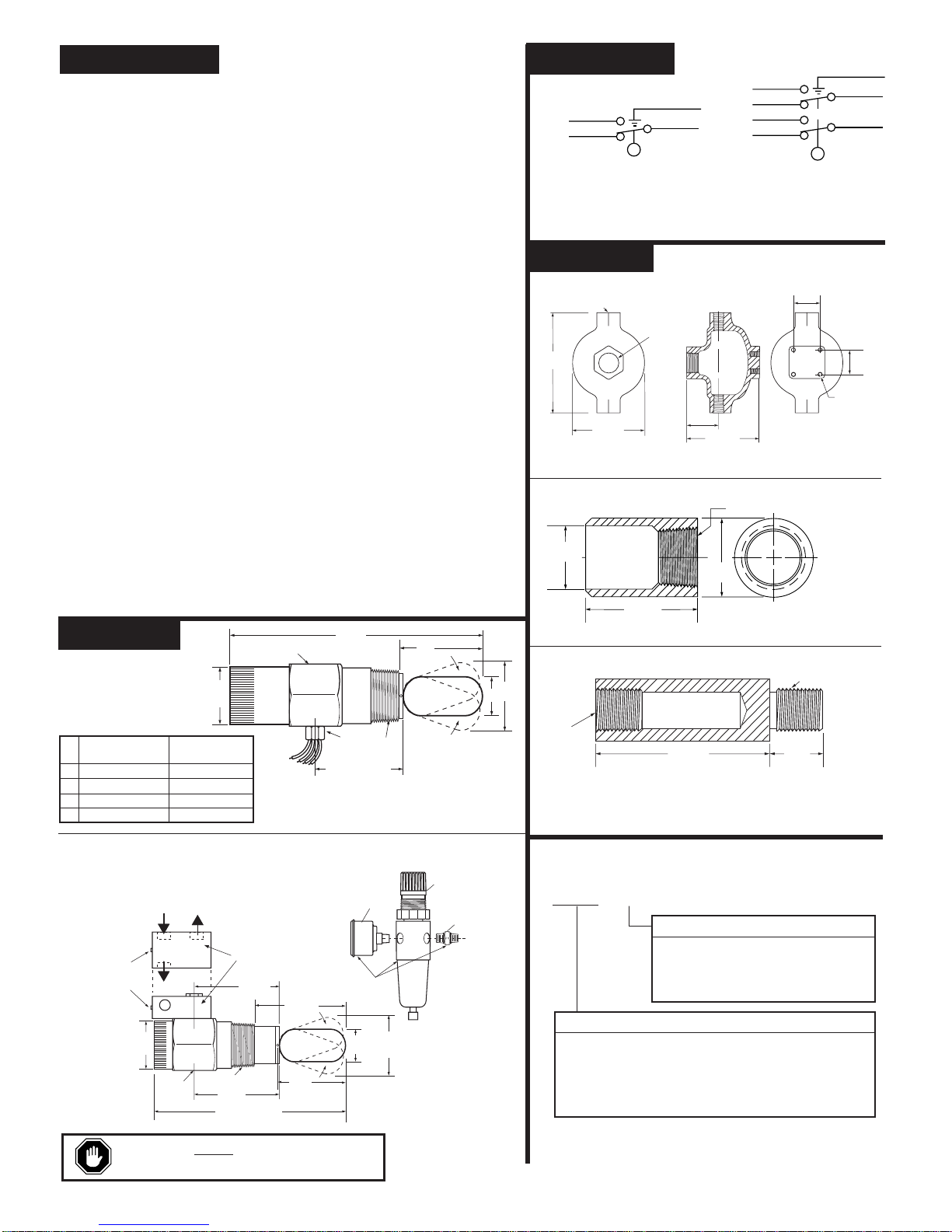
LS200
Liquid Level Switches with 2” NPT mounting are
float activated to operate an electrical SPDT snap switch
(optional DPDT on LS200 models) for alarm or shutdown of
an engine or electric motor. The LS200 screws directly into
the vessel wall and can be used with a weld collar or external
float chamber. L1100 models (1-1/2” NPT) are available.
LS200NDVOR
is a float-activated,
pneumatic-vent level device used to
operate dump valves or similar devices.
The LS200NDVOR provides a 2” NPT
mounting with a pneumatic snap action
output for interfacing with pneumatic
devices such as our DVU scrubber
dump valve or with other pneumatic
instrumentation. This unit is supplied
with a pressure filter regulator and
Murphy pressure gage which are
recommended for improved system life
and trouble-free operation.
LS200NDVO
Pneumatic level switch with snap action
Dump Valve Operator (DVO) without the
Pressure Regulator for those applications
where the system provides a filter regulator
for “instrument quality” air or gas as the
control medium.
LS200N
Pneumatic level switch without the DVO
and filter regulator.
LS-04004B
Effective 02-04
Catalog Section 15
(00-02-0561)
LS200 & L1100 Series Liquid Level Switches FWMurphy
Filter/Regulator &
MURPHYGAGE®
“Instrument
Quality Air/Gas
Supply”
Warranty
A limited warranty on materials and
workmanship is given with this FWMurphy
product. A copy of the warranty may be
viewed or printed by going to
www.fwmurphy.com/warranty.asp.
FWMurphy
P.O. Box 470248 Tulsa, Oklahoma 74147 USA +1 918 317 4100 fax +1 918 317 4266 e-mail sales@fwmurphy.com website www.fwmurphy.com
Control Systems & Services Division, P.O. Box 1819; Rosenberg, TX, 77171 USA • 281-633-4500; fax + • 281-633-4588
FWMurphy
Pending
Pneumatic Level Control
Float actuated level snap-acting switch
controls pneumatic pressure to open
and close dump valve.
LS200NDVOR: Dump Valve Operator,
pressure regulator, and pressure
indicating MURPHYGAGE.®Two piece union design with manual valve operator
allows soft plug and hard seat to be replaced
without disassembling outlet piping or scrubber
pipe connection. Diaphragm actuated valves
operate on 30-70 psi (207-483 kPa; 2-5 bar).
Pneumatic Dump
Valves See DVU-01069B
for more details.
Control
Panel
High Level Shutdown Switch
Stainless steel float actuated level switches to alarm
and/or shutdown the equipment.
LS200: 2” NPT pipe connection; Rated 2000 psi
(13.7MPa) [137bar]; Class I, Division 1. SPDT
snap-switch standard. DPDT Optional.
All Stainless Steel available.
The Murphy Gas Compressor Scrubber Level System (SLS)
The system provides for
liquid control in gas scrubber
applications, by dumping
liquids to drain and protecting
compressors with a high
liquid level switch. Wetted
metal parts are made to
survive constant use in
corrosive environments.
See Bulletin: SLS-04005B for
more details.
Electric Switch
Pneumatic
Switch