
3
VEKA INT E EKO
[ pl ] [ ru ] [ en ] [ de ]
•
•
•
•
•
•
•
•
•
•
•
•
•
•
•
•
•
•
•
•
• стройство предназначено только для ксплу-
атаии в закрытых поеениях при тепера-
туре воздуха от 0 до +40 Cº и относительной
вланости не выше 70 про.
• стройства запреается использовать в по-
тениально взрывоопасной среде.
• стройство предназначено для подачи в си-
стеы вентиляии и кондиионирования толь-
ко чистоо воздуха (без хиических соедине-
ний, способствуих коррозии еталлов; без
вееств, арессивных по отношени к инку,
пластассе, резине; без части твердых, лип-
ких и волокнистых атериалов).
• ледует обратить вниание на иниально
и аксиально допустиу тепературу воз-
душноо потока – от -20 до +40 ºC.
• аксиальная относительная вланость при-
точноо наруноо воздуха – 90
%
.
ксплуатируеые вне поеений вентиляион-
ные установки вклчатся только тода, кода
обеспечиватся установленные изотовителе
обязательные условия:
• еретичность установок, которые перед
онтао складирутся на обекте, долна
быть обеспечена с пооь дополнительных
средств во избеание накопления влаи вну-
три установки.
• сли установка после онтаа не вводится в
постоянну ксплуатаи, обязательно необ-
ходио обеспечить, чтобы в вентиляионну
установку через воздуховоды не попадал те-
плый/вланый воздух, и чтобы не происходи-
ла конденсаия влаи внутри установки.
• случае если установка не ксплуатируется в
течение длительноо вреени, или если вен-
тиляионные установки вклчатся редко, си-
стеу обязательно необходио продувать на
полной оности 1/24 h – просушивать.
• нсталлировано и подклчено напряение
к автоатике вентиляионной установки, си-
стеа водяных изделий наполнена ликоле/
водой.
случае несоблдения тих вышеперечислен-
ных требований изотовитель иеет право не
приенять аранти в отношении появившейся
влаи/воды в испорченных копонентах.
• Unit is designed for indoor use only at tem-
perature between 0°C and +40°C and rela-
tive humidity not exceeding 70%.
• It is forbidden to use the units in potentially
explosive environment.
• Unit is designed for ventilation and condition-
ing systems to supply to a room only clean air
(free of chemical compounds causing metal
corrosion, of substances aggressive to zinc,
plastic and rubber, and of particles of solid,
•
temperature between -20°C and +40°C.
• Maximum outside humidity 90%.
The air handling units installed outdoors shall
be started only when the following obligatory
conditions established by the manufacturer are
met:
• Units that are stored at the site before instal-
lation shall be sealed using additional means
in order to prevent the accumulation of mois-
ture inside the unit.
• If the unit is installed and is not started for
continuous operation, it must be ensured that
no warm/humid air enters the unit through
air ducts and that no moisture condensates
inside the unit.
• If the ventilation units stand idle for a long
time or are started infrequently, the system
must be blown down at the maximum capac-
ity 1/24 h to dehumidify.
• Voltage to the automatics of the unit is in-
stalled and connected; the system of water
In case of failure to comply with the require-
ments set out above, the manufacturer shall
have the right not to apply the warranty in re-
spect of the occurrence of moisture/water in
damaged components.
• Das Gerät ist für den Betrieb ausschließlich in
geschlossenen Räumen bei Temperaturen zwi-
schen 0 ºC und +40 °C und relativer Feuchte
von höchstens 70% bestimmt.
• Die Geräte dürfen nicht in einer explosionsge-
fährdeten Atmosphäre betrieben werden.
• Das Gerät ist dazu bestimmt, in den Lüftungs-
und Klimaanlagen ausschließlich saubere Luft
(ohne chemische Verbindungen, die Metallkor-
rosion hervorrufen; ohne aggressive Substan-
ohne Partikeln von festen, klebenden sowie
faserigen Materialien) in den Raum zu liefern.
• Es ist die minimal und maximal zulässige Luft-
strömungstemperatur zwichen -20 und +40 °C
zu beachten.
• Maximale Zuluftfeuchte 90%
Die im Freien betriebenen Lüftungseinrichtun-
gen werden nur dann eingeschaltet, wenn alle
obligatorischen, durch Hersteller angegebenen
Bedingungen gewährleistet sind. Die Bedingun-
gen sind:
• Die bevor Montage in Baustelle gelagerten Ein-
richtungen sollen zusätzlich verdichtet werden,
um die Feuchtigkeitsansammlung in Einrich-
tung zu vermeiden.
• Wird die Einrichtung montiert, doch instand
-
mer bzw. feuchter Luft in Lüftungseinrichtun-
gen verhindert werden, um Kondensatan-
sammlung in Einrichtung zu vermeiden.
• Werden die Lüftungseinrichtungen nur selten
betrieben oder Betriebspausen ausgesetzt, so
ist das System einmal in 24 Stunden mit ma-
ximaler Leistung zu belüften und zu trocknen.
• Die Steuerungselektronik der Lüftungsein-
richtung ist montiert und stromgespeist. Das
Wassersystem ist mit Mischung von Glykol und
Wasser befüllt.
Der Hersteller übernimmt keine Gewährleistung,
die im Folge der Nichtbeachtung oben genannten
Anweisungen und daraus resultierenden Einrich-
tungsbeschädigungen durch Feuchtigkeits- bzw.
Wassereinwirkung entstehen.
• е используйте данное устройство в елях, не
указанных в ео предназначении.
• е разбирайте и не одииируйте никои
образо устройство. то оет вызвать еха-
ническу полоку или дае траву.
• При онтае и обслуивании устройства
пользуйтесь спеиальной рабочей одедой
и обувь. удьте остороны: улы и кроки
устройства и составляих ео частей оут
быть острыи и раняии.
• е находитесь рядо с вентиляторо в сво-
бодной одеде, которая оет быть втянута в
работаий вентилятор.
• се упакованные на заводе устройства не яв-
лятся полность отовыи к ксплуатаии.
стройства оут ксплуатироваться лишь по-
сле подсоединения к воздуховода или после
установки заитных решеток в приточное и
вытяное отверстия.
• е просовывайте пальы или друие преде-
ты в заитные решетки приточных и вытя-
ных отверстий или в подсоединенный возду-
ховод. При попадании лбоо постороннео
предета в устройство, неедленно откл-
чите ео от источника лектропитания. Пе-
ред устранение постороннео предета убе-
дитесь, что всякое еханическое двиение в
устройстве прекраено. бедитесь таке, что
случайное вклчение устройства невозоно.
• збеайте непосредственноо контакта с по-
токо воздуха, всасываеоо и удаляеоо
устройство.
• е подклчайте устройство к лектросети
иных параетров, неели то указано на на-
клейке изделия на корпусе устройства.
• икода не используйте повреденный про-
• Do not use this unit for purposes other than
those provided in its design.
• Do not dismantle and modify the unit. Such
actions can cause mechanical fault or even
injury.
• Use special working clothes when installing
and maintaining the unit. Be careful – angles
and edges of the unit and its components can
be sharp and cause injuries.
• Being near the unit, do not wear free stream-
ing clothes that could be sucked into the op-
erating fan.
• All products packed in the factory are not pre-
pared for eventual operation. The units can
be used only by connecting them to air ducts
or by installing protection grating in air intake
and discharge openings.
•
protection grating of air intake and discharge
or into connected air duct. In case any foreign
body get into the unit, disconnect the power
supply source immediately. Before removal
of foreign body, make sure that any me-
chanical movement in the unit has stopped.
In addition, make sure that the accidental
switching-on of the unit is impossible.
•
and extracted air.
• Do not connect the unit to the mains other
than indicated in the manufacturer’s label on
the casing of the unit.
• Never use a damaged power supply cable.
• Never touch with wet hands the power supply
cables connected to the mains.
• Never dip extension cords and plugs in water.
• Do not install and use the unit on uneven sur-
• Setzen Sie das Gerät ausschließlich bestim-
mungsgemäß ein.
• Unternehmen Sie keine Umbauten und Ver-
änderungen am Gerät. Dies kann zu mecha-
nischen Beschädigungen und Verletzungen
führen.
• Bei Montage und Wartung des Gerätes tragen
Sie spezielle Arbeitskleidung. Seien Sie vor-
sichtig – die Ecken und Kanten des Gerätes
und seiner Bauteile können scharf sein und
Verletzungen zufügen.
• Tragen Sie am Gerät keine weite Kleidung, die
in den funktionierenden Ventilator eingezogen
werden kann.
• Sämtliche im Werk verpackten Erzeugnisse
sind noch nicht einsatzbereit. Die Geräte dür-
fen nur nach dem Anschluss an die Luftleitun-
gen bzw. nach dem Einbau der Schutzgitter
genommen werden.
• Greifen Sie nicht und stecken Sie keine Ge-
genstände in die Schutzgitter für Zu- und Abluft
bzw. in die angeschlossene Luftleitung. Sollte
ein beliebiger Fremdkörper in das Gerät gera-
ten, ist dieses sofort vom Netz zu trennen. Vor
dem Entfernen des Fremdkörpers ist sicherzu-
stellen, dass jegliche mechanische Bewegung
im Gerät zum Stillstand gekommen ist. Außer-
dem ist sicherzustellen, dass ein ungewolltes
Wiedereinschalten des Gerätes nicht möglich
ist.
• Vermeiden Sie einen direkten Kontakt zur Zu-
und Abluftströmung des Gerätes.
• Schließen Sie das Gerät an kein anderes
Stromnetz an, als im Produktaufkleber auf dem
Gerätegehäuse angegeben.
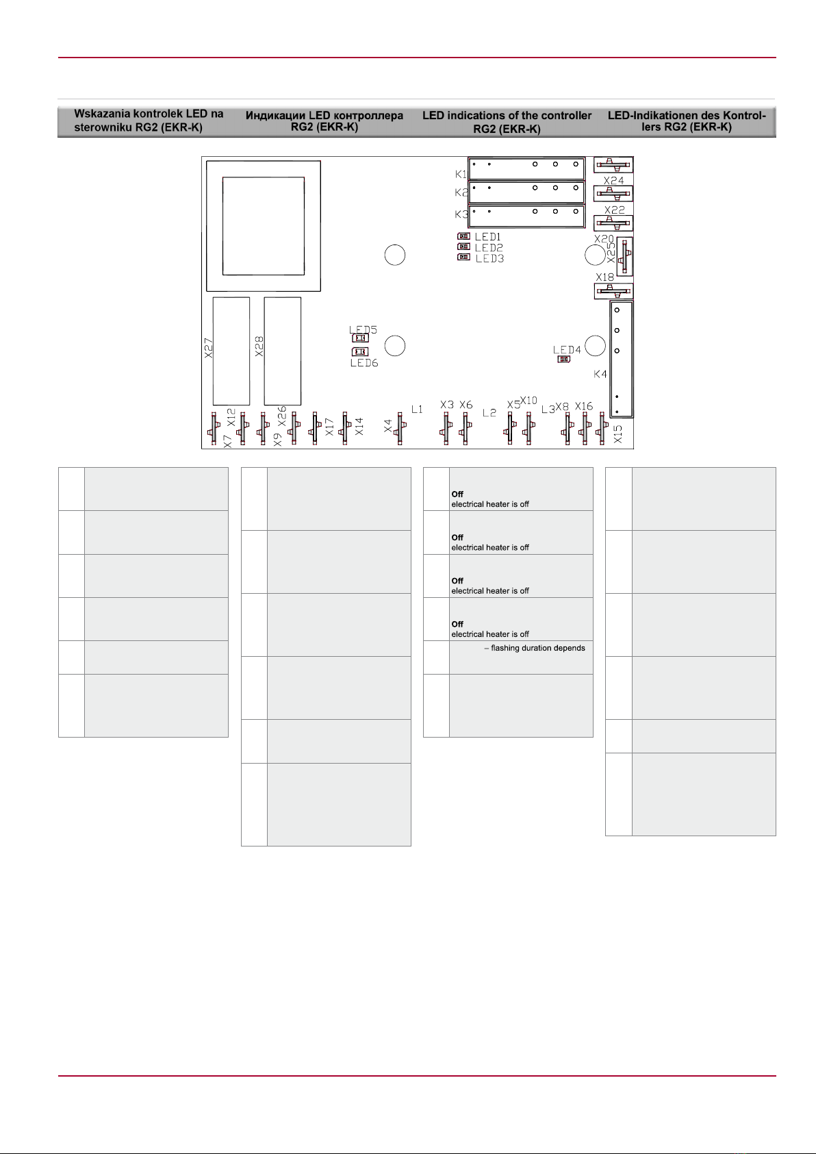
•
• онтирована автоатика управления.
• онтирована оторизованная заслонка при-
точноо воздуха.
• онтирована систеа иксаии степени за-
рязнения ильтров.
•
• Integrierte motorisch gesteuerte Zuluftklappe.
• Integriertes System zur Filterverschmutzungs-
kontrolle.
Zamontowany system pomiaru zanieczysz-
czenia filtra.
Warunki robocze
przeznaczone jest do
w temperatu-
rze od 0°C do +40°C i przy
Zabrania pracy w
przeznaczone jest do systemów
wentylacji i klimatyzacji do
czyste powietrze
(wolne od chemicznych -
cych substancji agresywnych
cynku, tworzyw sztucznych i gumy
oraz wolne od spoiw i
Minimalna i maksymalna dopuszczalna
temperatura powietrza wynosi -20°C/+40°C.
Centrale klimatyzacyjne zamontowane na
budynku
po
na miejscu przed
uszczelnione z
dodatkowych w, aby zapobiec
zamontowane i nieeksploatowane
w trybie w taki
sposób, aby do jego nie przedostawa-
powietrze poprzez
powietrzne oraz aby w jego nie
utrzymywane przez
czas w trybie system
z maksymalnej
Zainstalowano i
automatyki centrali klimatyzacyjnej;
W przypadku
producent ma prawo do od
gwarancji w odniesieniu do przypadków
wilgoci/wody w uszkodzonych
komponentach.
Z nie wolno do celów innych
nie ani
tego typu
do usterki mechanicznej, a nawet
Podczas i konserwacji
odpowiednie ubranie robocze.
Uwaga – i i jego
komponentów ostre i
W nie
które zassane do
Wszystkie produkty zapakowane fabrycznie nie
gotowe do ewentualnej eksploatacji. Z
po
zamontowaniu ich w powietrznych lub
po zamontowaniu kratek w
otworach wlotowych i wylotowych.
Do kratek lub
powietrznego nie palców ani
innych przedmiotów. w znajdzie
jakikolwiek przedmiot, natychmiast
je od zasilania. Przed
przedmiotu z
zablokowano wszelkie ruchy
ponadto przed
przypadkowym uruchomieniem.
kontaktu z
powietrza doprowadzanego i odprowadzanego.
nie wolno do sieci o
innych parametrach parametry podane przez
producenta na tabliczce znamionowej.
Nigdy nie uszkodzonego kabla
Kabla do sieci nie
i wtyczek nie w
wodzie.