
NOTE: The timer switch must be installed in a wallbox that has a
Load connection. The Wired Switch Companions (VP0SR-1L) must
be installed in a wallbox with a Line Hot connection and a Neutral
connection. A Neutral wire to the Wired Switch Companion (VP0SR-1L)
needs to be added as shown.
If you are unsure about any part of these instructions, consult
an electrician.
NOTE: Maximum wire length from timer switch to all installed Wire
Switch Companion devices cannot exceed 300 ft (90 m).
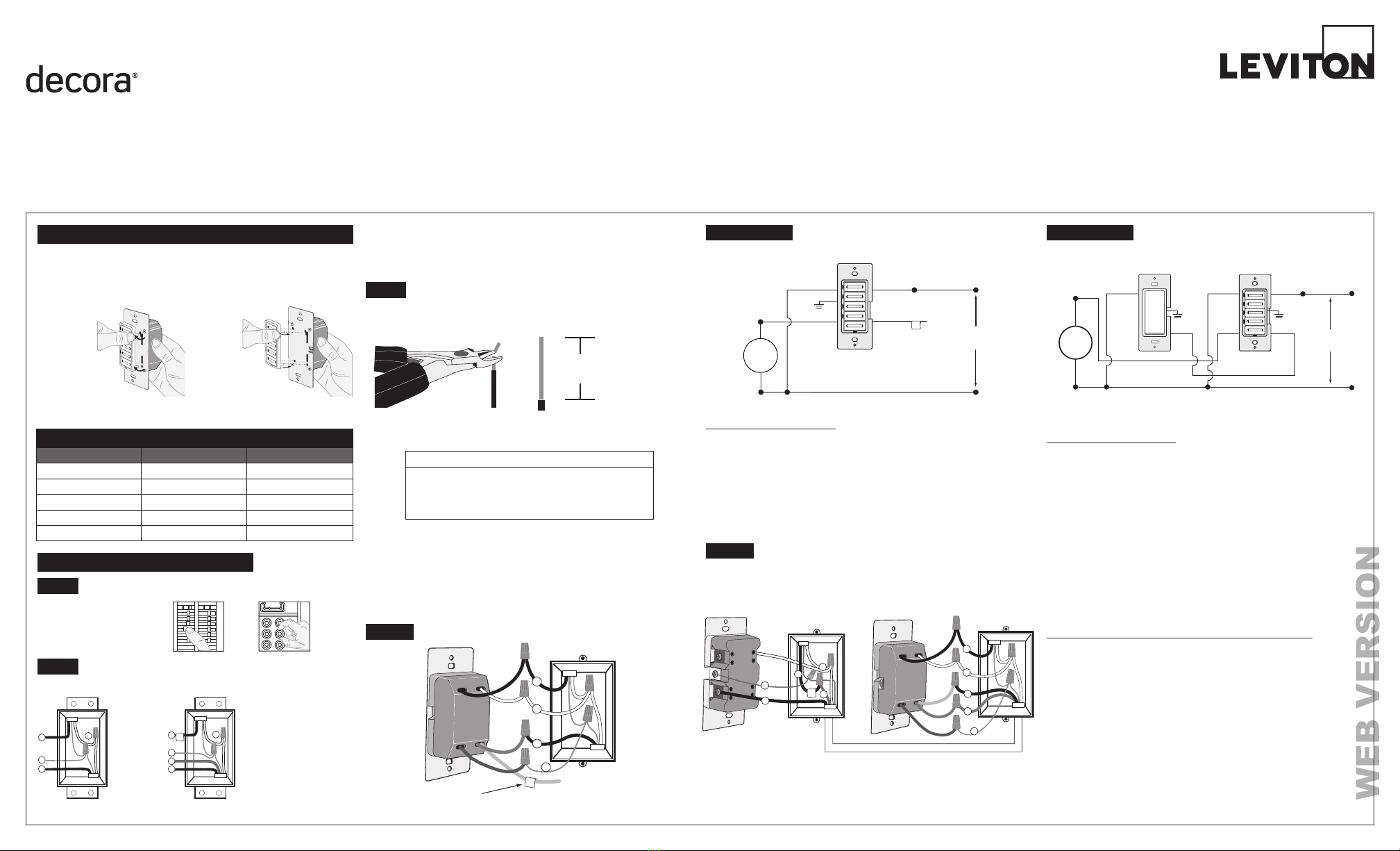
WIRING WIRED SWITCH COMPANIONS (VP0SR-1L)
(wallbox with Line Hot connection):
Connect wires per WIRING DIAGRAM as follows:
• Green or bare copper wire in wallbox to Green terminal screw.
• Line Hot (common) wallbox wire identified (tagged) when removing
old switch and First Traveler to wired switch companion screw
marked "BK."
• Second Traveler wallbox wire to wired switch companion terminal
screw marked "YL/RD" (note wire color). This traveler from the wired
switch companion must go to the Yellow/Red lead on the timer switch.
• Line Neutral wallbox wire to wired switch companion terminal screw
marked "WH."
WIRING TIMER SWITCH (wallbox with Load connection):
Connect wires per WIRING DIAGRAM as follows:
• Green or bare copper wire in wallbox to Green lead.
• Load wallbox wire identified (tagged) when removing old switch to
Red lead.
• First Traveler Line Hot to Black lead.
• Remove Red insulating label from Yellow/Red lead.
• Second Traveler wallbox wire (note color as above) to Yellow/Red
lead. This traveler from the timer switch must go to the terminal screw
on the wired switch companion marked "YL/RD."
• Line Neutral wallbox wire to White lead.
• Proceed to Step 5.
3-way wiring with Wired Switch Companions
(VP0SR-1L) application:
Additional
Neutral Wire
BK
RD
YL/RD
3
5
1
2
4
WH
Timer Switch
1
2
Black
White
Red
4
Yellow/
Red
Green 3
5
Wired Switch Companions
(VP0SR-1L)
BK - Black
WH - White
YL/RD - Yellow/Red
RD - Red
Hot (Black)
Neutral (White)
Timer Switch
Wired Switch Companions
(VP0SR-1L)
YL/RD RD YL/RD
WH
BK
BK
Black
White
Line
120VAC, 60Hz
WH
Load
Green
Ground
Green
Ground
BK - Black
WH - White
YL/RD - Yellow/Red
RD - Red
• Restore power at circuit breaker or fuse.
• Press any timer button to turn the load ON.
If the load does not turn ON, refer to the
TROUBLESHOOTING section.
Timer Switch mounting:
TURN OFF POWER AT CIRCUIT BREAKER OR FUSE.
Installation may now be completed by
tightening mounting screws into wallbox.
Attach wallplate.
Testing your Timer Switch prior to mounting
in wallbox: • Position all wires to provide room in
outlet wallbox for device.
• Ensure that the word “TOP” is facing
up on device strap.
• Partially screw in mounting screws in
wallbox mounting holes.
NOTE: Dress wires with a bend as
shown in diagram in order to relieve
stress when mounting device.
Step 5Step 4c
Step 6
Restore power:
Restore power at circuit breaker or fuse.
Installation is complete.
Step 7
1. To turn the load ON press one of the timer buttons. The green LED
adjacent to that button will illuminate and the timer will begin to
countdown for the selected timer period.
2. To select a different countdown time press the button corresponding to
the desired time. The LED adjacent to that button will illuminate and the
timer will begin countdown from the new selection.
3. To turn the load OFF press the OFF button or wait until the selected
amount of time has passed. The LED adjacent to each button will
extinguish as time passes to the next preset level.
OPERATION
FCC AND INDUSTRY CANADA COMPLIANCE STATEMENT:
This device complies with Part 15 of the FCC Rules and ISED
License-exempt RSS standard(s). Operation is subject to the following
two conditions: (1) This device may not cause harmful interference,
and (2) This device must accept any interference received, including
interference that may cause undesired operation. Changes or
modifications not expressly approved by the party responsible for
compliance could void the user's authority to operate the equipment.
To comply with FCC/ISED RF exposure limits for general population /
uncontrolled exposure, the antenna(s) used for this transmitter must
be installed to provide a separation distance of at least 20 cm from all
persons and must not be co-located or operating in conjunction with any
other antenna or transmitter different from that to which the receiver
is connected.
TROUBLESHOOTING
• Intermittent operation
- Load has a bad connection.
- Wires are not secured firmly to leads of timer switch and terminals of
the Wired Switch Companion.
• Load does not turn ON and Locator LED does not turn ON
- Circuit breaker or fuse has tripped.
- Load is burned out.
- Neutral connection is not wired.
• Wired Switch Companion does not operate load
- Ensure that total wire length does not exceed 300 ft (90 m).
- Ensure that a Neutral wire is used with Wired Switch Companion.
Timer Select Mode - You can change the time outs on your timer
without buying a new device.
ADVANCED PROGRAMMING FEATURE
• Four (4) Timer buttons and an OFF button.
• Each timer button has an adjacent green LED to indicate the current
countdown time.
• The green bottom LED is ON when the load is OFF and is OFF when
the load is ON.
• Your timer switch can be easily programmed to function as another model.
Timer override
To override the Timer countdown press and hold the top button for several
seconds. The locator LED will turn amber to indicate the EXTENDED ON
state. In this state the timer will automatically turn OFF after 24 hours. To exit
the EXTENDED ON state press any of the timer buttons or the OFF switch.
Your timer can be programmed to function as any of the timers in the
table below:
NOTE: If you change the ON times of your timer the printed face will no
longer match the ON times. A timer change kit should be purchased to
alleviate this situation.
To select different ON times please follow the subsequent steps:
1. Press and hold the first and third timer buttons simultaneously to enter
Select Timer Mode.
2. The timer’s indicator LED will turn AMBER. Continue to hold until the
indicator LED and the current selected mode start flashing GREEN.
3. Press button (from the table above) that corresponds with the time outs
you desire and it will then start flashing GREEN.
4. Pressing OFF will save programming, exit Programming Mode, and turn
timer off.
NOTE: The timer will also exit Programming Mode automatically if no
buttons are pressed for 3 minutes.
Multi Location Control
The Timer can be turned ON or OFF from any of the Decora Wired
Switch Companion locations. The default ON time when a wired switch
companion is pressed to turn the load ON will be the last countdown time
chosen. The timer can be controlled from up to 10 locations using wired
switch companion (VP0SR-10) or up to 5 locations using wired switch
companions (VP0SR-1L).
NOTE: Sharing a Neutral wire may cause improper operation. Connect
all timers to the same phase or run a separate Neutral to each phase.
FEATURES OF YOUR COUNTDOWN TIMER SWITCH
Button 1 - Longest ON time
Button 2
LED indicator
lights
Locator LED
Button 3
Button 4 - Shortest ON time
OFF switch
Timer buttons
Timer Switch Number Buttons Time outs
LTB02 1 (top timer button) 15m, 30m, 1hr, 2hr
LTB04 (special
order only) 1 (top timer button) 30m, 1hr, 2hr, 4hr
LTB12 1 (top timer button) 2, 4, 8, 12 hours
LTB60 2 10, 20, 30, 60 minutes
LTB30 3 5, 10, 15, 30 minutes
LTB15 4 (bottom timer button) 2, 5,10,15 minutes
N/A 5 - OFF button N/A
NOTE: LTB02, LTB04 and LTB12 are not programmable as a 2, 4, or
12- hour timer respectively, but can be programmed to function as any of
the other timers.
For Technical Assistance Call: 1-800-824-3005 (USA Only) or 1-800-405-5320 (Canada Only) www.leviton.com© 2022 Leviton Mfg. Co., Inc.
FOR CANADA ONLY
For warranty information and/or product returns, residents of Canada should
contact Leviton in writing at Leviton Manufacturing of Canada ULC to the
attention of the Quality Assurance Department, 165 Hymus Blvd, Pointe-
Claire (Quebec), Canada H9R 1E9 or by telephone at 1 800 405-5320.
LIMITED 5 YEAR PRODUCT WARRANTY
For Leviton’s limited 5 year product warranty, go to www.leviton.com. For a
printed copy of the warranty you may call 1-800-323-8920 or write to Leviton
Manufacturing Co., Inc., Att: Customer Service Dept., 201 North Service
Road, Melville, New York 11747.
FCC CAUTION
Any changes or modifications not expressly approved by Leviton
Manufacturing Co., Inc., could void the user's authority to operate
the equipment.
TRADEMARK DISCLAIMER:
Use herein of third party trademarks, service marks, trade names, brand
names and/or product names are for informational purposes only, are/
may be the trademarks of their respective owners; such use is not meant
to imply affiliation, sponsorship, or endorsement.
Patents covering this product, if any, can be found on
Leviton.com/patents.
All Rights Including Trade Dress Rights Reserved.