Spec Sheet
Burner System Loader System
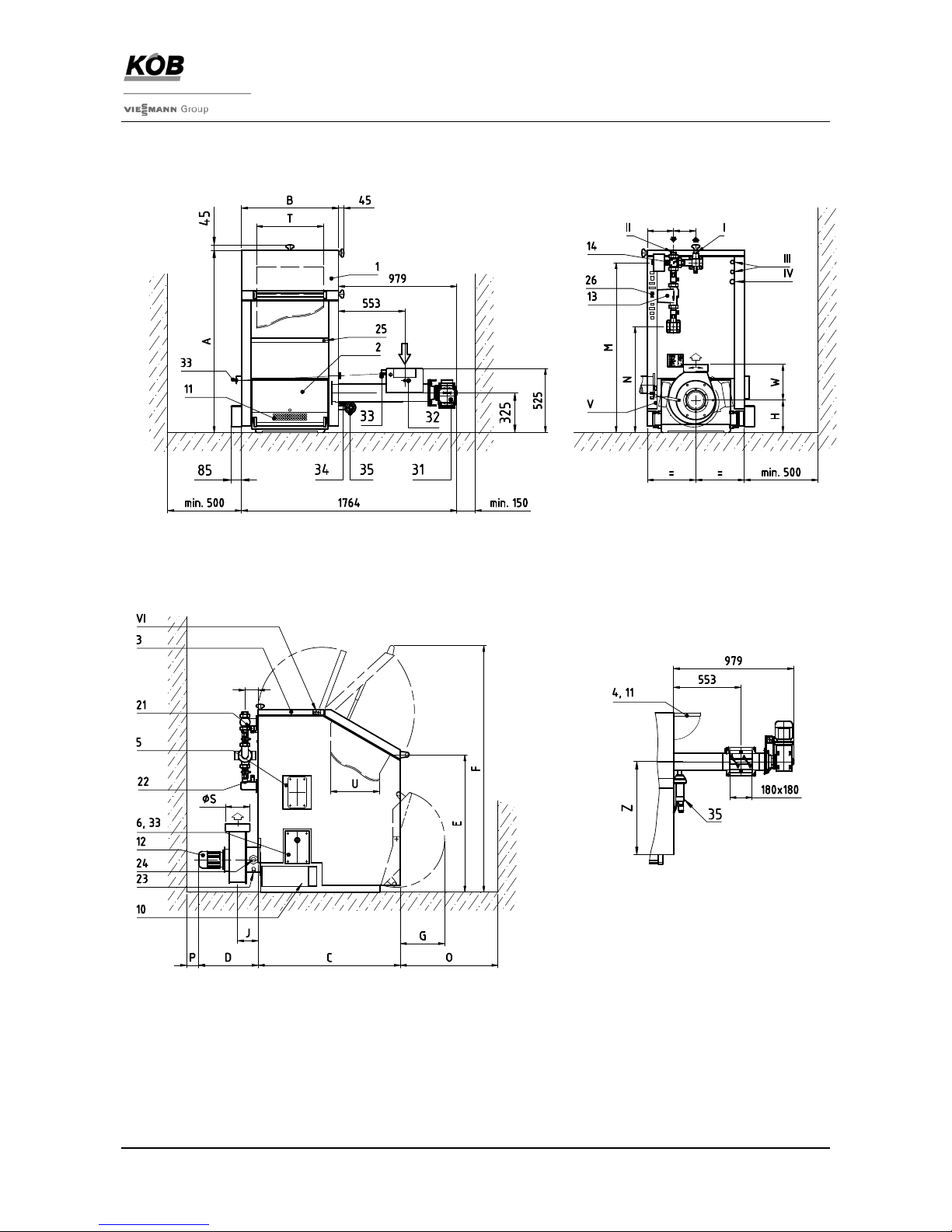
PYROMAT-DYN
1
Köb
Holzheizsysteme
GmbH,
Flotzbachstr.
33,
A-6922
Wo
lfurt,
Tel.
+43/5574/6770-0,
Fax
65707,
E-Mail:
[email protected] Subject to technical changes
3010-1
2009-03-01_GB
Description:
The PYROMAT-DYN is a boiler with patented double combustion chamber. Which means that the burner system enables
optimized operation with automatic loading (shavings, chippings from waste wood, wood chippings, max. W35; G50) and
may also be used with logs. A large loading shaft with loading lid and separate grid has been fitted in front of the main
combustion chamber to make loading wood easy. In automatic operation, the burner system is suitable for all dry to moist
wood fuels (max. W35). The control is integrated into the burner system with connector-ready cabling to the sensors and
motors. Which permits simple and rapid installation. The PYROMAT-DYN has been tested and approved in accordance
with the latest quality criteria in compliance with EN 303-5 heating boilers for solid fuels,
CE certification as per European Machinery Directive and continuous quality assurance by TÜV.
Max. flow temperature: 100°C
Max. operating pressure: 3.0 bar
Electric connection: 3 x 400V
Safety heat exchanger: Built into the boiler
Function:
- In manual operation, chopped wood and waste wood are degassed on the incineration grate situated before the
main combustion chamber. Simultaneous operation with automatic loading is not possible.
- In automatic operation the feed auger conveys the material to be burned into the main combustion chamber for
degasification.
The fasteners for the burn-back sensor and the thermally operated extinguisher valve are situated on the conveyor
pipe. Above the auger, there is a metering container with a light barrier to ascertain the level of the fuel isolating layer
required according to TRD 414.
- In automatic operation the material to be incinerated is ignited automatically by an electric hot air blower.
The combustion gases are entirely burned out in the afterburn chamber together with secondary airflow.
- The ash is mechanically removed from the main combustion chamber.
- In the upright pipe heat exchanger, the thermal energy from the combustion gases is transferred to
the boiler water. The vertical surfaces of the heat exchanger are regularly cleaned by motor-driven,
moving coil springs.
- The speed-controlled exhaust blower was specially designed for operation in wood heating systems and is very quiet.
- The negative pressure created by it produces a high degree of safety against burn-back in automatic operation and a
convenient feed function in manual operation.
- An integrated heat management system (accumulator-temperature-guided with return circuit valve) enables the best
possible controlled operation.
Scope of delivery:
-Boiler with double combustion chamber, ash pan, kindling and cleaning utensils, coil springs for the heat exchanger
cleaning system, mechanical drive with position sensor for removing the ash from the main combustion chamber.
- Exhaust blower, plug-and-play
- Integrated ECOTRONIC control system (decentralised microprocessor system via CAN-bus), consisting of:
Boiler control panel, control module for mounting preferably on a wall, bus cable for the drive motors wired to
output plug
- Feed auger with isolating layer, incl. Starttec drive via CAN-bus (including data transmission line) for gentle start-up,
automatic reversing and overload safeguard, light barriers for combustion chamber and metering container
-Automatic ignition system
- Burner group ready-installed on connecting flange, consisting of burner pump, two blockage units
Burner control valve, forward and return flow sensors incl. fittings.
-Three KTY heat accumulator sensors, incl. dipping shell (1/2" x 280 mm long) wired together to plug
-Four-pin master switch, uninstalled (for installation near the control module)
ACCESSORIES for PYROMAT-DYN (Article KPM-…) at extra charge:
Name Article Text Sizes Use
Reduction exhaust connection KPM-… 3110 3110 existing chimney 180 mm dia.
Exhaust blower-intake port 90° KPM-… 3110 3110 special exhaust gas conveyance
Exhaust gas deduster KPM-… 3110 3110 optional
De-ashing into the container 20 L KPM-DYN-AS 3200 3200 optional
ECO function for PYROMAT-DYN LSR-DYN 3200 - for use with logs; incl. storage
Error report 230 V ECO-ZA 3200 - optional
External requirements ECO-ANF 3200 - optional
Discharge systems ADE/ADF 3300 3300 material transport silo to boiler
Heater control, module extensions ECO-… 4000ff - optional
Data cable for operating module ECO-… 4020 - required
Boiler safety devices K-… 4500 - optional
Extinguishing equipment K-… 4550 4550 optional