
2 / 240
2019/08
1 Einleitung 4
1.1 Produktbeschreibung, allgemein ......................................................................................4
1.2 Allgemeine Hinweise zu dieser Betriebs- und Wartungsanleitung ...................................5
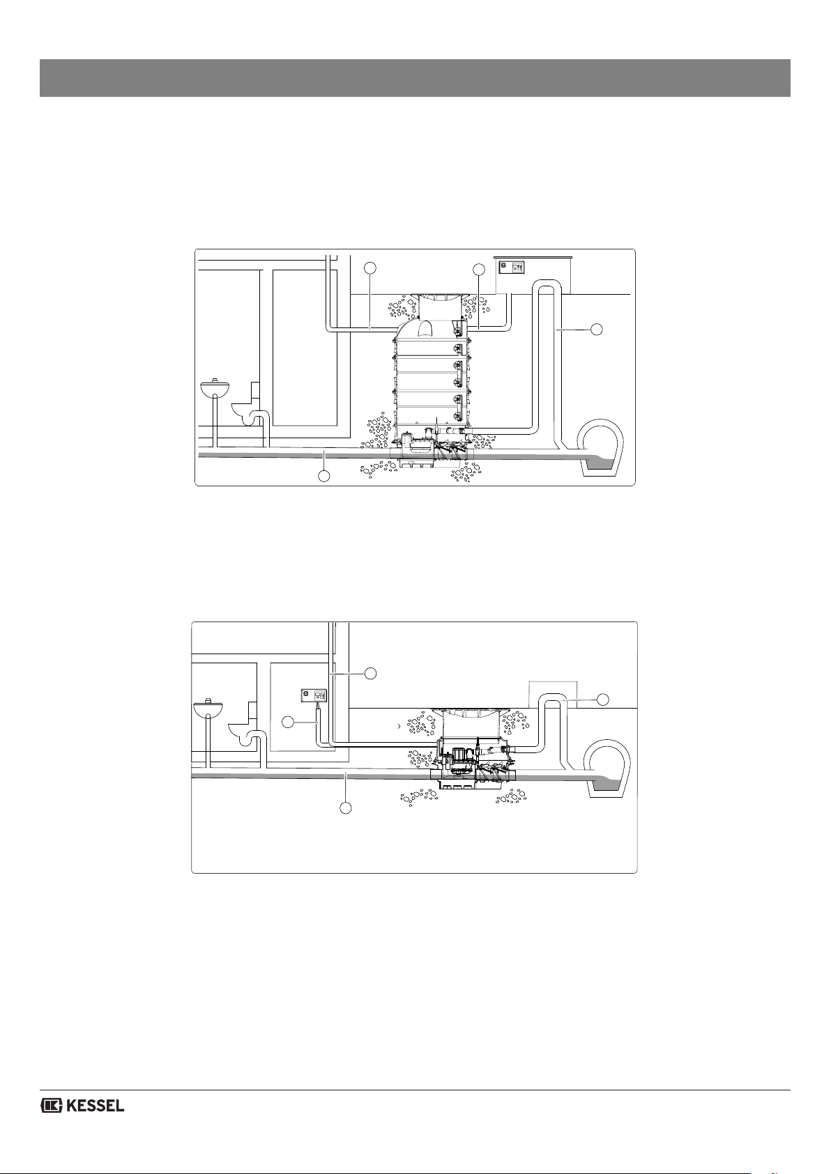
1.3 Funktionsprinzip ...............................................................................................................6
1.3.1 Funktionsprinzip Ecolift XL ...............................................................................................6
1.3.2 Funktionsprinzip niedrigster Einbau ................................................................................. 6
1.4 Typenschild.......................................................................................................................7
1.5 Lieferumfang.....................................................................................................................8
1.5.1 Variante Ecolift..................................................................................................................8
1.6 Baugruppen und Funktionsmerkmale ..............................................................................9
1.6.1 Variante Ecolift..................................................................................................................9
2 Sicherheit 10
2.1 Bestimmungsgemäße Verwendung..................................................................................10
2.2 Personalauswahl und -qualikation..................................................................................10
2.3 Organisatorische Sicherheits-Maßnahmen ......................................................................10
2.4 Gefahren, die vom Produkt ausgehen ..............................................................................11
2.4.1 Gefahr durch besondere Örtlichkeit / Umgebungsbedingungen......................................11
2.4.2 Gefahr durch elektrischen Schlag bei abgeschraubtem Stecker.....................................11
2.4.3 Gefahr durch gesundheitsgefährdende Atmosphäre .......................................................11
2.4.4 Gefahr für die Gesundheit ................................................................................................11
2.4.5 Gefahr durch Lärm............................................................................................................ 11
2.4.6 Explosionsgefahr ..............................................................................................................11
2.4.7 Gefahr durch Hitze............................................................................................................ 12
2.4.8 Gefahr durch unerwartetes Anlaufen einer Pumpe...........................................................12
2.4.9 Gefahr des Ertrinkens im Anlagenschacht .......................................................................12
3 Montage 13
3.1 Allgemeines zur Montage .................................................................................................13
3.2 Behälter xieren................................................................................................................13
3.3 Druckleitungsanschluss....................................................................................................13
3.4 Abwasserpumpe(n) montieren..........................................................................................14
3.4.1 Pumpenentnahme aus dem Schacht ............................................................................... 14
3.5 Alarmsensor montieren.....................................................................................................14
3.6 Kleinkompressor zur Lufteinperlung montieren................................................................15
3.7 Optische Sonde an Rückstauklappe(n) montieren ...........................................................15
3.8 Antriebsmotor Rückstauklappe(n) montieren ...................................................................16
Inhaltsverzeichnis