Contents
1. Introduction to the IDS 816 ----------------------------------------------------------------------------- 8
1.1 Features of the IDS 816--------------------------------------------------------------------------------------8
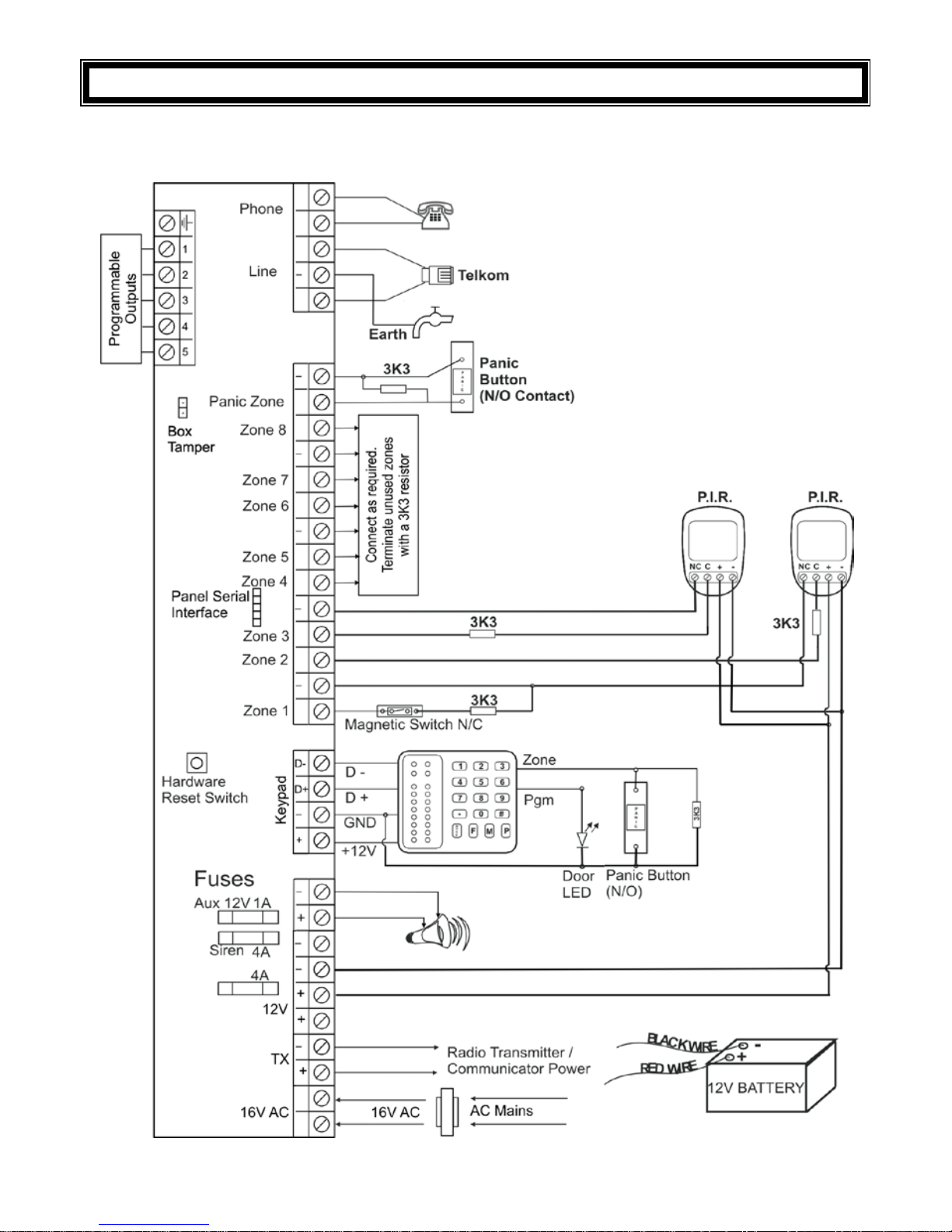
2. Installation and Wiring ----------------------------------------------------------------------------------- 9
2.1 Additional Technical Data --------------------------------------------------------------------------------- 10
2.2 End-of-Line Resistors--------------------------------------------------------------------------------------- 10
2.3 Box Tamper Input ------------------------------------------------------------------------------------------- 12
2.4 Installing an Expander Module --------------------------------------------------------------------------- 12
2.5 Connecting the Telephone Communicator------------------------------------------------------------ 12
2.6 Programmable Outputs------------------------------------------------------------------------------------ 12
2.7 Key-switch or Remote Control Unit---------------------------------------------------------------------- 12
2.8 IDS Remote Receiver--------------------------------------------------------------------------------------- 13
2.9 Radio Transmitter Connection---------------------------------------------------------------------------- 13
3. Hardware Reset Switch ---------------------------------------------------------------------------------13
4. Enrolling Keypads and Other Devices-------------------------------------------------------------13
4.1 Replacing a Faulty Keypad/Device---------------------------------------------------------------------- 14
4.2 Defaulting Keypads ----------------------------------------------------------------------------------------- 14
5. Event Log ---------------------------------------------------------------------------------------15
6. Download Code ---------------------------------------------------------------------------------------15
6.1 Programming the Panel------------------------------------------------------------------------------------ 15
6.2 Location Values---------------------------------------------------------------------------------------------- 15
7. Programming the Panel---------------------------------------------------------------------------------16
7.1 Entering Program Mode ----------------------------------------------------------------------------------- 17
7.2 Programming Standard Locations ---------------------------------------------------------------------- 17
7.3 Programming Extended Locations ---------------------------------------------------------------------- 17
7.4 Programming a Bitmapped Location ------------------------------------------------------------------- 18
7.5 Incorrect Data Entries -------------------------------------------------------------------------------------- 18
7.6 Programming Location Summary ----------------------------------------------------------------------- 18
7.6.1 Zone Options------------------------------------------------------------------------------------------------- 19
7.6.2 System Options---------------------------------------------------------------------------------------------- 23
8. System Reporting Codes (4 x 2 and Domestic) ------------------------------------------------28
9. System Programmable Outputs----------------------------------------------------------------------30
10. System Clock Options-----------------------------------------------------------------------------------32
11. Communicator Options ---------------------------------------------------------------------------------34
11.1 Programming Telephone Numbers --------------------------------------------------------------------- 40
11.2 Telephone Number Storage Locations----------------------------------------------------------------- 41
11.3 Download Options ------------------------------------------------------------------------------------------ 41
12. Partition Setup ---------------------------------------------------------------------------------------42
13. User Options ---------------------------------------------------------------------------------------48