10
COLO
HIGH
AC/SERVICE
SET TEMP.
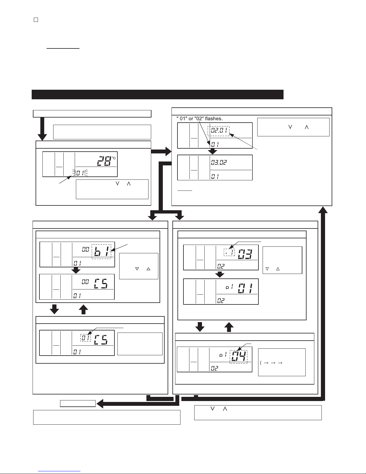
"04" indicated. Select the address of the indoor
unit to be changed.
COLO
HIGH
AC/SERVICE
ADDS RN
COLO
HIGH
AC/SERVICE
ADDS RN
The address and refrigerant cycle
number of the indoor unit to be set
change from flashing to remaining lit.
COLO
HIGH
AC/
ADDS RN
SERVICE
Press the "TEMP." or
switch to select the address of
the indoor unit and then press the
"CHECK" switch.
Press the temperature control or
switch, select "04" for the address
change mode, and then press the
"CHECK" switch.
Normal Mode (when unit is not operating)
1. Change to the optional setting mode.
Press the "CHECK" switch and the "RESET"
switch simultaneously for more than 3 seconds.
"CHECK"
switch
3. Selection of Indoor Unit
2. Selection of Optional Setting Mode
"SERVICE" is
indicated and the
mode number is
flashed.
NOTE:
* In case of selecting the address not to change, "NO FUNCTION" is
displayed.
"CHECK" switch
Select the new address to be used after
changing the address.
The refrigerant cycle number display can be
changed from 00 to 63 by pressing the "TIME"
or switch, and the unit number display can be
changed from 00 to 63 by pressing the "TEMP."
control or switch.
remaining lit when the "CHECK" switch is pressed
The address display changes from flashing to
after selecting an address.
NOTE:
A refrigerant cycle number of "99" is used in case
of temporarily avoiding setting an address when
all indoor unit refrigerant cycle numbers or unit
numbers are in use. If an address has been set
to "99", make sure to subsequently change the
address to an address within the normal address
range.
The result of changing the address is displayed several seconds after the "CHECK" switch has been pressed. "AH" is temporarily
displayed if address change processing has been completely succeeded, while "EE" is temporarily displayed if the address was unable
to be changed. If this happens, repeat the procedure for changing the address.
4. Change the address of the indoor unit.
5. Changing the address of another indoor unit.
Select the address of the indoor unit to be changed.
COLO
HIGH
AC/SERVICE
ADDS RN Pressing the "TEMP
." control or switch after the result of an address change is displayed in step 4 for
changing the address of an indoor unit, returns to the selection of an indoor unit of step 3.
Repeat steps 3 and 4 until all indoor unit address changes have been completed.
6. Ending Address Change.
"AC" flashes while connections are
being checked.
Press the "RESET" switch
during selection of an indoor
unit of step 3, return to the
normal mode.
COLO
HIGH
AC/SERVICE
ADDS RN
7. Turning ON Power of Indoor Unit.
Once turn OFF the power of the indoor unit 3 to 5 minutes after
completing step 6. After the display on the controller is no
longer displayed, turn ON the power of the indoor unit.
unit has been successfully
changed, processing for
checking connections begins.
Once the address of the indoor NOTE:
After ending address change in step 6, make sure to turn off the
power of the indoor unit. If this procedure is not performed, the
automatic address function may not be performed properly.
NOTE:
In the case of having changed the address of the indoor unit with
the controller, make sure to record the new refrigerant cycle
number and unit number of the indoor unit that has been
changed in the entry column on the printed board. Entry column
V
V
(3) Address Change Mode
Change the address (unit number) of the indoor unit.